We use cookies and other technologies for functionality, security, and to provide you with a personalized experience on our online services. By continuing to use our online services, you agree to our Privacy Policy and Terms of Use. For information on how to adjust your privacy settings, visit our Cookie Policy.
Dismiss
Home ON Greater Toronto Area Georgina
175 SIMCOE AVENUE
Directions Print
More Photos + 2
175 SIMCOE AVENUE $300,000
3 days ago
$300,000
Hide
Favourite

175 SIMCOE AVENUE
Georgina (Keswick North), Ontario L4P2H6

MLS® Number: N12814696

Listing Description

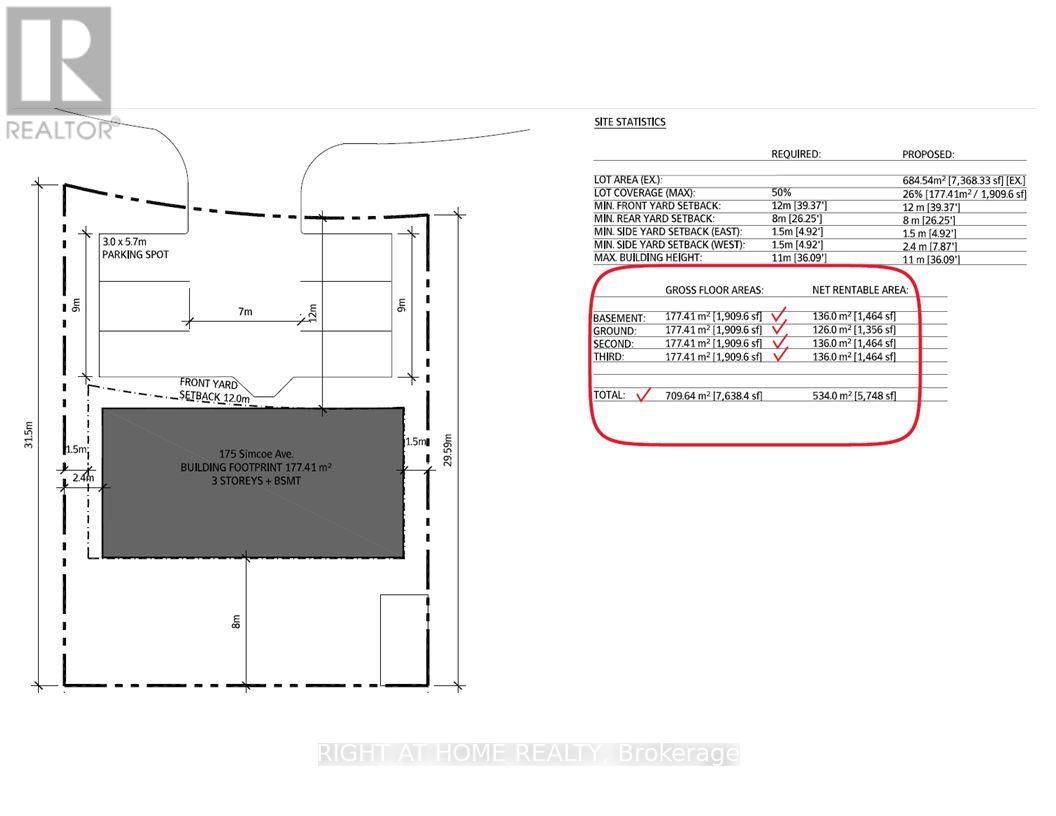
Location! Location! Location 75.46 ft wide Lot In The Heart Of Keswick!! C1 is one of the Best Zoning in this Location. You can use the top storey for Residential and other storeys for commercial. You can use for For Restaurants, Bakery, Bank, Bowling, Office, Clinics, and many more ( Please check Georgina Town Website for C1 Zoning). Tremendous Potential Investment In Fast Growing Community. Possible To Split It To 2 Pieces Of Lots (35 And 40 Residentials To Increasing Land Value) (42207292)

Location Description

Cross Streets: Queensway/Simcoe. ** Directions: Queensway/Church.

Property Summary

Property Type
Vacant Land
Community Name
Keswick North
Land Size
75.46 x 103.37 FT ; 7364.78 Sq.Feet
Annual Property Taxes
$4,028.41
Total Parking Spaces
2
Time on REALTOR.ca
3 days

Building

Parking
Total Parking Spaces
2

Measurements

Square Footage
7365 sqft

Land

Lot Features
Frontage
75 ft ,5 in
Land Depth
103 ft ,4 in
Other Property Information
Zoning Description
C1
Are you interested in touring this listing?
Request a showing

Similar Listings

JIN TAN LIU