We use cookies and other technologies for functionality, security, and to provide you with a personalized experience on our online services. By continuing to use our online services, you agree to our Privacy Policy and Terms of Use. For information on how to adjust your privacy settings, visit our Cookie Policy.
Dismiss
Home AB Greater Brooks Bassano
14, 831 2 Avenue
Directions Print
14, 831 2 Avenue $179,900
3 days ago
$179,900
Hide
Favourite

14, 831 2 Avenue
Bassano, Alberta T0J0B0

MLS® Number: A2288380
2
Bedrooms
1
Bathrooms
960
Square Feet

Listing Description

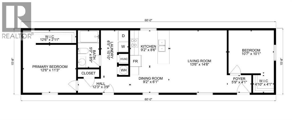
MODERN, EFFICIENT & AFFORDABLE! Brand new, quality built "Shelter" manufactured home will give you peace of mind, easy maintenance & budget conscious payments of $950 monthly OAC. Low maintenance home exterior has vinyl siding, upgraded skirting & vinyl windows. Bright open plan has kitchen, dining & living room centered between the bedrooms at either end of the home. Functional & beautiful kitchen has plenty of cabinets & appliances under warranty. You'll love the kitchen window with the south view. King sized primary bdrm has extra large walk-in closet. Laundry is quietly tucked away around the corner, out of sight of the main living area. Roomy 4 pc bath has easy care tub / shower combo & good storage. Partially fenced, the landscaping is a blank slate, waiting for your plans. Lot rent of $510 monthly. Bassano has excellent amenities with a friendly, small town feeling. Hospital, k-12 school, shopping, golf course, arena & more! You won't find a new home like this at a better price! Take the virtual tour & expect to be impressed. Park manager approval applies. Taxes are not yet assessed. QUICK POSSESSION POSSIBLE. (31680400)

Property Summary

Property Type
Single Family
Building Type
Mobile Home
Storeys
1
Square Footage
960 sqft
Land Size
Mobile Home Pad (MHP)
Built in
2025
Parking Type
Other, Parking Pad
Time on REALTOR.ca
3 days

Building

Bedrooms
Above Grade
2
Bathrooms
Total
1
Partial
0
Interior Features
Appliances Included
Refrigerator, Dishwasher, Stove, Washer & Dryer
Flooring
Laminate
Building Features
Architecture Style
Mobile Home
Structures
None
Heating & Cooling
Heating Type
Forced air
Neighbourhood Features
Community Features
Golf Course Development, Lake Privileges, Fishing
Amenities Nearby
Airport, Golf Course, Park, Playground, Schools, Shopping, Water Nearby
Parking
Parking Type
Other, Parking Pad
Total Parking Spaces
2

Measurements

Square Footage
960 sqft
Total Finished Area
960 sqft

Rooms

MetricImperial
Main level
Primary Bedroom
Laundry room
Kitchen
Dining room
Living room
Bedroom
4pc Bathroom

Land

Lot Features
Fencing
Partially fenced
Data provided by: Pillar 9™
Are you interested in touring this listing?
Request a showing

Similar Listings

Jolene Ledene Reimer