We use cookies and other technologies for functionality, security, and to provide you with a personalized experience on our online services. By continuing to use our online services, you agree to our Privacy Policy and Terms of Use. For information on how to adjust your privacy settings, visit our Cookie Policy.
Dismiss
Home QC Greater Québec City Québec Beauport Chutes-Montmorency
2009 Boul. des Chutes
Directions Print
2009 Boul. des Chutes $725,000
3 days ago
$725,000
Hide
Favourite

2009 Boul. des Chutes
Québec (Beauport), Quebec G1C1W4

MLS® Number: 20804766

Listing Description

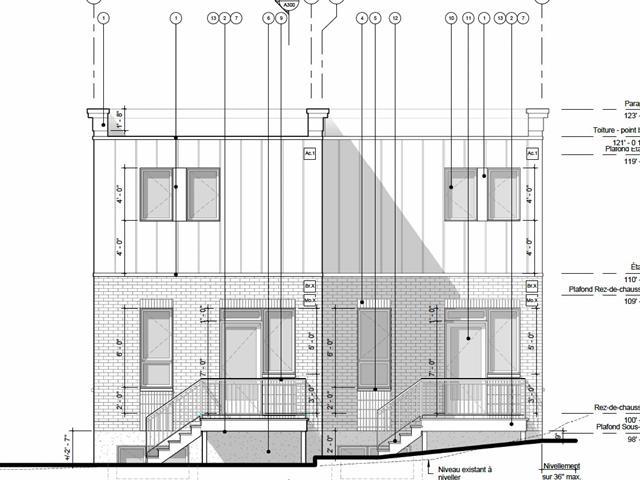
INVESTISSEURS/CONSTRUCTEURS: saisissez l'opportunité de CONSTRUIRE IMMÉDIATEMENT à Beauport! Optimisez votre parc immobilier sans les délais d'approbation de la ville. Nous proposons un ensemble immobilier prêt à bâtir de 6 unités résidentielles sur le boulevard des Chutes. Emplacement de choix à l'angle de la rue Morel (secteur recherché et accès rapide à l'autoroute). Plans d'architecte pour deux triplex offrant un mélange de 4.1/2 et de grands 5.1/2, répondant à la forte demande locative familiale. Zéro délai : Permis de construction inclus. LE PROJET EST PRÊT À ÊTRE DÉBUTÉ! Informations additionnelles dans l'ADDENDA. (50196097)

Property Summary

Property Type
Vacant Land
Neighbourhood Name
Chutes-Montmorency
Land Size
2126.2 m2
Time on REALTOR.ca
3 days

Building

Building Features
Features
Sloping, Flat site
Utilities
Utility Sewer
Municipal sewage system
Water
Municipal water
Neighbourhood Features
Amenities Nearby
Highway, Golf Course, Hospital, Park, Schools, Public Transit

Land

Lot Features
Frontage
44.16 m
Other Property Information
Zoning Type
Residential
Farm Features
Farm Type
Other
Are you interested in touring this listing?
Request a showing

Similar Listings

Maurice Ricard