We use cookies and other technologies for functionality, security, and to provide you with a personalized experience on our online services. By continuing to use our online services, you agree to our Privacy Policy and Terms of Use. For information on how to adjust your privacy settings, visit our Cookie Policy.
Dismiss
Home ON Greater London London Huron Heights
408 BROOKHAVEN PLACE
Directions Print
408 BROOKHAVEN PLACE $569,900
3 days ago
$569,900
Hide
Favourite

408 BROOKHAVEN PLACE
London East (East A), Ontario N5Y5N5

MLS® Number: X12812178
3 + 2
Bedrooms
2
Bathrooms
700 - 1100
Square Feet

Listing Description

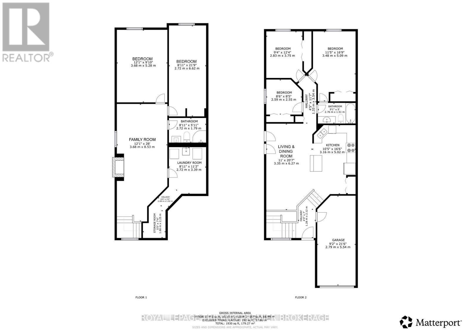
Situated on a quiet cul-de-sac in desirable Northeast London, this beautifully updated 5-bedroom, 2- bathroom raised bungalow has been lovingly maintained and thoughtfully upgraded throughout. The bright open-concept main level features a spacious kitchen with island and breakfast bar, great room overlooking the large front window and foyer, and dining area with direct access to the backyard-perfect for entertaining or family living. Three generous bedrooms and a 4-piece bathroom complete the main floor. The fully finished lower level offers even more living space with a cozy gas fireplace, two additional bedrooms, a 3-piece bathroom, and a convenient laundry room. This carpet-free home features new luxury vinyl plank flooring throughout for easy maintenance and modern appeal. Enjoy the outdoors in your private, fully fenced backyard complete with a newer deck, colourful gardens, pond, and a handy storage shed-an ideal retreat for morning coffee or evening relaxation. A single-car attached garage adds everyday convenience to this wonderful family home.Updates include: Flooring (2025), deck (2025), hot water heater (2025), furnace (2025), Washer and Dryer (August 2025), Fireplace (2025), A/C approx. 8 yrs (42201514)

Location Description

BROOKHAVEN NEAR COBBLESTONE STREET

Property Summary

Property Type
Single Family
Building Type
House
Storeys
1
Square Footage
700 - 1100 sqft
Community Name
East A
Title
Freehold
Land Size
31 x 116.7 Acre ; 113.32 ft x 31.04 ft x 116.69 ftx29.58ft
Annual Property Taxes
$3,822
Parking Type
Attached Garage, Garage
Time on REALTOR.ca
3 days

Building

Bedrooms
Above Grade
3
Below Grade
2
Bathrooms
Total
2
Interior Features
Appliances Included
Water Heater - Tankless, Dishwasher, Dryer, Stove, Water Heater, Washer, Refrigerator
Basement Type
Full (Finished)
Building Features
Features
Carpet Free
Foundation Type
Poured Concrete
Style
Detached
Architecture Style
Raised bungalow
Building Amenities
Fireplace(s)
Structures
Shed
Heating & Cooling
Cooling
Central air conditioning
Fireplace
1
Heating Type
Forced air (Natural gas)
Utilities
Utility Sewer
Sanitary sewer
Water
Municipal water
Exterior Features
Exterior Finish
Brick
Parking
Parking Type
Attached Garage, Garage
Total Parking Spaces
2

Measurements

Square Footage
700 - 1100 sqft

Land

Lot Features
Fencing
Fenced yard
Other Property Information
Zoning Description
R5-3
Are you interested in touring this listing?
Request a showing

Similar Listings

SCOTT PURDY