We use cookies and other technologies for functionality, security, and to provide you with a personalized experience on our online services. By continuing to use our online services, you agree to our Privacy Policy and Terms of Use. For information on how to adjust your privacy settings, visit our Cookie Policy.
Dismiss
Home SK Greater Saskatoon Saskatoon Kensington
836 Nightingale ROAD
Directions Print
More Photos + 1
836 Nightingale ROAD $714,900
4 days ago
$714,900
Hide
Favourite

836 Nightingale ROAD
Saskatoon, Saskatchewan S7L6X7

MLS® Number: SK028960
6
Bedrooms
4
Bathrooms
1954
Square Feet

Listing Description

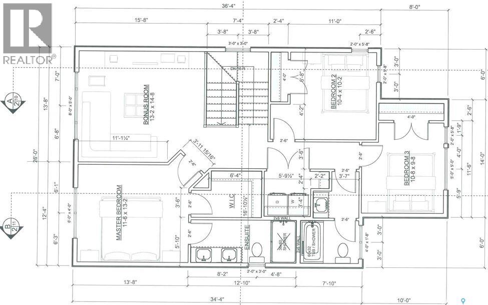
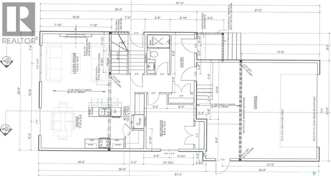
Excellent opportunity to own a fully finished 1954 Sqft two-storey home with a legal 2-bedroom basement suite in the sought-after neighborhood of Kensington! Offering 6 bedrooms and 4 bathrooms, this property features high-end finishes, modern kitchen cabinetry, and thoughtful design throughout. The main floor welcomes you with a spacious living room highlighted by a stylish feature wall and electric fireplace, complemented by extra-large windows overlooking the backyard. The open dining area includes oversized patio doors leading to the yard — perfect for entertaining. A rare main-floor bedroom and full bathroom with tiled standing shower adds flexibility for guests or multi-generational living. The second floor offers 3 bedrooms, 2 full bathrooms, and a spacious bonus room, ideal for family living. The basement features a legal 2-bedroom suite with 9-foot ceilings and large windows — a rare find in a two-storey home — providing excellent mortgage helper potential. Exterior highlights include an inviting front entry with concrete steps, front landscaping, and an oversized garage with finished concrete driveway. The home is finished with upgraded plumbing and electrical fixtures throughout. GST & PST included in purchase price (rebates to builder). If eligible, Secondary Suite Incentive (SSI) rebates to buyers. When available and if applicable to buyer First-Time Home Buyer GST rebates will be assigned to the buyer. Conveniently located close to parks and all neighborhood amenities. (29416405)

Property Summary

Property Type
Single Family
Building Type
House
Storeys
2
Square Footage
1954 sqft
Neighbourhood Name
Kensington
Title
Freehold
Land Size
4248 sqft
Built in
2026
Parking Type
Attached Garage, Parking Space(s) (5)
Time on REALTOR.ca
4 days

Building

Bathrooms
Total
4
Interior Features
Appliances Included
Dishwasher, Hood Fan
Basement Type
Full (Finished)
Building Features
Features
Rectangular
Architecture Style
2 Level
Heating & Cooling
Fireplace Type
Conventional (Electric)
Heating Type
Forced air, (Natural gas)
Parking
Parking Type
Attached Garage, Parking Space(s) (5)

Measurements

Square Footage
1954 sqft

Rooms

MetricImperial
Main level
Foyer
4pc Bathroom
Bedroom
Living room
Dining room
Kitchen
Second level
Primary Bedroom
5pc Ensuite bath
Laundry room
Bedroom
Bedroom
Bonus Room
4pc Bathroom
Basement
Kitchen/Dining room
Living room
Primary Bedroom
Bedroom
Laundry room
4pc Bathroom
Other

Land

Lot Features
Frontage
36 ft
Landscape Features
Lawn
Are you interested in touring this listing?
Request a showing

Similar Listings

Mihir Sisodiya