We use cookies and other technologies for functionality, security, and to provide you with a personalized experience on our online services. By continuing to use our online services, you agree to our Privacy Policy and Terms of Use. For information on how to adjust your privacy settings, visit our Cookie Policy.
Dismiss
Home ON Ottawa - Gatineau Ottawa Richmond Stittsville
269 FINSBURY AVENUE
Directions Print
269 FINSBURY AVENUE $2,700/Monthly
4 days ago
$2,700/Monthly
Hide
Favourite

269 FINSBURY AVENUE
Ottawa, Ontario K2S2Y2

MLS® Number: X12810290
3
Bedrooms
3
Bathrooms
1500 - 2000
Square Feet

Listing Description

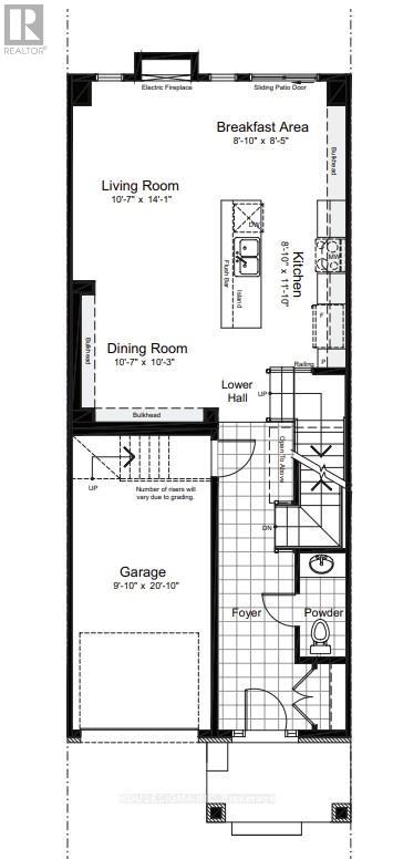
This Modern 3-bed, 2.5-bath 2022 built townhome in Westwood community of Stittsville/Kanata available from April. This bright open-concept home offers a quartz kitchen with stainless steel appliances, hardwood floors, and a cozy gas fireplace. Upstairs includes a private primary suite with walk-in closet and ensuite, plus two additional bedrooms and full bath. The finished basement is perfect for a home office, media room, or gym. Enjoy a quiet backyard with No Rear neighbours. Steps to parks, schools, Cardel Rec centre, transit, and shopping. No Pets, No Smokers, No roommates. Tenant responsible for hydro, heat, water, hot water tank rental. (42197714)

Location Description

Cross Streets: Robert Grant Ave - Cope Drive. ** Directions: From Fernbank Road & Terry Fox Drive, head west on Fernbank Rd toward Stittsville. Turn left onto Robert Grant Avenue, then right onto Cope Drive. Turn right onto Haliburton Heights, then left onto Finsbury Avenue and follow to 269 Finsbury Ave.

Property Summary

Property Type
Single Family
Building Type
Row / Townhouse
Storeys
2
Square Footage
1500 - 2000 sqft
Community Name
8203 - Stittsville (South)
Title
Freehold
Land Size
20 x 98.4 FT
Age Of Building
0 to 5 years
Parking Type
Attached Garage, Garage
Time on REALTOR.ca
4 days

Building

Bedrooms
Above Grade
3
Bathrooms
Total
3
Partial
1
Interior Features
Appliances Included
Garage door opener remote(s)
Basement Type
Full (Finished)
Building Features
Foundation Type
Concrete, Poured Concrete
Style
Attached
Building Amenities
Fireplace(s)
Heating & Cooling
Cooling
Central air conditioning
Fireplace
1
Heating Type
Forced air (Natural gas)
Utilities
Utility Type
Cable (Available), Electricity (Available), Sewer (Available)
Utility Sewer
Sanitary sewer
Water
Municipal water
Exterior Features
Exterior Finish
Brick, Vinyl siding
Parking
Parking Type
Attached Garage, Garage
Total Parking Spaces
3

Measurements

Square Footage
1500 - 2000 sqft

Rooms

MetricImperial
Main level
Dining room
Living room
Kitchen
Eating area
Second level
Primary Bedroom
Bedroom 2
Bedroom 3
Basement
Family room

Land

Lot Features
Frontage
20 ft
Land Depth
98 ft ,4 in
Data provided by: Ottawa Real Estate Board
Are you interested in touring this listing?
Request a showing

Similar Listings

Jai Patel