We use cookies and other technologies for functionality, security, and to provide you with a personalized experience on our online services. By continuing to use our online services, you agree to our Privacy Policy and Terms of Use. For information on how to adjust your privacy settings, visit our Cookie Policy.
Dismiss
Home ON Kitchener - Cambridge - Waterloo Waterloo Columbia Hills
578 BALSAM POPLAR STREET
Directions Print
578 BALSAM POPLAR STREET $1,349,900
6 days ago
Next Open House
Feb
28
$1,349,900
Hide
Favourite

578 BALSAM POPLAR STREET
Waterloo, Ontario N2V0H6

MLS® Number: X12807494
4 + 1
Bedrooms
5
Bathrooms
2500 - 3000
Square Feet

Listing Description

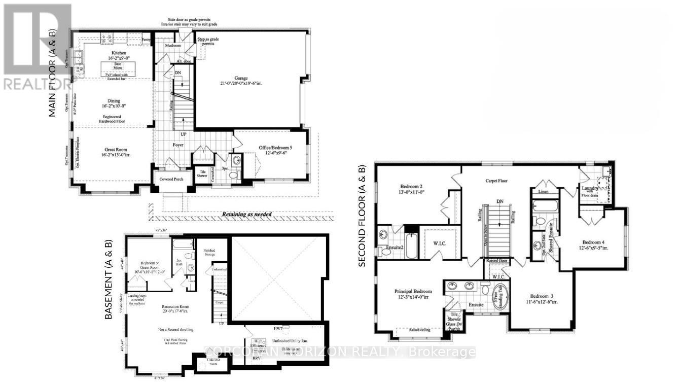
Soon to be built at 578 Balsam Poplar Street in Waterloo, this thoughtfully designed 4+1 bedroom, 5 bathroom home blends modern design with quality craftsmanship on a prominent corner lot. The exterior features a refined mix of stone, brick, and stucco, with brick continuing along the sides and rear for a cohesive finish. Insulated garage doors, black or taupe exterior windows, and a concrete driveway enhance the home's contemporary presence.Inside, engineered hardwood flooring runs throughout the main level, complemented by 8-foot doors that add to the sense of scale. The open concept living and dining area flows seamlessly into a spacious kitchen anchored by a large island and outfitted with quartz countertops and Fisher & Paykel appliances. Quartz surfaces continue throughout the home, offering both style and durability. An oak hardwood staircase provides a timeless focal point. A practical side entrance leads into a well-designed mudroom with convenient access to the home, while a private office that can easily function as a bedroom and a 3-piece bathroom complete the main floor. Upstairs, four generously sized bedrooms provide comfortable accommodations. Two share a bathroom, one features its own ensuite, and the primary suite includes a large walk-in closet and a private ensuite bath. The fully finished basement offers impressive 9-foot ceilings, a spacious recreation room, an additional bedroom, and a 3-piece bathroom, creating flexible space for extended family or guests. With a finished basement, double car garage, and quality finishes throughout, this is a rare opportunity to own a newly built home in a sought-after Waterloo neighbourhood. (42191750)

Location Description

Cross Streets: Wilmot Line. ** Directions: Wilmot Line to Balsam Poplar.

Open Houses

Feb 28
1-4 PM
Mar 1
1-4 PM
Mar 4
4-7 PM
Mar 7
1-4 PM
Mar 8
1-4 PM
Mar 11
4-7 PM
Mar 14
1-4 PM
Show all
Add to Calendar

Property Summary

Property Type
Single Family
Building Type
House
Storeys
2
Square Footage
2500 - 3000 sqft
Title
Freehold
Land Size
48 x 85.5 FT|under 1/2 acre
Age Of Building
New building
Annual Property Taxes
$2,266.77
Parking Type
Garage
Time on REALTOR.ca
6 days

Building

Bedrooms
Above Grade
4
Below Grade
1
Bathrooms
Total
5
Interior Features
Basement Type
Full (Finished)
Building Features
Features
Partially cleared
Foundation Type
Poured Concrete
Style
Detached
Heating & Cooling
Cooling
Central air conditioning
Heating Type
Forced air (Natural gas)
Utilities
Utility Sewer
Sanitary sewer
Water
Municipal water
Exterior Features
Exterior Finish
Brick
Neighbourhood Features
Community Features
School Bus
Amenities Nearby
Park, Place of Worship, Schools, Public Transit
Parking
Parking Type
Garage
Total Parking Spaces
4

Measurements

Square Footage
2500 - 3000 sqft

Rooms

MetricImperial
Main level
Great room
Dining room
Kitchen
Office
Second level
Primary Bedroom
Bedroom
Bedroom 2
Bedroom 3
Basement
Bedroom 4
Recreational, Games room

Land

Lot Features
Frontage
48 ft
Land Depth
85 ft ,6 in
Other Property Information
Zoning Description
R6
Are you interested in touring this listing?
Request a showing

Similar Listings

CLIFF C. REGO