We use cookies and other technologies for functionality, security, and to provide you with a personalized experience on our online services. By continuing to use our online services, you agree to our Privacy Policy and Terms of Use. For information on how to adjust your privacy settings, visit our Cookie Policy.
Dismiss
Home ON Greater Windsor Windsor South Central
2144 PELISSIER STREET Unit# 602
Directions Print
2144 PELISSIER STREET Unit# 602 $219,900
6 days ago
$219,900
Hide
Favourite

2144 PELISSIER STREET Unit# 602
Windsor, Ontario N8X1N4

MLS® Number: 26003671
2
Bedrooms
1
Bathrooms
1183
Square Feet

Listing Description

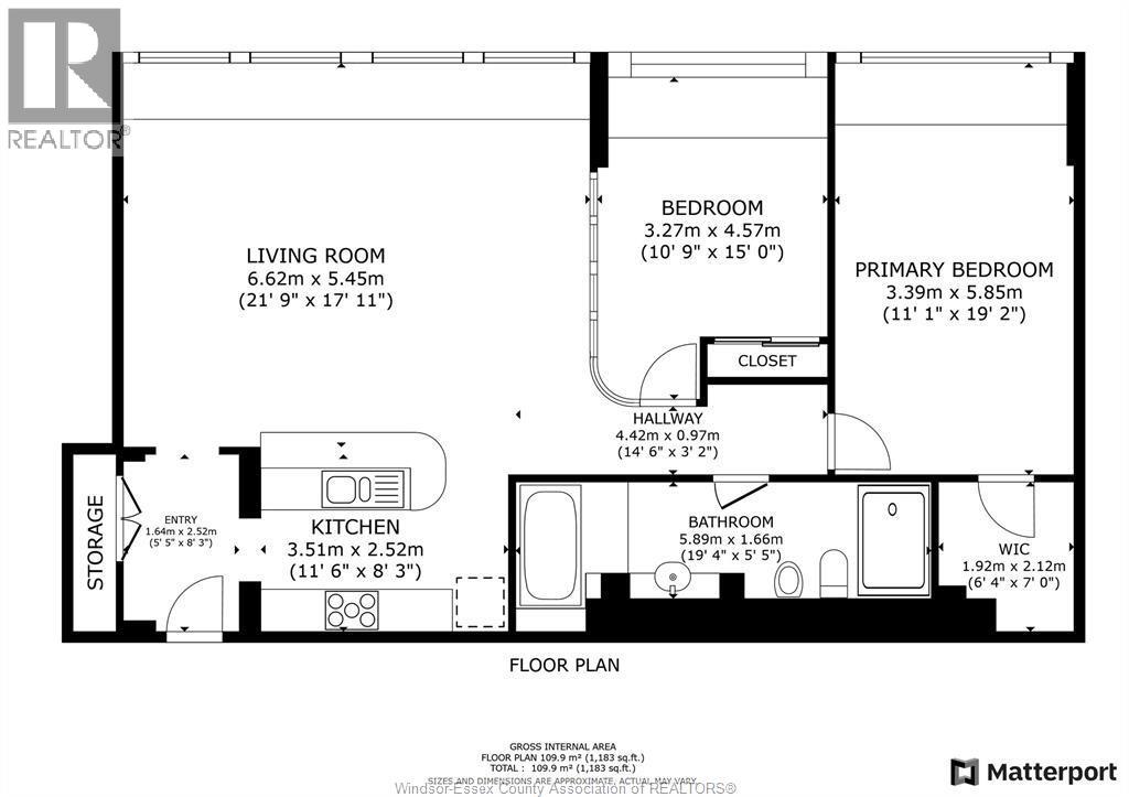
TOP FLOOR UNIT OVERLOOKING JACKSON PARK. FEATURES 2 BEDROOMS, LARGE LIVING ROOM/DINING ROOM OPEN TO KITCHEN, UNIQUE GLASS GLASS BLOCK WALL 2ND BEDROOM/ OFFICE, LARGE PRIMARY BEDROOM WITH WALK-IN CLOSET. LOCATED CLOSE TO SHOPPING, EASY ACCESS TO THE UNIVERSITY OF WINDSOR, ST CLAIR COLLEGE & THE US BORDER. CALL FOR MORE INFORMATION OR TO ARRANGE A TOUR. (55387731)

Property Summary

Property Type
Single Family
Building Type
Apartment
Square Footage
1183 sqft
Title
Condominium/Strata
Land Size
X
Built in
1968
Parking Type
Underground (1)
Time on REALTOR.ca
6 days

Building

Bedrooms
Above Grade
2
Bathrooms
Total
1
Partial
0
Interior Features
Flooring
Ceramic/Porcelain, Parquet
Building Features
Features
Golf course/parkland
Foundation Type
Concrete
Heating & Cooling
Cooling
Central air conditioning
Heating Type
Boiler, Radiant heat, (Electric), (Natural gas)
Exterior Features
Exterior Finish
Aluminum siding, Brick
Maintenance or Condo Information
Maintenance Fees
$974.21 Monthly
Maintenance Fees Include
Caretaker, Exterior Maintenance, Ground Maintenance, Heat, Electricity, Insurance, Property Management, Water
Parking
Parking Type
Underground (1)

Measurements

Square Footage
1183 sqft
Total Finished Area
1183 sqft

Rooms

Main level
5pc Bathroom
Bedroom
Primary Bedroom
Kitchen
Living room/Dining room
Foyer

Land

Other Property Information
Zoning Description
RD3.4
Are you interested in touring this listing?
Request a showing

Similar Listings

PHIL KASURAK