We use cookies and other technologies for functionality, security, and to provide you with a personalized experience on our online services. By continuing to use our online services, you agree to our Privacy Policy and Terms of Use. For information on how to adjust your privacy settings, visit our Cookie Policy.
Dismiss
Home ON Greater Toronto Area Uxbridge
4 GALLOWAY CRESCENT
Directions Print
4 GALLOWAY CRESCENT $1,559,900
7 days ago
Next Open House
Feb
28
$1,559,900
Hide
Favourite

4 GALLOWAY CRESCENT
Uxbridge, Ontario L9P1W8

MLS® Number: N12806860
4 + 1
Bedrooms
4
Bathrooms
3000 - 3500
Square Feet

Listing Description

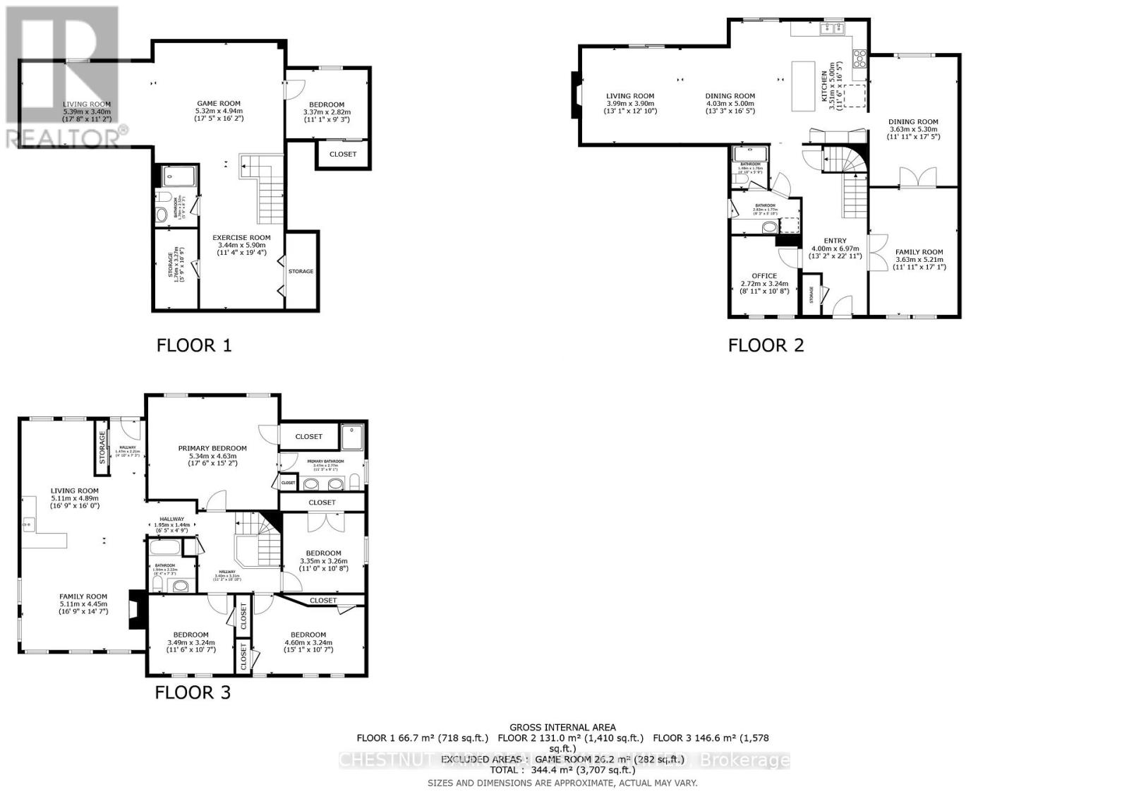
Set in Uxbridge's most coveted neighbourhood, this home is positioned on a private 61x113 ft lot backing onto protected green space. Occupying a premier position at the top of the hill-where rare backyard privacy meets open sky and long views-the addition above the garage becomes a defining feature, allowing a private in-law or young-adult suite to support multi-generational living, or to remain an expansive family great room-a rare way for families to share one roof while easing the cost of living, without sacrificing space or independence. With over 4,000 square feet of finished living space, the home also stands confidently on its own as a substantial single-family residence. Sitting at the heart of the home, the fully renovated kitchen features Cambria quartz countertops, stainless steel appliances, a large centre island, and a dedicated coffee bar and pantry - connecting everyday living with both indoor and outdoor spaces. French doors link the formal living room to a dramatic foyer, where a central skylight brings natural light down through the core of the home. A remodelled main-floor bath (2025) and upgraded laundry room (2025) bring recent updates to two of the home's most used spaces. Upstairs, four well-sized bedrooms and a comfortable great room establish a distinct private level for family and guests. The added loft is complete with vaulted ceilings, skylights, a gas FP, hardwood floors, & a kitchenette/wet bar. A second-level balcony extends along the back of the addition, offering separate access and pretty views. Throughout the home, restored oak hardwood floors (2020), smooth ceilings, pot lights, and new windows (2023), speak to the level of care invested over time. The finished basement offers a 5th bedroom, bathroom & games room. Just steps from the Quaker Trail and mins from Uxbridge's off-leash dog park, schools, and historic downtown, this home offers rare backyard privacy and elevated views within one of the town's most established pockets. (42190467)

Location Description

Cross Streets: Bolton Dr & 6th Concession. ** Directions: Take Bolton Dr & go North onto Galloway Cres.

Open Houses

Feb 28
1-3 PM
Add to Calendar

Property Summary

Property Type
Single Family
Building Type
House
Storeys
2
Square Footage
3000 - 3500 sqft
Community Name
Uxbridge
Title
Freehold
Land Size
61 x 113.2 FT|under 1/2 acre
Annual Property Taxes
$8,656.20
Parking Type
Attached Garage, Garage
Time on REALTOR.ca
7 days

Building

Bedrooms
Above Grade
4
Below Grade
1
Bathrooms
Total
4
Interior Features
Appliances Included
Water Heater - Tankless, Water Heater, Dishwasher, Dryer, Microwave, Gas stove(s), Washer, Window Coverings, Refrigerator
Flooring
Hardwood, Laminate
Basement Type
Finished
Building Features
Features
Cul-de-sac, Conservation/green belt
Foundation Type
Concrete
Style
Detached
Building Amenities
Fireplace(s)
Structures
Patio(s), Porch, Shed
Heating & Cooling
Cooling
Central air conditioning
Fireplace
2
Heating Type
Forced air (Natural gas)
Utilities
Utility Type
Cable (Installed), Electricity (Installed), Sewer (Installed)
Utility Sewer
Sanitary sewer
Water
Municipal water
Exterior Features
Exterior Finish
Brick
Parking
Parking Type
Attached Garage, Garage
Total Parking Spaces
6

Measurements

Square Footage
3000 - 3500 sqft

Rooms

MetricImperial
Main level
Living room
Dining room
Kitchen
Eating area
Family room
Office
Laundry room
Second level
Bedroom
Bedroom
Loft
Primary Bedroom
Bedroom
Basement
Bedroom
Recreational, Games room

Land

Lot Features
Frontage
61 ft
Land Depth
113 ft ,2 in
Landscape Features
Landscaped
Are you interested in touring this listing?
Request a showing

Similar Listings

KELSEY SCHOENROCK