We use cookies and other technologies for functionality, security, and to provide you with a personalized experience on our online services. By continuing to use our online services, you agree to our Privacy Policy and Terms of Use. For information on how to adjust your privacy settings, visit our Cookie Policy.
Dismiss
Home AB Greater Calgary Calgary Bankview
2401 17 Street SW
Directions Print
2401 17 Street SW $580,000
6 days ago
$580,000
Hide
Favourite

2401 17 Street SW
Calgary, Alberta T2T4M9

MLS® Number: A2287457
2
Bedrooms
2
Bathrooms
1564
Square Feet

Listing Description

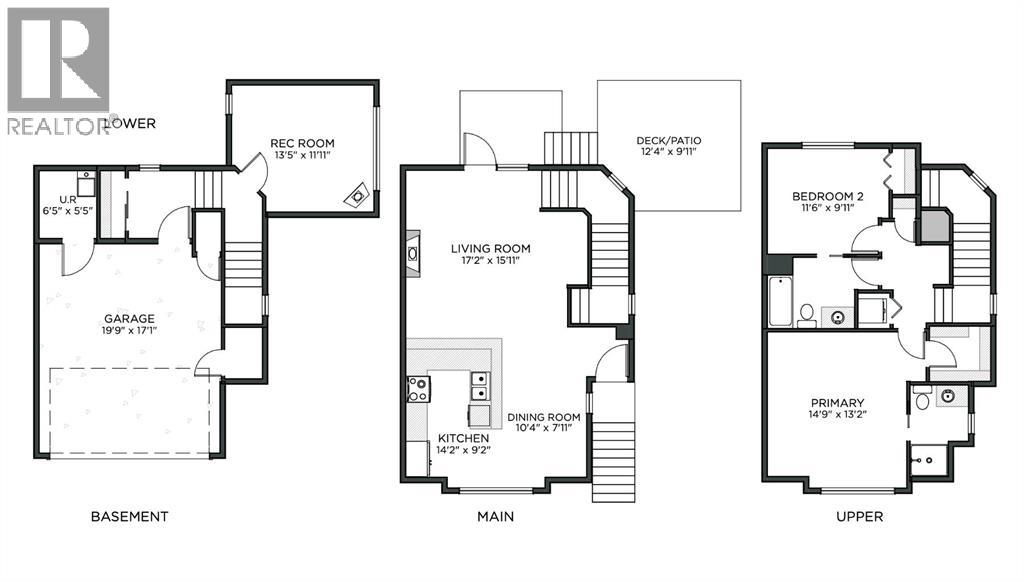
Fantastic end-unit townhome in the heart of Bankview offering a rare double car garage and an incredible rooftop patio! With 1,564 square feet of thoughtfully designed living space, this is an exceptional opportunity to live walking distance to downtown and directly across from a large park and tennis courts. Step inside to a welcoming open-concept main floor featuring 9-foot ceilings and a spacious layout designed for both everyday living and entertaining. The dedicated dining area easily accommodates a large table, while the impressive U-shaped kitchen offers stainless steel appliances, granite countertops, abundant cabinetry, and generous counter space. Enjoy beautiful park views right from your window as the kitchen flows seamlessly into the expansive living room, centred around a cozy gas fireplace with a designated nook for a desk or workspace.French doors lead to the show-stopping outdoor space — a private patio that wraps around to stairs leading up to the massive rooftop terrace, perfect for entertaining, relaxing, and enjoying the surrounding views. Upstairs you’ll find two well-sized bedrooms, two full bathrooms, and convenient upper-floor laundry. The primary suite is generously sized with large windows overlooking the park, an updated ensuite bathroom, and a walk-in closet.Between the main level and lower level, you’ll discover a fantastic and unique recreation room exclusive to this unit — ideal for a man cave, movie room, home office, or flex space. Complete with a second gas fireplace and beautiful California shutters, it’s a cozy and versatile retreat. The double attached garage truly feels like an extension of the home, featuring epoxy flooring, space for two vehicles, and two dedicated storage areas.Additional upgrades include triple-pane windows (2023), a high-efficiency furnace, heat pump, tankless water heater, water softener, humidifier and thermostat (2022), along with updated paint, bathrooms, fixtures and more. Low condo fees of $367 per month and an unbeatable location make this home a standout opportunity. This impressive Bankview townhome truly has it all — space, style, updates, and exceptional outdoor living. Be sure to review the attached feature sheet for a complete list of upgrades and features. (31670352)

Property Summary

Property Type
Single Family
Building Type
Row / Townhouse
Storeys
3
Square Footage
1564 sqft
Community Name
Bankview
Subdivision Name
Bankview
Title
Bare Land Condo/Strata
Land Size
198 m2|0-4,050 sqft
Built in
1997
Annual Property Taxes
$3,909
Parking Type
Attached Garage (2)
Time on REALTOR.ca
6 days

Building

Bedrooms
Above Grade
2
Bathrooms
Total
2
Partial
0
Interior Features
Appliances Included
Refrigerator, Water softener, Gas stove(s), Dishwasher, Microwave, Garburator, Humidifier, Hood Fan, Window Coverings, Garage door opener, Washer & Dryer, Water Heater - Tankless
Flooring
Carpeted, Hardwood, Linoleum
Basement Type
None
Building Features
Features
Treed, Gas BBQ Hookup
Foundation Type
Poured Concrete
Style
Attached
Construction Material
Wood frame
Structures
Porch
Heating & Cooling
Cooling
Central air conditioning
Fireplace
2
Heating Type
(Electric), Forced air, Heat Pump, (Natural gas)
Exterior Features
Exterior Finish
Stucco
Neighbourhood Features
Community Features
Pets Allowed
Amenities Nearby
Playground, Recreation Nearby, Schools, Shopping
Maintenance or Condo Information
Maintenance Fees
$367.72 Monthly
Maintenance Fees Include
Common Area Maintenance, Insurance, Ground Maintenance, Property Management, Reserve Fund Contributions
Maintenance Management Company
UrbanTec Property Manaement
Parking
Parking Type
Attached Garage (2)
Total Parking Spaces
4

Measurements

Square Footage
1564 sqft
Total Finished Area
1564 sqft

Rooms

MetricImperial
Main level
Kitchen
Dining room
Living room
Basement
Furnace
Lower level
Recreational, Games room
Upper Level
Primary Bedroom
Bedroom
3pc Bathroom
4pc Bathroom

Land

Lot Features
Fencing
Not fenced
Frontage
12.94 m
Land Depth
16.1 m
Other Property Information
Zoning Description
M-C2
Data provided by: Pillar 9™
Are you interested in touring this listing?
Request a showing

403-671-4979
403-244-5315

Similar Listings

Kimberly Courchesne