We use cookies and other technologies for functionality, security, and to provide you with a personalized experience on our online services. By continuing to use our online services, you agree to our Privacy Policy and Terms of Use. For information on how to adjust your privacy settings, visit our Cookie Policy.
Dismiss
Home ON Greater Guelph Guelph Brant
9 SHAKESPEARE DRIVE
Directions Print
9 SHAKESPEARE DRIVE $899,900
Price Change on 02/24/2026
$899,900
+$30,000
$869,900
Hide
Favourite

9 SHAKESPEARE DRIVE
Guelph (Victoria North), Ontario N1E0T1

MLS® Number: X12806074
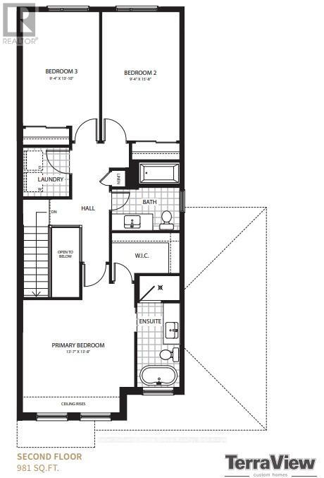
3
Bedrooms
3
Bathrooms
1500 - 2000
Square Feet

Listing Description

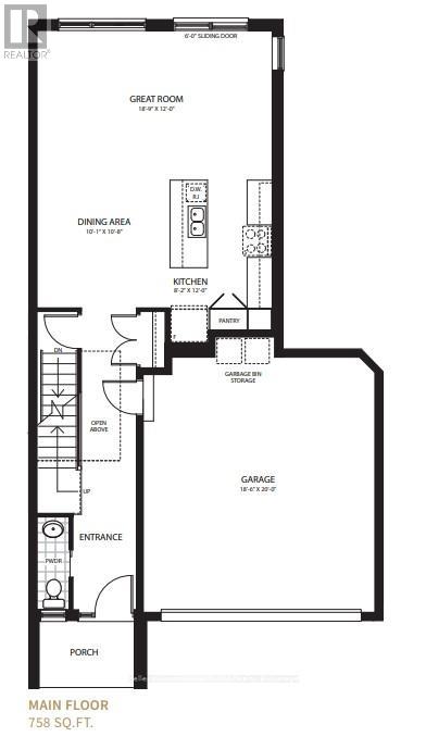
Discover one of the city's premier freehold corner unit townnhomes with a rare double car garage -offering over 1,700 sq. ft. of refined living space with no condo fees. Built by the award-winning Terra View Homes, this "to-be-built" residence combines architectural elegance with functional design. The main floor boasts luxury vinyl plank flooring, upgraded trim work, and oversized windows that flood the home with natural light. At the heart of the home sits a large kitchen featuring a massive social island. Retreat to a sprawling primary suite complete with a walk-in closet and private ensuite. With construction yet to begin, this is your rare opportunity to customize your finishes and truly make this home your own. (42188376)

Location Description

Cross Streets: Shakespeare and Eramosaa. ** Directions: East on Eramosa, North on Shakespeare.

Property Summary

Property Type
Single Family
Building Type
Row / Townhouse
Storeys
2
Square Footage
1500 - 2000 sqft
Community Name
Victoria North
Title
Freehold
Land Size
39.8 x 101 FT
Age Of Building
New building
Annual Property Taxes
$1,487.15
Parking Type
Attached Garage, Garage
Time on REALTOR.ca
6 days

Building

Bedrooms
Above Grade
3
Bathrooms
Total
3
Partial
1
Interior Features
Appliances Included
Garage door opener remote(s), Water meter
Building Features
Features
Irregular lot size, Conservation/green belt
Foundation Type
Poured Concrete
Style
Attached
Construction Status
Insulation upgraded
Rental Equipment
Water Heater - Electric, Water Heater
Structures
Porch
Heating & Cooling
Heating Type
Heat Pump (Electric), Forced air (Electric)
Utilities
Utility Type
Cable (Available), Electricity (Installed), Sewer (Installed)
Utility Sewer
Sanitary sewer
Water
Municipal water
Exterior Features
Exterior Finish
Brick, Vinyl siding
Parking
Parking Type
Attached Garage, Garage
Total Parking Spaces
4

Measurements

Square Footage
1500 - 2000 sqft

Rooms

MetricImperial
Main level
Great room
Kitchen
Dining room
Second level
Primary Bedroom
Bedroom
Bedroom
Laundry room

Land

Lot Features
Frontage
39 ft ,9 in
Land Depth
101 ft
Other Property Information
Zoning Description
R3.B
Are you interested in touring this listing?
Request a showing

Similar Listings

LISA SCHUETT