We use cookies and other technologies for functionality, security, and to provide you with a personalized experience on our online services. By continuing to use our online services, you agree to our Privacy Policy and Terms of Use. For information on how to adjust your privacy settings, visit our Cookie Policy.
Dismiss
Home ON Greater Toronto Area Toronto Etobicoke Islington
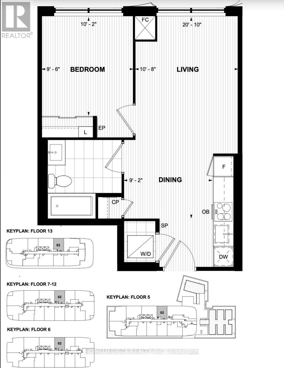
502 - 25 CORDOVA AVENUE
Directions Print
502 - 25 CORDOVA AVENUE $1,925/Monthly
7 days ago
$1,925/Monthly
Hide
Favourite

502 - 25 CORDOVA AVENUE
Toronto (Islington-City Centre West), Ontario M9A0E5

MLS® Number: W12805002
1
Bedrooms
1
Bathrooms
500 - 599
Square Feet

Listing Description

AVAILABLE ASAP! This one Bedroom/1 Bathroom unit is available for immediate possession at Tridel's Westerly I Condos. Unit 502 boasts an efficient floor plan with 9 ft ceiling, tons of storage, laminate flooring throughout and a large 4 pc bathroom. Unit offers an open concept living dining area which offers large windows & Living area is large enough to have a small dining table and a tv and sofa. Primary bedroom offers a closet and floor to ceiling windows with South East views of the Community. Westerly I is more of a boutique style building that offers a Cozy Lobby in the city, a good sized gym, grand party room and good sized guest suites. This building is perfect for commuters and those who work from home. There's ample of visitor parking offered in the building. Come be one of the first residents in the building today. (42186675)

Location Description

Cross Streets: Islington/Dundas/Cordova. ** Directions: See Maps! Park at 60 Central Park Roadway.

Property Summary

Property Type
Single Family
Building Type
Apartment
Square Footage
500 - 599 sqft
Community Name
Islington-City Centre West
Title
Condominium/Strata
Age Of Building
New building
Parking Type
No Garage
Time on REALTOR.ca
7 days

Building

Bedrooms
Above Grade
1
Bathrooms
Total
1
Interior Features
Appliances Included
Dishwasher, Dryer, Oven, Stove, Washer, Window Coverings, Refrigerator
Basement Type
None
Building Features
Features
Elevator, In suite Laundry
Fire Protection
Smoke Detectors
Building Amenities
Exercise Centre, Visitor Parking, Security/Concierge, Party Room
Heating & Cooling
Cooling
Central air conditioning
Heating Type
Coil Fan (Natural gas)
Exterior Features
Exterior Finish
Concrete, Steel
Neighbourhood Features
Community Features
Pets Allowed With Restrictions
Amenities Nearby
Park, Golf Nearby, Schools, Public Transit
Maintenance or Condo Information
Maintenance Management Company
Del Property Management
Parking
Parking Type
No Garage
Total Parking Spaces
0

Measurements

Square Footage
500 - 599 sqft
Are you interested in touring this listing?
Request a showing

Similar Listings

VIVEK DANI