We use cookies and other technologies for functionality, security, and to provide you with a personalized experience on our online services. By continuing to use our online services, you agree to our Privacy Policy and Terms of Use. For information on how to adjust your privacy settings, visit our Cookie Policy.
Dismiss
Home ON Greater Oshawa Whitby Rural Whitby
BSMT - 18 YVETTE STREET
Directions Print
BSMT - 18 YVETTE STREET $1,800/Monthly
7 days ago
$1,800/Monthly
Hide
Favourite

BSMT - 18 YVETTE STREET
Whitby, Ontario L1P0G8

MLS® Number: E12804690
2
Bedrooms
1
Bathrooms
2500 - 3000
Square Feet

Listing Description

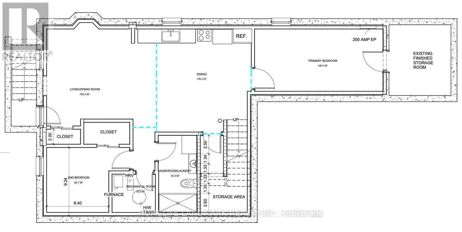
Brand new, never lived-in legal two-bedroom basement apartment offering a private and thoughtfully designed living space. Featuring a separate entrance, this bright unit includes two well-sized bedrooms, a modern full bathroom, and convenient in-suite laundry. With a functional layout and quality finishes throughout, this home is ideal for professionals or small families seeking comfort and privacy in a welcoming, family-oriented community. (42185904)

Location Description

Rossland Rd/Coronation Rd

Property Summary

Property Type
Single Family
Building Type
House
Storeys
2
Square Footage
2500 - 3000 sqft
Community Name
Rural Whitby
Title
Freehold
Land Size
11 x 30.5 M
Parking Type
Attached Garage, Garage
Time on REALTOR.ca
7 days

Building

Bedrooms
Above Grade
2
Bathrooms
Total
1
Interior Features
Basement Features
Separate entrance
Basement Type
Finished
Building Features
Features
In suite Laundry
Foundation Type
Concrete
Style
Detached
Heating & Cooling
Cooling
Central air conditioning
Heating Type
Forced air (Natural gas)
Utilities
Utility Sewer
Sanitary sewer
Water
Municipal water
Exterior Features
Exterior Finish
Brick
Parking
Parking Type
Attached Garage, Garage
Total Parking Spaces
1

Measurements

Square Footage
2500 - 3000 sqft

Land

Lot Features
Frontage
11 m
Land Depth
30.5 m
Are you interested in touring this listing?
Request a showing

Similar Listings

VAARUNAN SRIKUMARAGURU