We use cookies and other technologies for functionality, security, and to provide you with a personalized experience on our online services. By continuing to use our online services, you agree to our Privacy Policy and Terms of Use. For information on how to adjust your privacy settings, visit our Cookie Policy.
Dismiss
Home QC Coaticook
1059 Ch. du Village
Directions Print
1059 Ch. du Village $391,302 + GST + QST
7 days ago
$391,302 + GST + QST
Hide
Favourite

1059 Ch. du Village
Coaticook, Quebec J1A2S4

MLS® Number: 21435873
5
Bedrooms
2
Bathrooms
1216
Square Feet

Listing Description

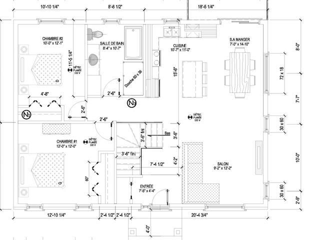
Discover this magnificent new construction located in Coaticook, in the peaceful area of Barnston. Enjoy the charm of the countryside while staying close to the city center! This house offers 2 bedrooms and 1 bathroom, with the possibility of adding 3 additional bedrooms and a bathroom in the basement. The modern interior includes a kitchen and bathroom with quartz countertops, ceramic and floating floors on the ground floor, a central vacuum, a 9-foot ceiling. Expected occupancy: 1st June 2026 A perfect opportunity to combine comfort, modernity and flexibility! GST/QST must be added to the asking price (50816042)

Property Summary

Property Type
Single Family
Building Type
House
Storeys
1
Square Footage
1216 sqft
Land Size
1282.2 m2
Age Of Building
Under construction
Parking Type
Other
Time on REALTOR.ca
7 days

Building

Bathrooms
Total
2
Partial
0
Interior Features
Basement Features
Six feet and over
Basement Type
Full (Partially finished)
Building Features
Features
Flat site, Melamine cupboard, PVC window, Crank windows, French window, Non Paved Driveway
Foundation Type
Poured Concrete
Style
Detached
Fire Protection
Fire alarm system
Heating & Cooling
Cooling
Air exchanger
Heating Type
(Electric)
Utilities
Utility Sewer
Municipal sewage system
Water
Municipal water
Exterior Features
Roof Material
Asphalt shingle
Exterior Finish
Stone, Vinyl
Neighbourhood Features
Amenities Nearby
Golf Course, Hospital, Park, Schools
Parking
Parking Type
Other
Total Parking Spaces
4

Measurements

Square Footage
1216 sqft

Rooms

MetricImperial
Main level
Other
Living room
Dining room
Kitchen
Primary Bedroom
Bathroom
Bedroom
Basement
Other
Bedroom
Bedroom
Bedroom
Bathroom

Land

Lot Features
Frontage
23.84 m
View
Mountain view, View (panoramic)
Other Property Information
Zoning Type
Residential
Farm Features
Farm Type
Other
Are you interested in touring this listing?
Request a showing

Similar Listings

Kasandra Audet