We use cookies and other technologies for functionality, security, and to provide you with a personalized experience on our online services. By continuing to use our online services, you agree to our Privacy Policy and Terms of Use. For information on how to adjust your privacy settings, visit our Cookie Policy.
Dismiss
Home ON Greater Cornwall Cornwall Downtown
213 - 226 FIRST STREET E
Directions Print
213 - 226 FIRST STREET E $375,900
7 days ago
Next Open House
Mar
1
$375,900
Hide
Favourite

213 - 226 FIRST STREET E
Cornwall, Ontario K6H0G2

MLS® Number: X12803818
2
Bedrooms
1
Bathrooms
1000 - 1199
Square Feet

Listing Description

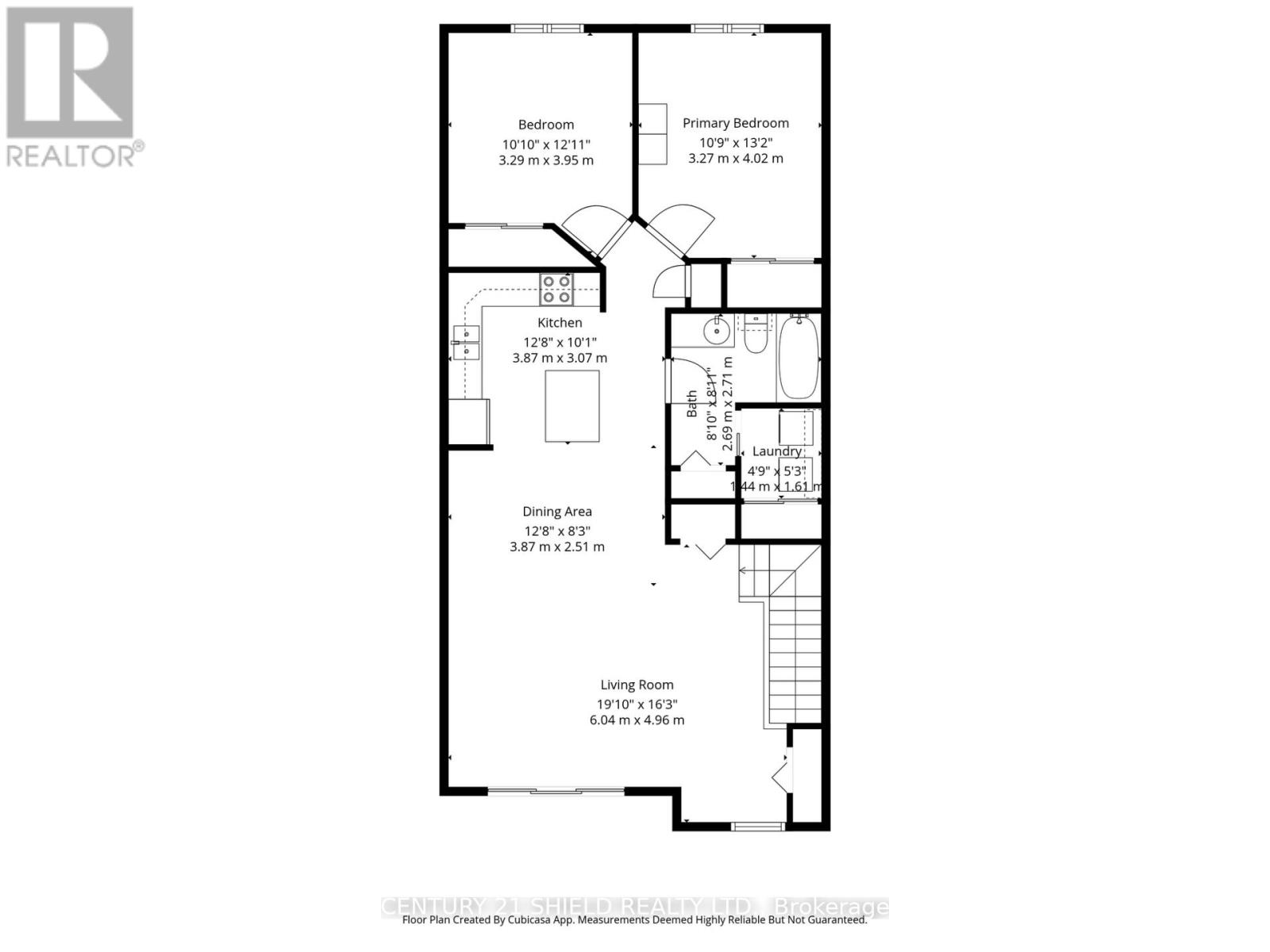
Welcome to this stunning newer-built 2-bedroom condo where modern finishes meet effortless living. From the moment you step inside, soaring cathedral ceilings create a bright, airy feel, while the open-concept layout makes everyday life feel seamless. The kitchen is both stylish and functional, featuring quartz countertops, stainless steel appliances & ample storage, and a convenient breakfast counter that flows naturally into the living space, perfect for casual meals or entertaining. Enjoy slow mornings with coffee or unwind with a glass of wine as the sun sets on your private west-facing terrace - your own peaceful outdoor retreat! You'll also appreciate the 2 lovely bedrooms and a full washroom, convenient laundry-room and storage. Designed with practicality in mind, this unit also includes a dedicated parking space located right beside the unit for easy access. Low maintenance, modern comfort & simplified living all-in-one. This is more than a condo, it's the freedom to enjoy life without the massive upkeep of a home. Please allow 24 business hours irrevocable on all offers. Updates incl.(22-24): New quartz counters, sinks, faucets in the kitchen/bathroom, most newer lighting fixtures, ceiling fans in the bedrooms, mirror in the bathroom, cut out in the tub. PLS allow 24 business hours with all offers. (42183628)

Location Description

Cross Streets: Second St E. ** Directions: Water St E to Adolphus St to First St E.

Open Houses

Mar 1
12:30-2 PM
Add to Calendar

Property Summary

Property Type
Single Family
Building Type
Apartment
Square Footage
1000 - 1199 sqft
Community Name
717 - Cornwall
Title
Condominium/Strata
Age Of Building
6 to 10 years
Annual Property Taxes
$3,706
Parking Type
No Garage
Time on REALTOR.ca
7 days

Building

Bedrooms
Above Grade
2
Bathrooms
Total
1
Interior Features
Appliances Included
All, Blinds, Dryer, Stove, Washer, Refrigerator
Flooring
Laminate
Basement Type
None
Building Features
Features
Balcony
Foundation Type
Concrete
Building Amenities
Visitor Parking
Rental Equipment
Water Heater
Heating & Cooling
Cooling
Wall unit
Heating Type
Radiant heat (Natural gas)
Exterior Features
Exterior Finish
Stone, Vinyl siding
Neighbourhood Features
Community Features
Pets Allowed With Restrictions, Community Centre
Amenities Nearby
Public Transit, Schools, Marina
Maintenance or Condo Information
Maintenance Fees
$314.82 Monthly
Maintenance Fees Include
Parking, Common Area Maintenance
Maintenance Management Company
Eastern Ontario Property Management Group
Parking
Parking Type
No Garage
Total Parking Spaces
1

Measurements

Square Footage
1000 - 1199 sqft

Rooms

MetricImperial
Main level
Dining room
Kitchen
Bathroom
Primary Bedroom
Bedroom 2
Living room

Land

Other Property Information
Zoning Description
CBD
Waterfront Features
Waterfront
Waterfront
Are you interested in touring this listing?
Request a showing

Similar Listings

SOPHIE GOUDREAU