We use cookies and other technologies for functionality, security, and to provide you with a personalized experience on our online services. By continuing to use our online services, you agree to our Privacy Policy and Terms of Use. For information on how to adjust your privacy settings, visit our Cookie Policy.
Dismiss
Home AB Grande Prairie Avondale
10119 111 Avenue
Directions Print
More Photos + 2
10119 111 Avenue $785,000
7 days ago
$785,000
Hide
Favourite

10119 111 Avenue
Grande Prairie, Alberta T8V1T5

MLS® Number: A2287590
3
Bedrooms
3
Bathrooms
1976
Square Feet

Listing Description

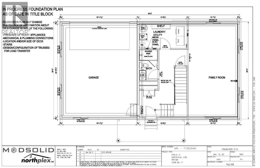
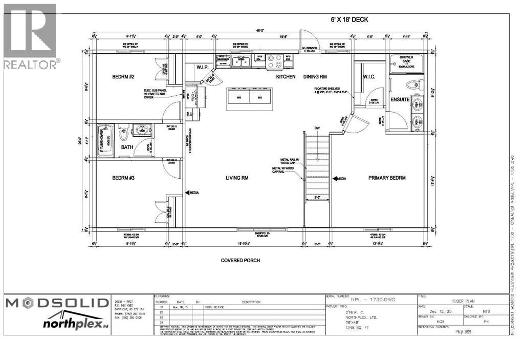
Open Concept Living room, Dining room and Kitchen. This 3 bedroom, 3 bathroom New build with $5,000.00 Appliance package, 1 year Builder warranty and 10 year New Home Warranty is all a package with this new PRE-SALE opportunity to own a new home in an older neighbourhood. This 2 Storey Modular home concept is ready for you to add your input as to what you would like to see in the unit. Or for that matter be able to build another on another lot if you desire. Please inquire as to what plans are available and make this your dream home of your choice.. Take a drive by see if this is the lot for you. (31667301)

Property Summary

Property Type
Single Family
Building Type
House
Storeys
2
Square Footage
1976 sqft
Community Name
Avondale
Subdivision Name
Avondale
Title
Freehold
Land Size
6223 sqft|4,051 - 7,250 sqft
Built in
2026
Annual Property Taxes
$1,117
Parking Type
Attached Garage (2)
Time on REALTOR.ca
7 days

Building

Bedrooms
Above Grade
3
Bathrooms
Total
3
Partial
0
Interior Features
Flooring
Other
Basement Type
Crawl space
Building Features
Features
See remarks, Back lane
Foundation Type
Piled
Style
Detached
Construction Material
Wood frame
Structures
Deck
Heating & Cooling
Cooling
None
Heating Type
Forced air
Exterior Features
Exterior Finish
Vinyl siding
Parking
Parking Type
Attached Garage (2)
Total Parking Spaces
4

Measurements

Square Footage
1976 sqft
Total Finished Area
1976 sqft

Rooms

MetricImperial
Lower level
4pc Bathroom
Upper Level
Primary Bedroom
Bedroom
Bedroom
4pc Bathroom
5pc Bathroom

Land

Lot Features
Fencing
Not fenced
Other Property Information
Zoning Description
RR
Data provided by: Pillar 9™
Are you interested in touring this listing?
Request a showing

Similar Listings

David Head