We use cookies and other technologies for functionality, security, and to provide you with a personalized experience on our online services. By continuing to use our online services, you agree to our Privacy Policy and Terms of Use. For information on how to adjust your privacy settings, visit our Cookie Policy.
Dismiss
Home ON Prince Edward County
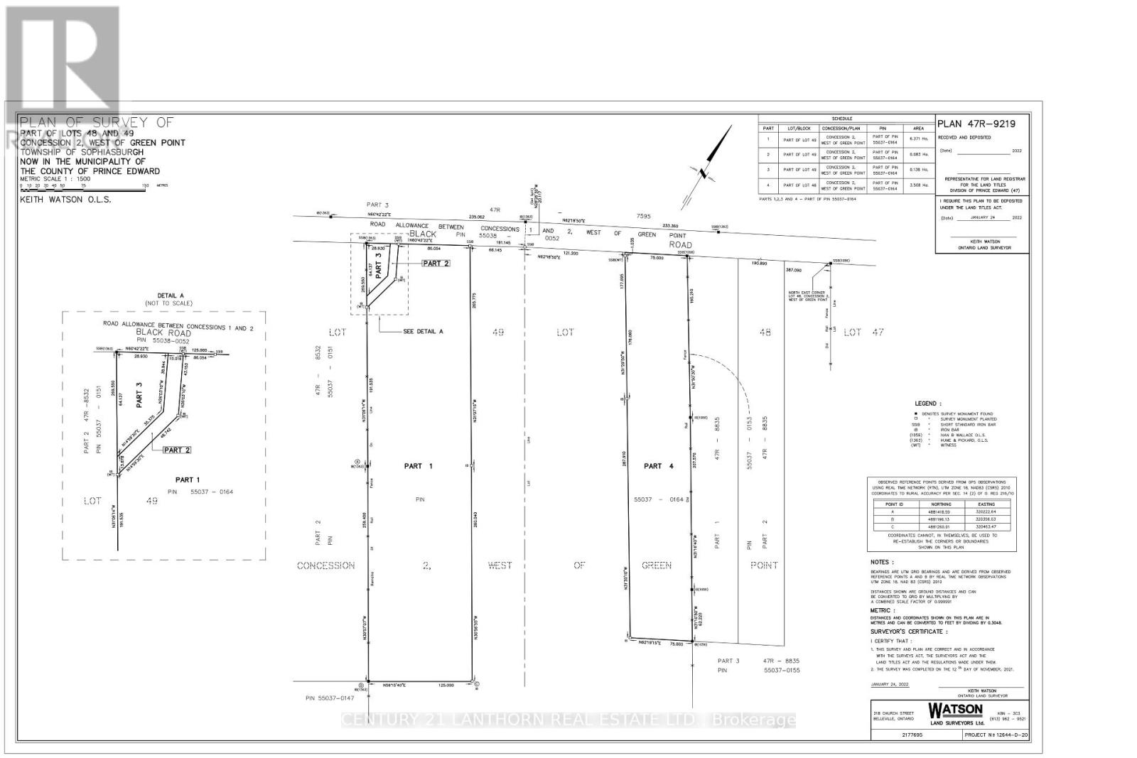
00 BLACK ROAD
Directions Print
More Photos + 2
00 BLACK ROAD $289,900
$289,900
Hide
Favourite

00 BLACK ROAD
Prince Edward County (Sophiasburg Ward), Ontario K0K1W0

MLS® Number: X12800066
0
Bathrooms
-
Square Feet

Listing Description

Lovely treed 8+ ACRE lot ready for your new custom designed built home. The seller, a reputable builder in the area is ready to accommodate the buyer with currently available house plans and/or options to customize . The well is on site with a flow rate record available. Entrance from Black Road has been completed. This area has seen many new homes and the land may provide the new owner with possibilities for hobbies and creative efforts. Easy access and commute to Belleville & close to Picton. (42175460)

Location Description

Cross Streets: Black Rd & Jericho Rd. ** Directions: HIGHWAY 62 E ON JERICHO TO BLACK.

Property Summary

Property Type
Vacant Land
Community Name
Sophiasburg Ward
Land Size
75 x 287.91 FT|5 - 9.99 acres
Annual Property Taxes
$500
Time on REALTOR.ca
8 days

Building

Bathrooms
Total
0
Utilities
Utility Type
Cable (Available), Electricity (Available)
Water
Dug Well

Land

Lot Features
Frontage
75 ft
Land Depth
287 ft ,10 in
Other Property Information
Access
Year-round access
Zoning Description
RR2
Are you interested in touring this listing?
Request a showing

Similar Listings

Joy Humphrey