We use cookies and other technologies for functionality, security, and to provide you with a personalized experience on our online services. By continuing to use our online services, you agree to our Privacy Policy and Terms of Use. For information on how to adjust your privacy settings, visit our Cookie Policy.
Dismiss
Home ON Greater Hamilton Grimsby Casablanca & Area
1311 - 385 WINSTON ROAD
Directions Print
1311 - 385 WINSTON ROAD $2,700/Monthly
$2,700/Monthly
Hide
Favourite

1311 - 385 WINSTON ROAD
Grimsby (Grimsby Beach), Ontario L3M4E8

MLS® Number: X12798760
2
Bedrooms
2
Bathrooms
900 - 999
Square Feet

Listing Description

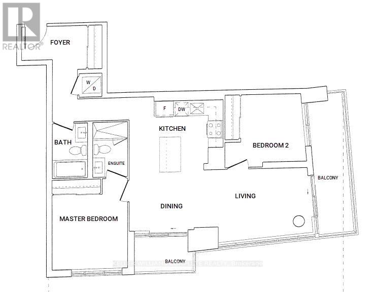
Welcome to Odyssey Condos by Rosehaven Homes, perfectly positioned in the heart of Grimsby on the Lake. This impeccably maintained 982 sq. ft. suite delivers a modern, open-concept layout designed for both comfort and style, featuring two bedrooms and two private balconies with stunning lake views. Soaring 9-foot ceilings, wide-plank 7" luxury vinyl flooring, and expansive windows flood the space with natural light throughout the day. The upgraded kitchen anchors the home with quartz countertops, stainless steel appliances, custom backsplash, and clean, contemporary finishes. The primary bedroom is a true retreat, highlighted by dramatic floor-to-ceiling windows and a sleek, upgraded bathroom with a glass shower. Enjoy the convenience of ensuite laundry, one underground parking space, and a locker. Residents have access to resort-style amenities including a rooftop terrace with BBQs, full fitness centre with yoga and spin studios, virtual concierge, Wi-Fi-enabled lounges, tech workspace, party room with bar and fireplace, pet spa, bike storage, visitor parking, and more. And the lifestyle? Unbeatable. Just steps to the lake, beach, trails, shops, and restaurants-this is lakeside living at its finest. A turnkey opportunity in an exceptional building-perfect for tenants seeking quality, convenience, and waterfront living. (42172553)

Location Description

Casablanca & Winston

Property Summary

Property Type
Single Family
Building Type
Apartment
Square Footage
900 - 999 sqft
Community Name
540 - Grimsby Beach
Title
Condominium/Strata
Age Of Building
0 to 5 years
Parking Type
Underground, Garage
Time on REALTOR.ca
8 days

Building

Bedrooms
Above Grade
2
Bathrooms
Total
2
Interior Features
Appliances Included
Central Vacuum, Dishwasher, Dryer, Garage door opener, Microwave, Hood Fan, Stove, Washer, Window Coverings, Refrigerator
Basement Type
None
Building Features
Features
Balcony, Carpet Free, In suite Laundry
Building Amenities
Security/Concierge, Exercise Centre, Party Room, Visitor Parking, Storage - Locker
Heating & Cooling
Cooling
Central air conditioning
Heating Type
Forced air (Natural gas)
Exterior Features
Exterior Finish
Brick, Stucco
Neighbourhood Features
Community Features
Pets Allowed With Restrictions
Maintenance or Condo Information
Maintenance Management Company
CPO MANAGEMENT
Parking
Parking Type
Underground, Garage
Total Parking Spaces
1

Measurements

Square Footage
900 - 999 sqft

Land

Lot Features
View
Lake view
Are you interested in touring this listing?
Request a showing

Similar Listings

CRAIG PEREIRA