We use cookies and other technologies for functionality, security, and to provide you with a personalized experience on our online services. By continuing to use our online services, you agree to our Privacy Policy and Terms of Use. For information on how to adjust your privacy settings, visit our Cookie Policy.
Dismiss
Home ON Greater Toronto Area Toronto Old Toronto St Lawrence-East Bayfront-The Islands Harbourfront
7108 - 55 COOPER STREET
Directions Print
7108 - 55 COOPER STREET $568,800
Price Change on 02/26/2026
$568,800
-$90,000
$658,800
Hide
Favourite

7108 - 55 COOPER STREET
Toronto (Waterfront Communities), Ontario M5E0G1

MLS® Number: C12796654
1
Bedrooms
1
Bathrooms
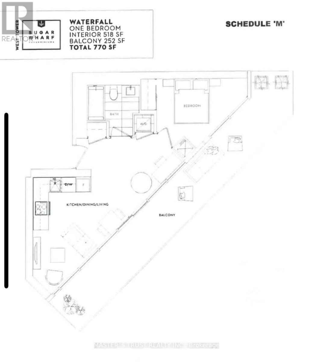
500 - 599
Square Feet

Listing Description

Sun-filled lake view 1 bedroom modern condo in the brand new Sugar Wharf Condominiums. Spacious Balcony with stunning water and city views. Building has all state of the art amenities. Perfect location!! Steps away from Sugar Beach, Restaurants, shops and public transportation. Direct access to future path. A must see!Extras: Stainless Steel Appliances: Stove, Fridge, Microwave, Dishwasher. Washer & Dryer (42168228)

Location Description

Cross Streets: Yonge / Queens Quay E. ** Directions: cooper st / lake shore blvd east.

Property Summary

Property Type
Single Family
Building Type
Apartment
Square Footage
500 - 599 sqft
Community Name
Waterfront Communities C1
Title
Condominium/Strata
Age Of Building
New building
Annual Property Taxes
$2,990.30
Parking Type
Underground, Garage
Time on REALTOR.ca
10 days

Building

Bedrooms
Above Grade
1
Bathrooms
Total
1
Interior Features
Appliances Included
Dishwasher, Dryer, Microwave, Stove, Washer, Refrigerator
Flooring
Laminate
Basement Type
None
Building Features
Features
Balcony
Heating & Cooling
Cooling
Central air conditioning
Heating Type
Forced air (Natural gas)
Exterior Features
Exterior Finish
Concrete
Neighbourhood Features
Community Features
Pets Allowed With Restrictions
Maintenance or Condo Information
Maintenance Fees
$493.82 Monthly
Maintenance Fees Include
Water
Maintenance Management Company
Menres Property Management
Parking
Parking Type
Underground, Garage
Total Parking Spaces
0

Measurements

Square Footage
500 - 599 sqft

Rooms

MetricImperial
Flat
Living room
Dining room
Kitchen
Bedroom
Are you interested in touring this listing?
Request a showing

Similar Listings

AUSTIN ZHOU