We use cookies and other technologies for functionality, security, and to provide you with a personalized experience on our online services. By continuing to use our online services, you agree to our Privacy Policy and Terms of Use. For information on how to adjust your privacy settings, visit our Cookie Policy.
Dismiss
Home AB Greater Calgary Division No. 6 Calgary Mount Pleasant
411 28 Avenue NW
Directions Print
411 28 Avenue NW $1,249,000
$1,249,000
Hide
Favourite

411 28 Avenue NW
Calgary, Alberta T2M2K7

MLS® Number: A2286864
3 + 2
Bedrooms
4
Bathrooms
1960
Square Feet

Listing Description

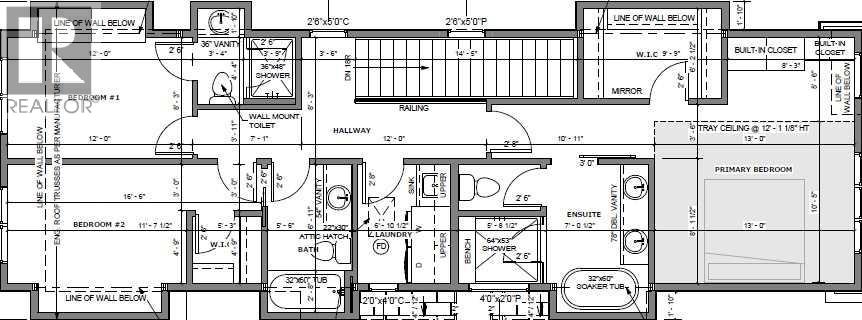
Situated on one of the area’s most charming, family-friendly streets, beautifully lined with mature oak trees, this location delivers the perfect blend of inner-city convenience and neighborhood warmth. Exceptional pre-sale opportunity in the highly sought-after community of Mount Pleasant! Offering over 2,800 sq ft of thoughtfully designed living space, this home features a fully legal basement suite with separate entrance and private laundry — perfect for rental income, mortgage assistance, or multi-generational living. The bright main floor features 11-ft ceilings, wide plank hardwood floors, and a designer kitchen with a dramatic 14-ft waterfall island, quartz countertops, white oak shaker cabinetry, plaster hood fan, premium appliances, and modern gold/black accents. The spacious living room showcases a custom brick gas fireplace and built-ins, while the mudroom offers functional storage.Upstairs offers 9-ft ceilings and a stunning primary retreat with HUGE vaulted ceilings, and a spa-inspired 5-piece ensuite with in-floor heat and steam shower rough-in. Two additional bedrooms with walk-in closets and a full laundry room complete the level.The legal basement suite includes a full kitchen, living area, 2 bedrooms, bath, and separate laundry. Additional features include dual furnaces with HRVs, A/C rough-in, ceiling speakers, security rough-in, and custom closets.Located steps to Confederation Park and minutes to SAIT, UofC, hospitals, LRT, and downtown.Call today for details! (31657620)

Property Summary

Property Type
Single Family
Building Type
House
Storeys
2
Square Footage
1960 sqft
Community Name
Mount Pleasant
Subdivision Name
Mount Pleasant
Title
Freehold
Land Size
3000 sqft|0-4,050 sqft
Built in
2026
Annual Property Taxes
$0
Parking Type
Detached Garage (2)
Time on REALTOR.ca
9 days

Building

Bedrooms
Above Grade
3
Below Grade
2
Bathrooms
Total
4
Partial
1
Interior Features
Appliances Included
Refrigerator, Gas stove(s), Dishwasher, Microwave, Hood Fan, See remarks, Garage door opener, Washer & Dryer
Flooring
Carpeted, Hardwood
Basement Features
Suite
Basement Type
Full (Finished)
Building Features
Features
See remarks, Back lane, No Animal Home, No Smoking Home, Level, Gas BBQ Hookup
Foundation Type
Poured Concrete
Style
Detached
Construction Material
Wood frame
Structures
Deck
Heating & Cooling
Cooling
See Remarks
Fireplace
1
Heating Type
Forced air
Exterior Features
Exterior Finish
See Remarks
Neighbourhood Features
Amenities Nearby
Park, Playground, Recreation Nearby, Schools, Shopping
Parking
Parking Type
Detached Garage (2)
Total Parking Spaces
2

Measurements

Square Footage
1960 sqft
Total Finished Area
1960 sqft

Rooms

MetricImperial
Main level
2pc Bathroom
Second level
5pc Bathroom
4pc Bathroom
Primary Bedroom
Bedroom
Bedroom
Unknown
4pc Bathroom
Bedroom
Bedroom

Land

Lot Features
Fencing
Fence
Frontage
7.62 m
Land Depth
36.55 m
Landscape Features
Lawn
Other Property Information
Zoning Description
RC-G
Data provided by: Pillar 9™
Are you interested in touring this listing?
Request a showing

Similar Listings

Robby Khun Khun