We use cookies and other technologies for functionality, security, and to provide you with a personalized experience on our online services. By continuing to use our online services, you agree to our Privacy Policy and Terms of Use. For information on how to adjust your privacy settings, visit our Cookie Policy.
Dismiss
Home BC Greater Kelowna Kelowna Southwest Mission
1050 Ledgeview Court
Directions Print
1050 Ledgeview Court $2,450,000
$2,450,000
Hide
Favourite

1050 Ledgeview Court
Kelowna, British Columbia V1W5M6

MLS® Number: 10376086
5
Bedrooms
4
Bathrooms
4089
Square Feet

Listing Description

Welcome to this stunning Modern Mountainside walk out rancher that perfectly blends luxury and comfort. Perched above the valley and lake, the home captures breathtaking views through oversized windows and doors, filling every space with natural light. As you walk through the front door you are immediately drawn to the expansive view with 13 foot ceilings and the over sized covered front balcony, perfect for taking in the entire Lake and Valley Views. The chef’s kitchen boasts top-of-the-line appliances, while soaring ceilings create an airy elegance throughout the main level. The primary suite is a private retreat with a full spa-like ensuite, complete with a soaker tub, steam shower, and direct access to the deck. The lower level has 10 foot ceilings and is designed for entertaining with three large bedrooms, one which is also set up as a theatre room, two full baths (including pool access), wet bar, fireplace, Built In Sound System through out the home and a spacious games and living area. Expansive covered outdoor spaces and a 16x32 ft saltwater pool with auto-cover invite year-round enjoyment. Pre-wired for Hot tub. A 3-bay garage adds functionality, while the location offers unmatched convenience close to schools, trails, and shopping. This home is a rare opportunity to experience elevated living with comfort, privacy, and endless views. Measurements are approximate. (39745927)

Property Summary

Property Type
Single Family
Building Type
House
Storeys
2
Square Footage
4089 sqft
Neighbourhood Name
Upper Mission
Title
Freehold
Land Size
0.33 ac|under 1 acre
Built in
2017
Annual Property Taxes
$9,994.58
Parking Type
Additional Parking, Attached Garage (3)
Time on REALTOR.ca
9 days

Price and Sale History

Date Status Price
Aug 5, 2019 Sale Closed $1,580,000

Building

Bathrooms
Total
4
Partial
0
Interior Features
Appliances Included
Refrigerator, Dishwasher, Dryer, Range - Gas, Microwave, Washer
Flooring
Carpeted, Hardwood, Tile
Basement Type
Full
Building Features
Features
Cul-de-sac, Central island
Style
Detached
Architecture Style
Ranch
Fire Protection
Sprinkler System-Fire, Security system, Smoke Detector Only
Heating & Cooling
Cooling
Central air conditioning
Fireplace
2
Fireplace Type
Unknown (Gas)
Heating Type
Forced air, See remarks
Utilities
Utility Sewer
Municipal sewage system
Water
Municipal water
Exterior Features
Roof Material
Asphalt shingle
Exterior Finish
Stone, Stucco
Pool Type
Inground pool, Outdoor pool
Neighbourhood Features
Community Features
Family Oriented
Amenities Nearby
Golf Nearby, Park, Recreation, Schools, Shopping
Parking
Parking Type
Additional Parking, Attached Garage (3)
Total Parking Spaces
3

Measurements

Square Footage
4089 sqft

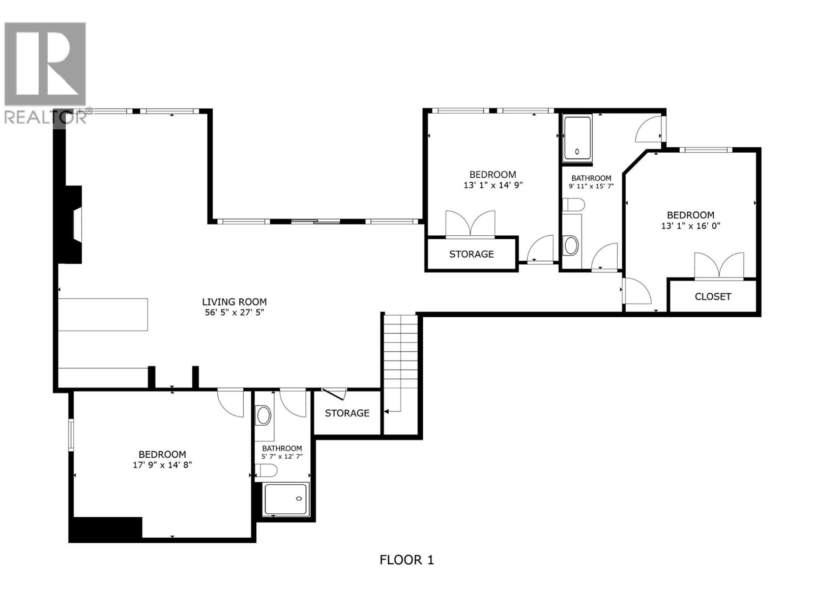
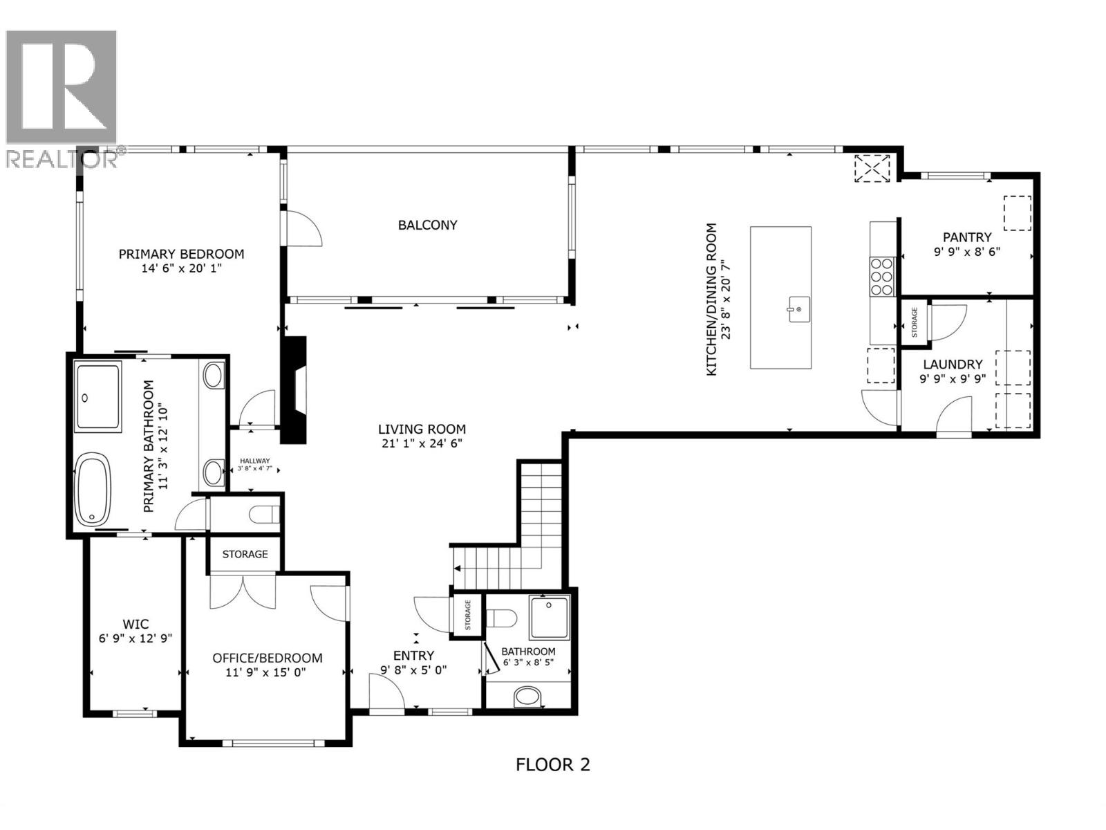
Rooms

MetricImperial
Main level
Pantry
Laundry room
Foyer
3pc Bathroom
Bedroom
Other
5pc Ensuite bath
Primary Bedroom
Kitchen
Living room
Basement
Utility room
3pc Bathroom
Bedroom
3pc Bathroom
Bedroom
Bedroom
Family room

Land

Lot Features
Frontage
75 ft
Landscape Features
Landscaped, Underground sprinkler
Road Type
Cul de sac
View
City view, Lake view, Mountain view, Valley view, View (panoramic)
Other Property Information
Access
Easy access
Are you interested in touring this listing?
Request a showing

Similar Listings

Mark J. Walker