We use cookies and other technologies for functionality, security, and to provide you with a personalized experience on our online services. By continuing to use our online services, you agree to our Privacy Policy and Terms of Use. For information on how to adjust your privacy settings, visit our Cookie Policy.
Dismiss
Home ON Hastings Belleville
393 FRONT STREET
Directions Print
393 FRONT STREET $479,000
$479,000
Hide
Favourite

393 FRONT STREET
Belleville (Belleville Ward), Ontario K8N2Z9

MLS® Number: X12792458
2
Bedrooms
1
Bathrooms
1200 - 1399
Square Feet

Listing Description

Here's a great opportunity to own a unique residential condo in one of downtown Belleville's most recognizable historic buildings. Located in the iconic Marble Hall, originally built in 1857, this second level unit offers a blend of character, charm, and modern day comfort right in the heart of the city. This 2 bedroom, 1 bathroom condo features impressive ceiling height and oversized windows that bring in plenty of natural light and offer beautiful views toward the Moira River and surrounding downtown. Inside, the space is full of warmth and personality with exposed stone accents, rich hardwood flooring throughout the main living areas, and distinctive wood flooring in the bedrooms that adds to the overall character of the home. The building itself is known for its striking unpolished marble stone exterior and its long standing presence in Belleville's downtown core. Step outside and you're within walking distance to local restaurants, cafs, shops, the waterfront, and all the energy that downtown continues to grow into. Whether you are looking for a stylish personal residence, a low maintenance downtown lifestyle, or exploring investment potential, this unit offers flexibility and a truly one of a kind setting in an up and coming part of Belleville. (42158667)

Location Description

Cross Streets: Pinnacle St & Front St. ** Directions: 401, South on North Front St(62), Pinnacle St, Front St.

Property Summary

Property Type
Single Family
Building Type
Apartment
Square Footage
1200 - 1399 sqft
Community Name
Belleville Ward
Title
Condominium/Strata
Age Of Building
100+ years
Annual Property Taxes
$3,090.88
Parking Type
No Garage
Time on REALTOR.ca
9 days

Building

Bedrooms
Above Grade
2
Bathrooms
Total
1
Interior Features
Appliances Included
Intercom, Water Heater, Alarm System, Dishwasher, Dryer, Stove, Washer, Refrigerator
Basement Type
None
Building Features
Features
Flat site, Carpet Free, In suite Laundry
Foundation Type
Block, Stone
Fire Protection
Controlled entry, Security system, Smoke Detectors
Building Amenities
Canopy, Separate Heating Controls, Separate Electricity Meters
Structures
Patio(s)
Heating & Cooling
Cooling
Central air conditioning
Heating Type
Forced air (Natural gas)
Exterior Features
Exterior Finish
Stone, Brick
Neighbourhood Features
Community Features
Pets Allowed With Restrictions
Amenities Nearby
Hospital, Public Transit, Schools, Place of Worship
Maintenance or Condo Information
Maintenance Fees
$309 Monthly
Maintenance Fees Include
Water, Insurance, Common Area Maintenance
Maintenance Management Company
N/A
Parking
Parking Type
No Garage
Total Parking Spaces
1

Measurements

Square Footage
1200 - 1399 sqft

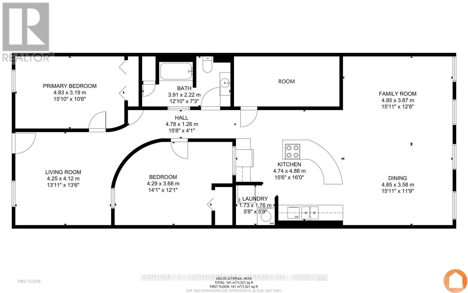
Rooms

MetricImperial
Second level
Primary Bedroom
Living room
Bedroom 2
Bathroom
Laundry room
Kitchen
Dining room
Great room

Land

Lot Features
View
River view
Other Property Information
Zoning Description
MX-1
Waterfront Features
Surface Water
River/Stream
Are you interested in touring this listing?
Request a showing

Similar Listings

ELLIOTT HAATVEDT