We use cookies and other technologies for functionality, security, and to provide you with a personalized experience on our online services. By continuing to use our online services, you agree to our Privacy Policy and Terms of Use. For information on how to adjust your privacy settings, visit our Cookie Policy.
Dismiss
Home AB Greater Calgary Division No. 6 Crossfield
1947 Mccaskill Drive
Directions Print
1947 Mccaskill Drive $499,000
$499,000
Hide
Favourite

1947 Mccaskill Drive
Crossfield, Alberta T0M0S0

MLS® Number: A2286621
4
Bedrooms
3
Bathrooms
1714
Square Feet

Listing Description

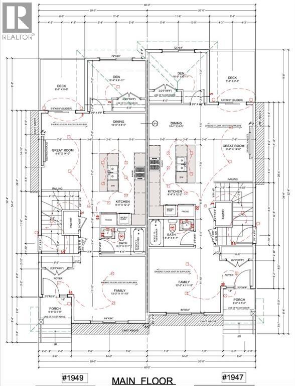
Welcome to this spacious and thoughtfully designed duplex in the charming town of Crossfield, Alberta, offering over 1,700 square feet of comfortable living space—perfect for growing families, professionals, or those seeking flexible work-from-home options.The main floor features a bright open-concept layout that seamlessly connects the living room, kitchen, and dining area, creating an ideal space for everyday living and entertaining. A separate family room provides additional space to relax or gather, while a main-floor bedroom—easily used as a home office or guest room—adds excellent versatility. A full bathroom completes the main level.Upstairs, you’ll find a well-appointed primary bedroom retreat complete with a walk-in closet and private ensuite bathroom. The upper level also includes two additional bedrooms, another full bathroom, a convenient laundry area, and a bonus room—perfect for a playroom, media space, or second living area.Located in the welcoming community of Crossfield, this duplex offers small-town charm with easy access to amenities and commuter routes. A fantastic opportunity to enjoy space, comfort, and functionality. (31650298)

Property Summary

Property Type
Single Family
Building Type
Duplex
Storeys
2
Square Footage
1714 sqft
Title
Freehold
Land Size
2871 sqft|0-4,050 sqft
Built in
2025
Annual Property Taxes
$0
Parking Type
Parking Pad
Time on REALTOR.ca
11 days

Building

Bedrooms
Above Grade
4
Bathrooms
Total
3
Partial
0
Interior Features
Appliances Included
See remarks
Flooring
Carpeted, Ceramic Tile, Laminate
Basement Features
Separate entrance
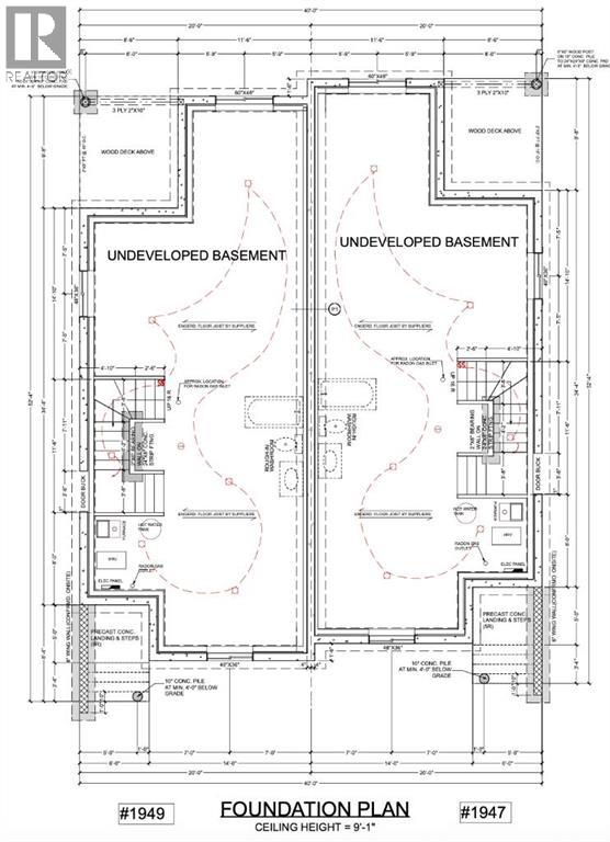
Basement Type
Full (Unfinished)
Building Features
Features
PVC window, Closet Organizers, Gas BBQ Hookup
Foundation Type
Poured Concrete
Style
Semi-detached
Structures
Deck
Heating & Cooling
Cooling
None
Fireplace
1
Heating Type
High-Efficiency Furnace, (Natural gas)
Exterior Features
Exterior Finish
Vinyl siding
Neighbourhood Features
Amenities Nearby
Playground, Schools, Shopping
Parking
Parking Type
Parking Pad
Total Parking Spaces
2

Measurements

Square Footage
1714 sqft
Total Finished Area
1714 sqft

Rooms

MetricImperial
Main level
Living room
Kitchen
Dining room
4pc Bathroom
Bedroom
Family room
Upper Level
Primary Bedroom
4pc Bathroom
Bedroom
Bedroom
4pc Bathroom
Bonus Room
Laundry room

Land

Lot Features
Fencing
Not fenced
Frontage
7.62 m
Land Depth
35.05 m
Other Property Information
Zoning Description
R-3
Data provided by: Pillar 9™
Are you interested in touring this listing?
Request a showing

403-978-0907
403-648-2765

Similar Listings

Davinder Brar