We use cookies and other technologies for functionality, security, and to provide you with a personalized experience on our online services. By continuing to use our online services, you agree to our Privacy Policy and Terms of Use. For information on how to adjust your privacy settings, visit our Cookie Policy.
Dismiss
Home ON Greater Hamilton Niagara Region Grimsby Grimsby Lakeside
20 - 19 LAKE STREET
Directions Print
20 - 19 LAKE STREET $1,295,000
$1,295,000
Hide
Favourite

20 - 19 LAKE STREET
Grimsby (Grimsby Beach), Ontario L3M0C3

MLS® Number: X12789652
2
Bedrooms
4
Bathrooms
2500 - 2749
Square Feet

Listing Description

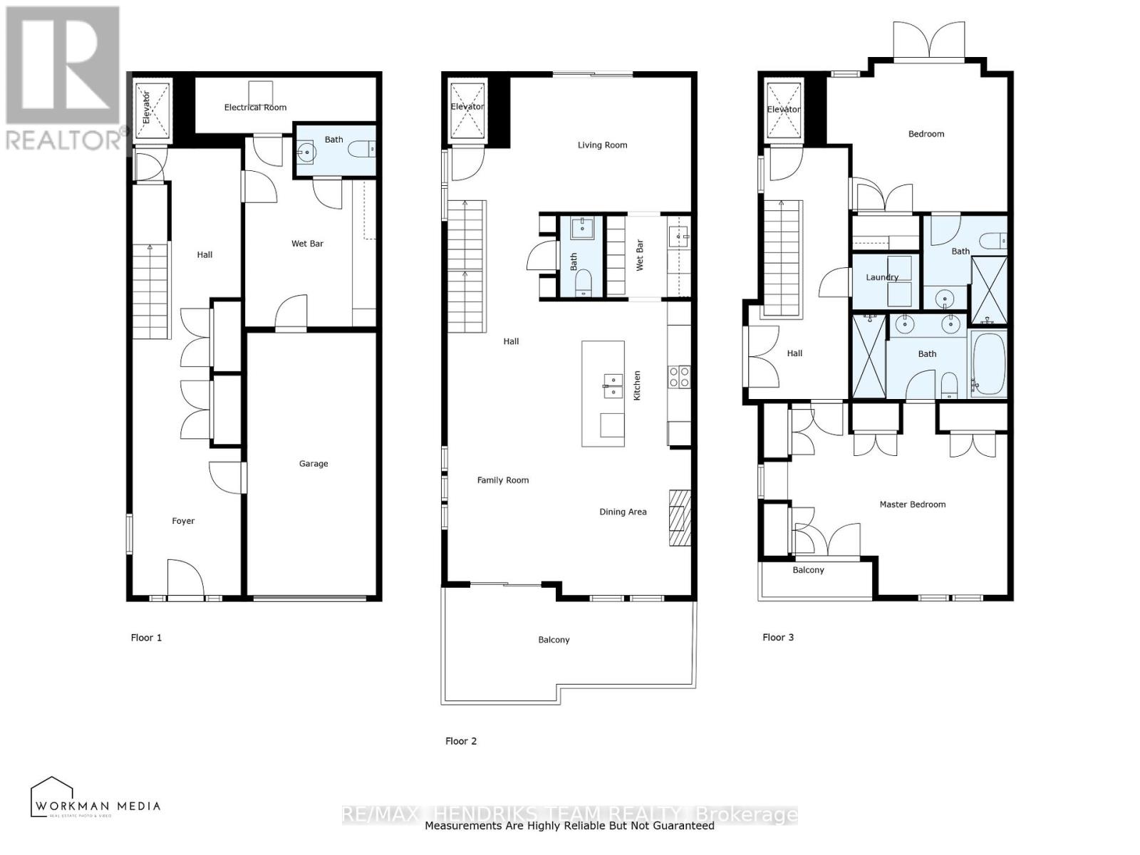
Exceptional Value at Mariner Bay Estates! Live in style, sophistication and serenity at this wonderful waterfront community in Grimsby! Nestled in a resort-like enclave built by esteemed quality builder Gatta Homes. This luxury end unit townhome with private interior elevator includes a deeded boat slip and showcases timeless craftsmanship, premium upgrades, and stunning marina views on the water's edge of Lake Ontario. Over 2,500 square feet of exceptional living space on 3 levels. The main level welcomes you into a spacious foyer with 10 ceilings, dual direct access into the garage with a second door leading into a finished workshop and adjacent 2 piece bath. Beautiful staircases or your elevator will take you to each floor. The second floor is designed for entertaining with its open concept design with 9 foot ceilings in both living and dining spaces along with a gas fireplace and sliding patio doors leading out to a large terrace overlooking the marina. The chef-inspired kitchen with high-end appliances, granite counters, and an oversized island is simply wonderful! A butlers pantry connects to a flex use space - dining room, den, or home office - whatever works best for you and your lifestyle. It opens to a private rear patio offering another great place to relax and unwind. A second powder room conveniently completes this level. Being an end unit, you'll love the extra windows on the bedroom level - also with high ceilings throughout. Fabulous primary suite with Juliette-plus balcony, lots of closet space and 5-piece ensuite with soaker tub, double sink vanity and separate shower. Lovely guest bedroom with 3-piece ensuite, Juliette balcony and a super convenient large laundry closet complete this floor. Ideally located between Toronto and Niagara's top wining and dining establishments and this one-of-a-kind waterfront residence offers an elevated lifestyle that's sure to keep you happy for years to come! (42151908)

Location Description

Cross Streets: ONTARIO ST. ** Directions: QEW TO ONTARIO ST TO LAKE ST.

Property Summary

Property Type
Single Family
Building Type
Row / Townhouse
Storeys
3
Square Footage
2500 - 2749 sqft
Community Name
540 - Grimsby Beach
Title
Condominium/Strata
Age Of Building
11 to 15 years
Annual Property Taxes
$8,310
Parking Type
Attached Garage, Garage
Time on REALTOR.ca
12 days

Building

Bedrooms
Above Grade
2
Bathrooms
Total
4
Partial
2
Interior Features
Appliances Included
Garage door opener remote(s), Oven - Built-In, Range, Water Heater - Tankless, Cooktop, Dishwasher, Dryer, Garage door opener, Microwave, Oven, Washer, Window Coverings, Refrigerator
Basement Type
None
Building Features
Features
Carpet Free
Foundation Type
Poured Concrete
Building Amenities
Fireplace(s)
Structures
Patio(s)
Heating & Cooling
Cooling
Central air conditioning, Air exchanger
Fireplace
1
Heating Type
Forced air (Natural gas)
Exterior Features
Exterior Finish
Stone, Stucco
Neighbourhood Features
Community Features
Pets Allowed With Restrictions
Amenities Nearby
Marina
Maintenance or Condo Information
Maintenance Fees
$704.14 Monthly
Maintenance Fees Include
Common Area Maintenance, Insurance, Parking
Maintenance Management Company
SHABRI PROPERTY MGMT
Parking
Parking Type
Attached Garage, Garage
Total Parking Spaces
2

Measurements

Square Footage
2500 - 2749 sqft

Rooms

MetricImperial
Main level
Foyer
Workshop
Second level
Living room
Kitchen
Dining room
Third level
Primary Bedroom
Laundry room
Bedroom

Land

Lot Features
Landscape Features
Landscaped
View
View of water, Direct Water View
Other Property Information
Access
Year-round access, Marina Docking, Private Docking
Easements
Unknown
Waterfront Features
Waterfront
Waterfront
Waterfront Name
Lake Ontario
Access
Marina Docking, Private Docking
Are you interested in touring this listing?
Request a showing

Similar Listings

Jerry Hendriks