We use cookies and other technologies for functionality, security, and to provide you with a personalized experience on our online services. By continuing to use our online services, you agree to our Privacy Policy and Terms of Use. For information on how to adjust your privacy settings, visit our Cookie Policy.
Dismiss
Home ON Greater Cornwall United Counties of Stormont, Dundas and Glengarry South Stormont Beaver Glen
16985 HEADLINE ROAD
Directions Print
16985 HEADLINE ROAD $875,000
$875,000
Hide
Favourite

16985 HEADLINE ROAD
South Stormont, Ontario K0C1P0

MLS® Number: X12789456
4
Bedrooms
3
Bathrooms
2500 - 3000
Square Feet

Listing Description

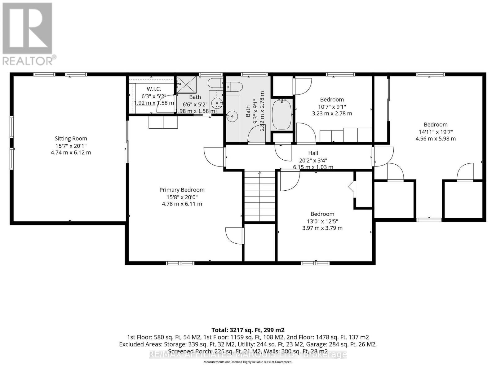
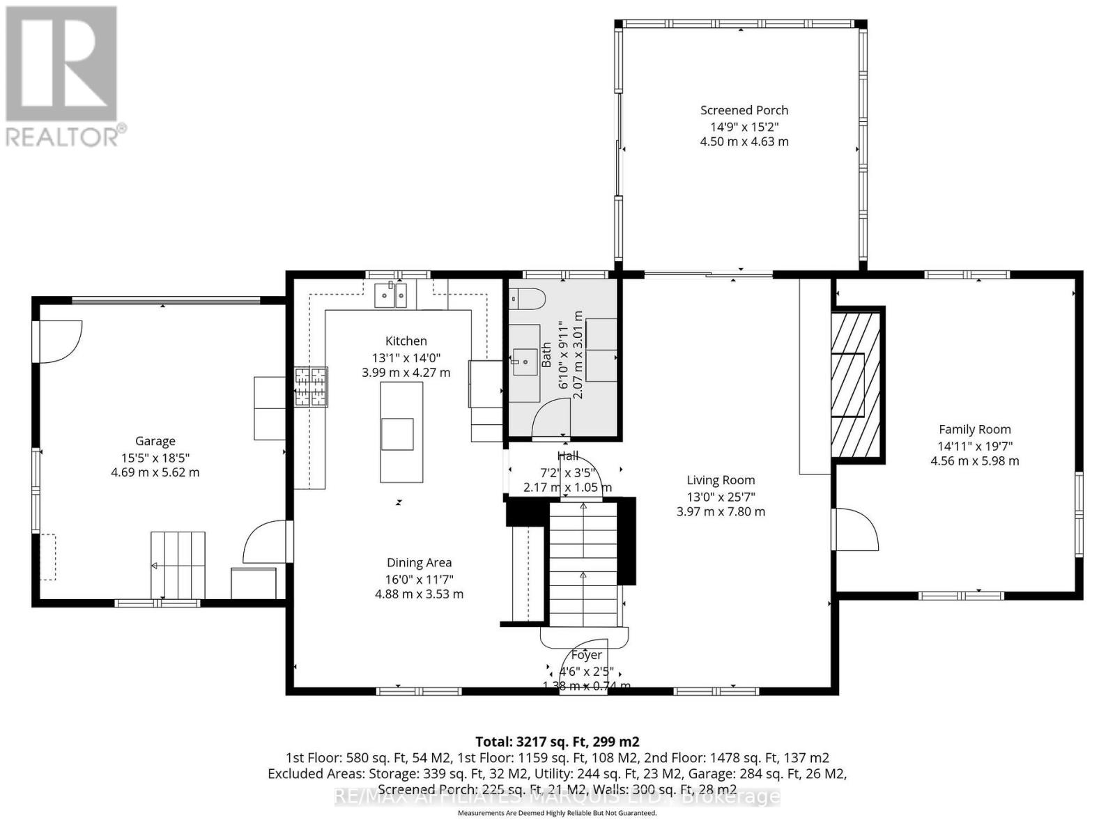
Welcome to this stunning 3,000 sq. ft. log home set on over 2 beautifully maintained acres just outside the city limits. Offering the perfect blend of peaceful rural living and convenient proximity to Cornwall, this property is ideal for families seeking space, character, and comfort. From the moment you arrive, the charm is undeniable. A spacious front porch invites you to relax and enjoy the quiet surroundings. Inside, exposed wood throughout the main floor creates a warm, timeless atmosphere. The updated eat-in kitchen features custom cabinetry, granite countertops, and a large island perfect for gathering. The inviting living room is highlighted by a striking stone fireplace with a gas insert and patio doors leading to the expansive screened-in patio, ideal for evening relaxation. A separate main-floor family room offers additional living space, and a convenient 2-piece bath combined with laundry adds everyday practicality. Upstairs you'll find four generously sized bedrooms. The primary suite includes a private 3-piece ensuite and a bonus room that could serve as a fifth bedroom, office, nursery, or exercise space. A full bathroom and an additional second-floor family room provide flexibility for growing families. The basement is currently used for storage but offers excellent potential for future development, with a walk-out from the attached single-car garage. Outside, the immaculate yard showcases mature landscaping, stone walkways, multiple patio areas, and a fire pit, perfect for entertaining or peaceful evenings under the stars. With ample parking and space for campers, boats, or recreational vehicles, this property blends lifestyle and practicality. Located minutes to Cornwall, approximately one hour to Ottawa and just over an hour to Montreal, this home offers space, warmth, and character you won't want to miss. (42151476)

Location Description

Cross Streets: Highway 138. ** Directions: West of Highway 138 on Headline Road.

Property Summary

Property Type
Single Family
Building Type
House
Storeys
2
Square Footage
2500 - 3000 sqft
Community Name
716 - South Stormont (Cornwall) Twp
Title
Freehold
Land Size
229 x 436 FT
Annual Property Taxes
$5,031
Parking Type
Attached Garage, Garage
Time on REALTOR.ca
12 days

Building

Bedrooms
Above Grade
4
Bathrooms
Total
3
Partial
1
Interior Features
Appliances Included
Water Heater, Water softener
Basement Type
Full (Unfinished)
Building Features
Features
Irregular lot size
Foundation Type
Concrete
Style
Detached
Building Amenities
Fireplace(s)
Heating & Cooling
Cooling
Central air conditioning
Heating Type
Forced air (Natural gas)
Utilities
Utility Sewer
Septic System
Exterior Features
Exterior Finish
Log, Wood
Parking
Parking Type
Attached Garage, Garage
Total Parking Spaces
11

Measurements

Square Footage
2500 - 3000 sqft

Land

Lot Features
Frontage
229 ft
Land Depth
436 ft
Are you interested in touring this listing?
Request a showing

Similar Listings

TANYA FLARO