We use cookies and other technologies for functionality, security, and to provide you with a personalized experience on our online services. By continuing to use our online services, you agree to our Privacy Policy and Terms of Use. For information on how to adjust your privacy settings, visit our Cookie Policy.
Dismiss
Home AB Greater Calgary Division No. 6 Crossfield
1185 Iron Ridge Avenue
Directions Print
1185 Iron Ridge Avenue $646,000
$646,000
Hide
Favourite

1185 Iron Ridge Avenue
Crossfield, Alberta T0M0S0

MLS® Number: A2276911
2 + 2
Bedrooms
3
Bathrooms
1323
Square Feet

Listing Description

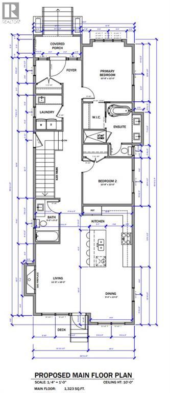
Take a look at this custom-built home in the family-friendly community of Crossfield. This brand-new bungalow offers a total of 2,353 square feet of well-designed living space, with 1,323 square feet on the main floor and 1,030 square feet in the finished basement.Inside, you’ll find 10 foot ceilings on the main level and 9 foot ceilings in the basement, giving the home a bright and open feel. The main floor features a covered front porch, a large deck in the backyard, and an open concept layout that’s perfect for both relaxing and entertaining.The kitchen comes fully loaded with a big island, quartz countertops, premium stainless steel appliances, black hardware, high end lighting, and solid plywood shaker cabinets. The living room has a modern Montigo gas fireplace, and the space is finished with durable luxury vinyl plank flooring, Maple wood touches, and black dual pane windows that give it a modern look.The exterior includes a mix of stucco and stone finishes, all part of the included upgrades.The primary bedroom is a great place to unwind. It comes with a five piece ensuite and a walk in closet. There’s also a second bedroom on the main floor, plus a full four piece bathroom and a laundry room with a sink.Head downstairs and you’ll find even more space including a third bedroom with a walk in closet, a home office, a large rec room with a built in media center and shelving, a wet bar, and a fourth bedroom. There’s also a separate side entrance, perfect for privacy or future rental potential.Outside, there’s a double detached garage, a fully landscaped yard, and plenty of room to enjoy the outdoors.This home is located in the growing Iron Landing area, close to parks, playgrounds, shopping, and schools like Crossfield Elementary and W G Murdoch School. You’re also just a short drive from Airdrie (under 10 minutes), 25 minutes to Calgary, and close to Highway 2 for an easy commute.The home still have the chance to choose some of the finishes to make it your own. Photos shown are from a previous build. Visit our show home to get a feel for the quality and style.Reach out today to learn more or to book a visit. (31634281)

Property Summary

Property Type
Single Family
Building Type
House
Storeys
1
Square Footage
1323 sqft
Title
Freehold
Land Size
3444 sqft|0-4,050 sqft
Built in
2025
Annual Property Taxes
$0
Parking Type
Detached Garage (2)
Time on REALTOR.ca
14 days

Building

Bedrooms
Above Grade
2
Below Grade
2
Bathrooms
Total
3
Partial
0
Interior Features
Appliances Included
Washer, Refrigerator, Range - Gas, Dishwasher, Dryer, Microwave, Hood Fan
Flooring
Tile, Vinyl Plank
Basement Features
Separate entrance
Basement Type
Full (Unfinished)
Building Features
Features
Back lane, PVC window, No Animal Home, No Smoking Home, Gas BBQ Hookup, VisitAble
Foundation Type
Poured Concrete
Style
Detached
Architecture Style
Bungalow
Construction Material
Poured concrete, Wood frame
Structures
Deck, Porch
Heating & Cooling
Cooling
None
Fireplace
1
Heating Type
Other, Forced air, (Natural gas)
Exterior Features
Exterior Finish
Concrete, Vinyl siding
Neighbourhood Features
Community Features
Golf Course Development
Amenities Nearby
Golf Course, Park, Playground, Recreation Nearby, Schools, Shopping
Parking
Parking Type
Detached Garage (2)
Total Parking Spaces
2

Measurements

Square Footage
1323 sqft
Total Finished Area
1323 sqft

Rooms

MetricImperial
Main level
Dining room
Living room
4pc Bathroom
Primary Bedroom
Bedroom
5pc Bathroom
Basement
Office
Bedroom
Bedroom
4pc Bathroom

Land

Lot Features
Fencing
Partially fenced
Frontage
9.14 m
Land Depth
35.05 m
Landscape Features
Landscaped
Other Property Information
Zoning Description
R-1C
Data provided by: Pillar 9™
Are you interested in touring this listing?
Request a showing

403-821-0520
403-648-2765

Similar Listings

Jay Bhinder