We use cookies and other technologies for functionality, security, and to provide you with a personalized experience on our online services. By continuing to use our online services, you agree to our Privacy Policy and Terms of Use. For information on how to adjust your privacy settings, visit our Cookie Policy.
Dismiss
Home ON Greater London Middlesex County London Talbot
6346 OLD GARRISON BOULEVARD
Directions Print
6346 OLD GARRISON BOULEVARD $1,349,900
$1,349,900
Hide
Favourite

6346 OLD GARRISON BOULEVARD
London South (South V), Ontario N6P0H3

MLS® Number: X12776020
5
Bedrooms
5
Bathrooms
3000 - 3500
Square Feet

Listing Description

Move-In Ready & Exceptional Value - The Greengrove III by Mapleton Homes. Take advantage of builder discount of approximately $45,000 on this amazing property. This significant price reduction makes this luxury home an outstanding opportunity for buyers seeking space, quality, and immediate equity in one of Southwest London's most desirable communities - Talbot Village. Offering 5 bedrooms and 5 bathrooms, this thoughtfully designed 3,178 sq. ft. residence blends elegance with everyday functionality. A main-floor bedroom with private ensuite provides ideal flexibility for guests, extended family, or a sophisticated home office.Positioned on a premium 52-ft lot backing onto green space, the home features a bright open-concept layout enhanced by engineered hardwood flooring, high-end German tilt-and-turn windows, and refined trim detailing throughout. Value-Packed Features Include: already included $45,000 Builder Discount - Brand New Appliance Package complete with Gas Range. Separate Exterior Basement Entrance and impressive 8'-11' Basement Ceiling Heights. Spacious entertaining areas filled with natural light. Amazing location where homeowners enjoy close proximity to parks, walking trails, recreation facilities, excellent schools, shopping, dining, fitness centres, and entertainment - all within a short walk and or drive. First-time buyers may also be eligible for upcoming Federal and/or Provincial HST rebate programs once officially available, creating even greater potential savings. A rare chance to secure a move-in-ready luxury home with a substantial builder incentive in a prime location - combining lifestyle, space, and exceptional value. (42121005)

Location Description

From Pack Rd. turn north on Frontier and East on Old Garrison

Property Summary

Property Type
Single Family
Building Type
House
Storeys
2
Square Footage
3000 - 3500 sqft
Community Name
South V
Title
Freehold
Land Size
52.5 x 118 FT|under 1/2 acre
Age Of Building
New building
Annual Property Taxes
$0
Parking Type
Attached Garage, Garage
Time on REALTOR.ca
16 days

Building

Bedrooms
Above Grade
5
Bathrooms
Total
5
Partial
1
Interior Features
Appliances Included
Garage door opener remote(s), Dishwasher, Dryer, Gas stove(s), Washer, Refrigerator
Flooring
Hardwood
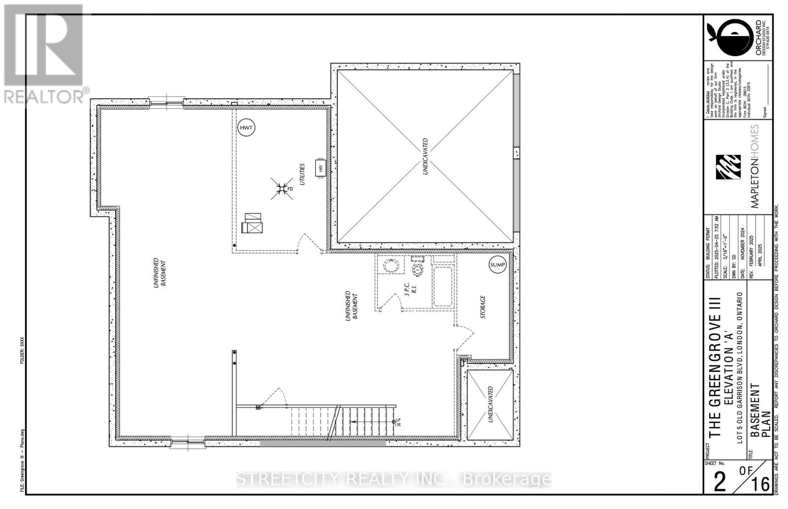
Basement Features
Separate entrance
Basement Type
Full, Unfinished
Building Features
Features
Flat site, Sump Pump
Foundation Type
Poured Concrete
Style
Detached
Fire Protection
Smoke Detectors
Building Amenities
Fireplace(s)
Rental Equipment
Water Heater
Heating & Cooling
Cooling
Central air conditioning
Fireplace
1
Heating Type
Forced air (Natural gas)
Utilities
Utility Type
Cable (Available), Electricity (Installed), Sewer (Installed)
Utility Sewer
Sanitary sewer
Water
Municipal water
Exterior Features
Exterior Finish
Brick, Stone
Neighbourhood Features
Community Features
School Bus
Amenities Nearby
Golf Nearby, Hospital, Place of Worship, Public Transit, Schools
Parking
Parking Type
Attached Garage, Garage
Total Parking Spaces
4

Measurements

Square Footage
3000 - 3500 sqft

Rooms

MetricImperial
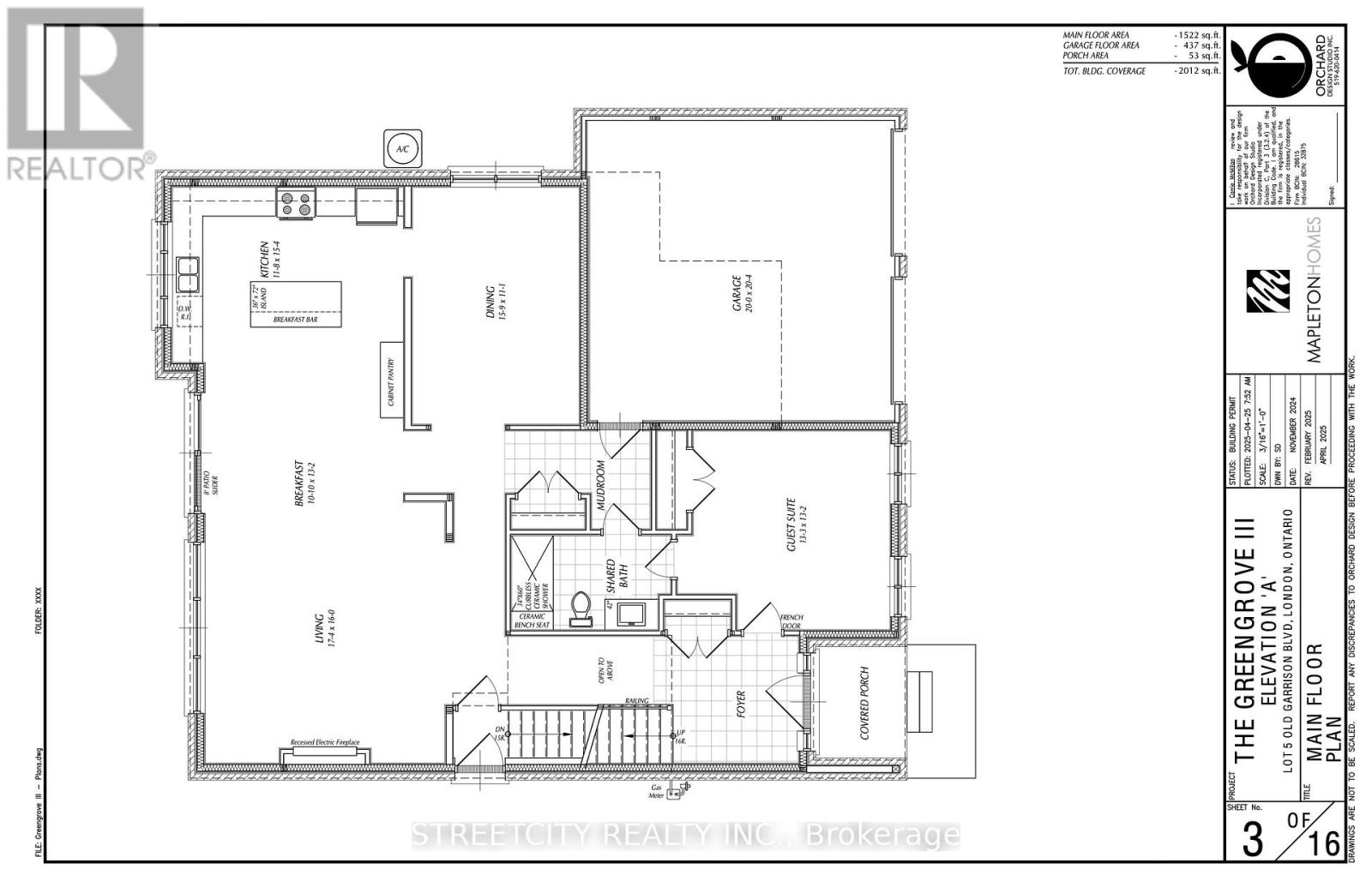
Main level
Living room
Eating area
Kitchen
Dining room
Bedroom 5
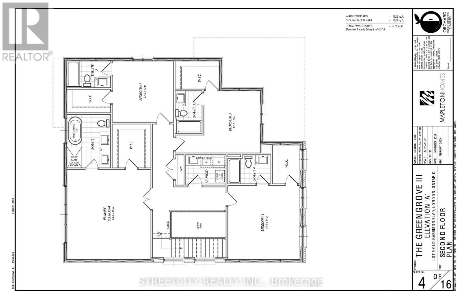
Second level
Primary Bedroom
Bedroom 2
Bedroom 3
Bedroom 4

Land

Lot Features
Frontage
52 ft ,6 in
Land Depth
118 ft
Are you interested in touring this listing?
Request a showing

Similar Listings

MARK MORNINGSTAR