We use cookies and other technologies for functionality, security, and to provide you with a personalized experience on our online services. By continuing to use our online services, you agree to our Privacy Policy and Terms of Use. For information on how to adjust your privacy settings, visit our Cookie Policy.
Dismiss
Home ON Greater Toronto Area York Region Markham Cornell
507 - 58 ADAM SELLERS STREET
Directions Print
507 - 58 ADAM SELLERS STREET $699,900
$699,900
Hide
Favourite

507 - 58 ADAM SELLERS STREET
Markham (Cornell), Ontario L6B1P5

MLS® Number: N12773264
2
Bedrooms
2
Bathrooms
900 - 999
Square Feet

Listing Description

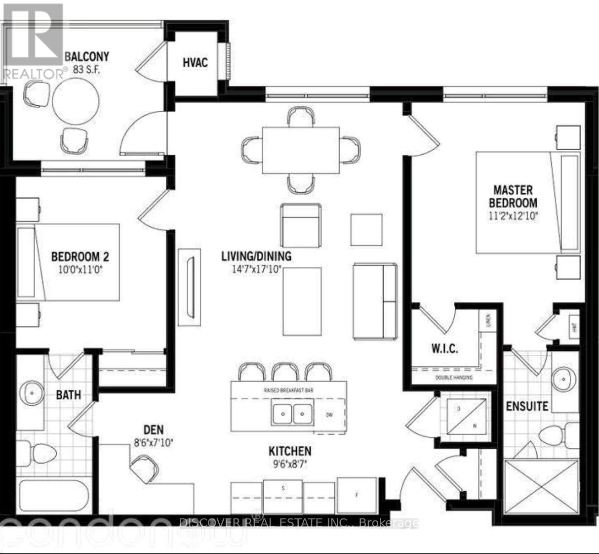
Immaculately kept And Spacious 2 Bedroom, 2-Bath Layout In The Highly Sought-After Cornell Community Of Markham. Offering Thoughtfully Designed Living Space, This Bright Residence Boasts Soaring 9-Ft Ceilings, Premium Laminate Flooring Throughout, And An Open-Concept Layout Filled With Natural Light From Oversized West-Facing Windows. The Generous Primary Bedroom, Versatile Second Bedroom, Complemented By Full-Size Laundry, Custom Built-Ins, And Upgraded Finishes Throughout. The Chef-Inspired Kitchen Showcases Stainless Steel Appliances, Granite Countertops, An Oversized Island With Bar Seating, Upgraded Cabinetry With Built-In Pantry, Under-Mount Sink, And Custom Backsplash-Perfect For Both Everyday Living And Entertaining. Enjoy Seamless Year-Round Indoor-Outdoor Living On The Expansive 83 sqft Glass-Enclosed Balcony With Retractable Panels, Upgraded Blinds, And Additional Storage. Ideally Located Just Steps To Cornell Community Centre & Library, Markham-Stouffville Hospital, Parks, Viva Transit Terminal, Go Station, And With Easy Access To Hwy 7 And Hwy 407. Resort-Style Amenities Include A Fully Equipped Gym, Party Room, And Ample Visitor Parking. Includes Upgraded Parking/Locker Combo. Move-In Ready or 4yr old Tenant willing To Continue. (42115115)

Location Description

Cross Streets: Hwy7 / Bur Oak. ** Directions: Hwy7-Bur Oak-Arthur Bonner.

Property Summary

Property Type
Single Family
Building Type
Apartment
Square Footage
900 - 999 sqft
Community Name
Cornell
Title
Condominium/Strata
Annual Property Taxes
$2,794
Parking Type
Underground, Garage
Time on REALTOR.ca
17 days

Building

Bedrooms
Above Grade
2
Bathrooms
Total
2
Interior Features
Appliances Included
Range, Dishwasher, Dryer, Stove, Washer, Window Coverings, Refrigerator
Flooring
Hardwood
Basement Type
None
Building Features
Features
Balcony, Carpet Free, In suite Laundry
Building Amenities
Exercise Centre, Party Room, Visitor Parking, Storage - Locker
Rental Equipment
Water Heater
Heating & Cooling
Cooling
Central air conditioning
Heating Type
Forced air (Natural gas)
Exterior Features
Exterior Finish
Concrete
Neighbourhood Features
Community Features
Pets Allowed With Restrictions, Community Centre, School Bus
Amenities Nearby
Hospital, Public Transit, Schools
Maintenance or Condo Information
Maintenance Fees
$604.06 Monthly
Maintenance Fees Include
Common Area Maintenance, Insurance, Parking
Maintenance Management Company
First service Residential
Parking
Parking Type
Underground, Garage
Total Parking Spaces
1

Measurements

Square Footage
900 - 999 sqft

Rooms

MetricImperial
Ground level
Living room
Den
Kitchen
Primary Bedroom
Bedroom 2
Are you interested in touring this listing?
Request a showing

Similar Listings

Wahaj Ahmed