We use cookies and other technologies for functionality, security, and to provide you with a personalized experience on our online services. By continuing to use our online services, you agree to our Privacy Policy and Terms of Use. For information on how to adjust your privacy settings, visit our Cookie Policy.
Dismiss
Home MB Greater Winnipeg Division No. 11 Winnipeg Margaret Park
230 Armstrong Avenue
Directions Print
More Photos + 2
230 Armstrong Avenue $449,900
6 hours ago
$449,900
Hide
Favourite

230 Armstrong Avenue
Winnipeg, Manitoba R2V1P6

MLS® Number: 202602265
3
Bedrooms
3
Bathrooms
1388
Square Feet

Listing Description

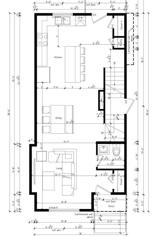
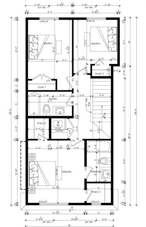
4D//Winnipeg/BRAND NEW! Tastefully upgraded 1388 Sq Ft two storey home in desirable West Kildonan. Located on a quiet street, this home is nearing completion and features open concept living with 3 bedrooms, 2.5 baths as well as 3 separate entrances and a spacious unfinished basement which awaits your personal touch! Master bedroom features his and hers walk in closets and full 4 piece ensuite bath. Main floor features 9 foot ceilings throughout, large modern kitchen with quartz counter tops, ample storage. Quality finishes throughout which include: Silent floor joists, High efficiency Furnace, HRV and Hot Water Tank, Sump pump, Maintenance free PVC windows and doors, led lighting throughout, upgraded flooring, Stucco and Siding mixture on the exterior. Still some time to pick custom finishes. Prime location just minutes away from Kildonan Park, Main Street and all amenities such as shopping, all levels of school and easy access to bus service. Home warranty included. Appliances negotiable. Call today to book a showing! (231938010)

Property Summary

Property Type
Single Family
Building Type
House
Storeys
2
Square Footage
1388 sqft
Community Name
West Kildonan
Neighbourhood Name
West Kildonan
Title
Freehold
Land Size
25 x 100
Built in
2025
Annual Property Taxes
$1,587.55
Parking Type
Other
Time on REALTOR.ca
6 hours

Building

Bathrooms
Total
3
Partial
1
Interior Features
Flooring
Vinyl Plank
Building Features
Features
Back lane, Paved lane, Exterior Walls- 2x6", No Smoking Home, No Pet Home, Sump Pump
Fire Protection
Smoke Detectors
Heating & Cooling
Heating Type
Heat Recovery Ventilation (HRV), High-Efficiency Furnace, Forced air (Natural gas)
Utilities
Utility Sewer
Municipal sewage system
Water
Municipal water
Neighbourhood Features
Community Features
Public Swimming Pool
Amenities Nearby
Golf Nearby, Playground, Public Transit, Shopping
Parking
Parking Type
Other

Measurements

Square Footage
1388 sqft

Rooms

MetricImperial
Main level
Living room
Dining room
Kitchen
Upper Level
Primary Bedroom
Bedroom
Bedroom

Land

Lot Features
Frontage
25 ft
Land Depth
100 ft
Road Type
Paved road
Are you interested in touring this listing?
Request a showing

204-294-2299
204-339-5060

Similar Listings

Kuljit Singh Gill