We use cookies and other technologies for functionality, security, and to provide you with a personalized experience on our online services. By continuing to use our online services, you agree to our Privacy Policy and Terms of Use. For information on how to adjust your privacy settings, visit our Cookie Policy.
Dismiss
Home QC Le Haut-Richelieu Saint-Paul-de-l'Île-aux-Noix
36A Rue St-Germain
Directions Print
36A Rue St-Germain $618,800 + GST + QST
12 hours ago
$618,800 + GST + QST
Hide
Favourite

36A Rue St-Germain
Saint-Paul-de-l'Île-aux-Noix, Quebec J0J1G0

MLS® Number: 22033387
5
Bedrooms
2
Bathrooms
-
Square Feet

Listing Description

Bienvenue à votre construction neuve rue St-Germain, St-Paul ! * MAISON NEUVE / GARANTIE GCR 5 ANS / 4 CHAMBRES (POSS. 5) / GARAGE * Construction neuve 4 chambres,2 salles de bains et beaucoup d'inclusions : thermopompe,s-sol en option ($),patio sur pieux visés,éclairage LED,comptoir + dosseret de Quartz (cuisine),douche céramique et + ... Secteur familial avec plusieurs constructions récentes. Terrain intime et privé situé sur un coin de rue. Prix total : 711 465.30 $ taxes incluses. Voir addenda pour infos supplémentaires ! Rare occasion sur un terrain de + de 27 000 PI2. 1er acheteur, le prix pourrait être 680 525$ !!! GST/QST must be added to the asking price (51367986)

Property Summary

Property Type
Single Family
Building Type
House
Storeys
1
Land Size
2519.9 m2
Age Of Building
New building
Parking Type
Garage, Other
Time on REALTOR.ca
12 hours

Building

Bathrooms
Total
2
Partial
0
Interior Features
Basement Features
Six feet and over
Basement Type
Full (Partially finished)
Building Features
Features
Corner Site, Flat site, Melamine cupboard, PVC window, Non Paved Driveway
Foundation Type
Poured Concrete
Style
Detached
Fire Protection
Fire alarm system
Heating & Cooling
Cooling
Air exchanger
Heating Type
(Electric)
Utilities
Utility Sewer
Septic tank
Water
Well
Exterior Features
Roof Style
Asphalt shingle
Neighbourhood Features
Amenities Nearby
Park
Parking
Parking Type
Garage, Other
Total Parking Spaces
3

Rooms

MetricImperial
Main level
Kitchen
Other
Other
Primary Bedroom
Bedroom
Bathroom
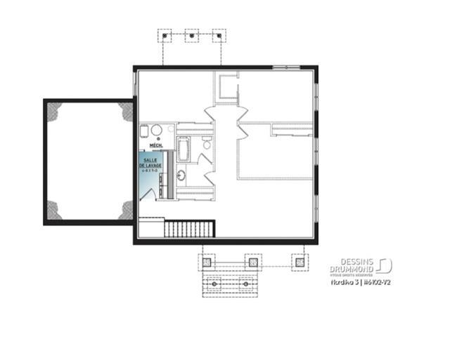
Basement
Laundry room
Other

Land

Lot Features
Frontage
60.1 m
Other Property Information
Zoning Type
Residential
Farm Features
Farm Type
Other
Are you interested in touring this listing?
Request a showing

Similar Listings

Samuel Sicotte