We use cookies and other technologies for functionality, security, and to provide you with a personalized experience on our online services. By continuing to use our online services, you agree to our Privacy Policy and Terms of Use. For information on how to adjust your privacy settings, visit our Cookie Policy.
Dismiss
Home BC Greater Vernon North Okanagan Coldstream
13940 PONDEROSA Way
Directions Print
13940 PONDEROSA Way $2,099,000
14 hours ago
$2,099,000
Hide
Favourite

13940 PONDEROSA Way
Coldstream, British Columbia V1B1A4

MLS® Number: 10375069

Listing Description

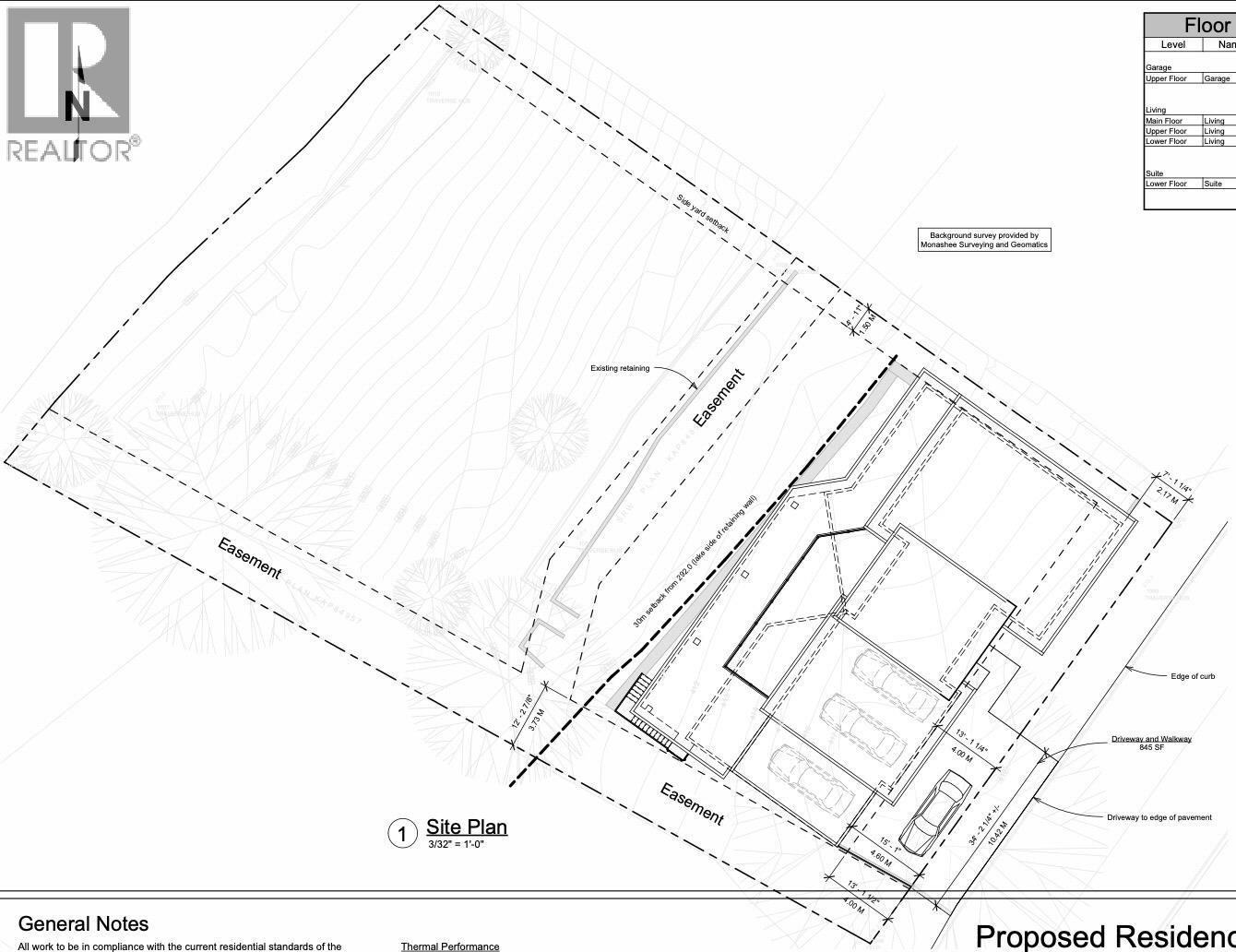
Incredible opportunity to own 115 feet of Kalamalka Lakefront in the sought-after Long Lake Estates subdivision, just down the street from mountain biking and hiking at Kal Park. Location cannot be any better! This almost half-acre lot offers the best of both worlds: beautiful lake and valley views from your future home, plus the added value of your dock-ready waterfront on the pristine shores of the ‘lake of many colours.’ A custom designed steel stud, non combustible 4993 sq.’ home with a 660 sq.’ suite plus 3 car garage and spacious 655 sq.’ of deck has been specifically designed for this lot to optimize this amazing lot and take in the surreal surroundings. All of the riparian, geotechnical and pre-construction requirements as well as full building permit ready plans have been completed and are transferable, and the legal dock is ready to be rebuilt. Make it your own today and start building this dream home this year! Builder in place ! (39708598)

Property Summary

Property Type
Vacant Land
Building Type
Other
Neighbourhood Name
Mun of Coldstream
Title
Freehold
Land Size
0.4 ac|under 1 acre
Annual Property Taxes
$7,639.52
Time on REALTOR.ca
14 hours

Price and Sale History

Date Status Price
Nov 21, 2002 Sale Closed $260,000

Building

Utilities
Utility Type
Cable (Available), Electricity (Available), Natural Gas (Available), Telephone (Available), Sewer (Available), Water (Available)
Utility Sewer
Municipal sewage system
Water
Municipal water

Land

Lot Features
Road Type
Paved road
View
City view, Lake view, Mountain view, Valley view, View of water, View (panoramic)
Waterfront Features
Surface Water
Lake
Are you interested in touring this listing?
Request a showing

Similar Listings

Dan Reinhardt