We use cookies and other technologies for functionality, security, and to provide you with a personalized experience on our online services. By continuing to use our online services, you agree to our Privacy Policy and Terms of Use. For information on how to adjust your privacy settings, visit our Cookie Policy.
Dismiss
Home AB Greater Edmonton Edmonton Carlton
14005 158A AV NW
Directions Print
14005 158A AV NW $425,000
23 hours ago
Next Open House
Feb
8
$425,000
Hide
Favourite

14005 158A AV NW
Edmonton, Alberta T6V1V7

MLS® Number: E4472486
3
Bedrooms
3
Bathrooms
1421
Square Feet

Listing Description

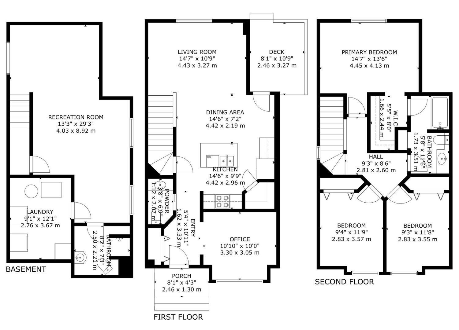
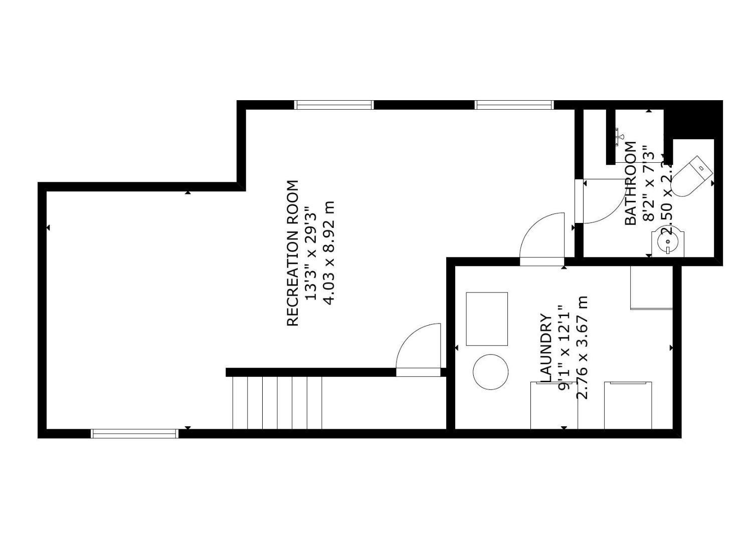
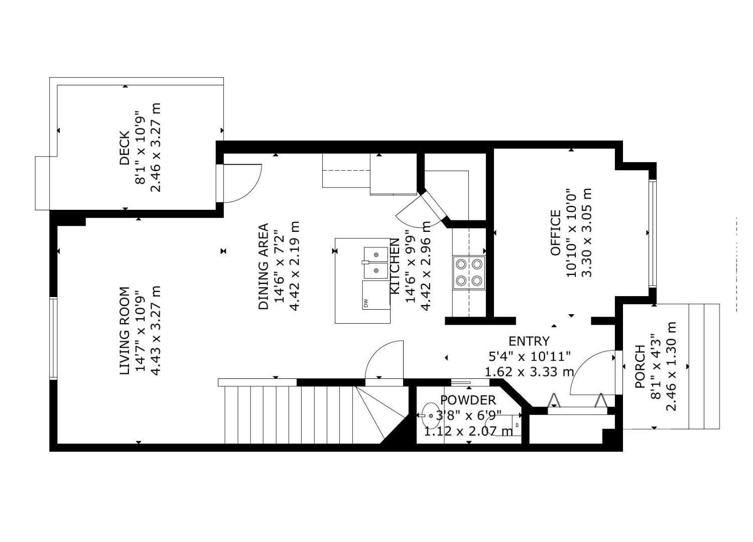
Charming 2-storey on a large pie-shaped lot in Carlton, steps to parks and Elizabeth Finch School. This 1,420 square foot (plus full, finished basement) home features central air conditioning and a great open floor plan. On the main level: front office with large window, 2-piece powder room, living room, dining area with deck access and gourmet kitchen with eat-up island, corner pantry and new appliances. Upstairs: 3 generous sized bedrooms including the owner’s suite with walk-in closet and cheater door to the main 4-piece bathroom. In the basement: a spacious family room, 3-piece bathroom and laundry room. Outside: huge fully-fenced yard with two-tiered deck & storage shed. Parking includes two stalls with back-alley access; plenty of space for a future detached garage. Located at the end of a dead-end street, minutes from shopping and the Anothony Henday. Must see! (33804531)

Open Houses

Feb 8
1-4 PM
Add to Calendar

Property Summary

Property Type
Single Family
Building Type
House
Storeys
2
Square Footage
1421 sqft
Neighbourhood Name
Carlton
Title
Freehold
Land Size
445.93 m2
Built in
2005
Parking Type
Stall, Rear
Time on REALTOR.ca
23 hours

Legal Description

Plan :- 0324817 Block :- 53 Lot :- 236

Building

Bathrooms
Total
3
Partial
1
Interior Features
Appliances Included
Alarm System, Dishwasher, Dryer, Microwave, Stove, Washer, Window Coverings, Refrigerator
Basement Type
Full (Finished)
Building Features
Features
Cul-de-sac, Lane, No Animal Home, No Smoking Home
Style
Detached
Structures
Deck, Dog Run - Fenced In
Heating & Cooling
Cooling
Central air conditioning
Heating Type
Forced air
Neighbourhood Features
Community Features
Public Swimming Pool
Amenities Nearby
Playground, Schools, Shopping
Parking
Parking Type
Stall, Rear
Total Parking Spaces
2

Measurements

Square Footage
1421 sqft

Rooms

MetricImperial
Main level
Living room
Dining room
Kitchen
Den
Basement
Family room
Laundry room
Upper Level
Primary Bedroom
Bedroom 2
Bedroom 3

Land

Lot Features
Fencing
Fence
Are you interested in touring this listing?
Request a showing

Similar Listings

Carson K. Beier