We use cookies and other technologies for functionality, security, and to provide you with a personalized experience on our online services. By continuing to use our online services, you agree to our Privacy Policy and Terms of Use. For information on how to adjust your privacy settings, visit our Cookie Policy.
Dismiss
Home ON Greater London Middlesex County London Lambeth
LOT 38 FALLINGBROOK ROAD
Directions Print
LOT 38 FALLINGBROOK ROAD $1,490,950
Next Open House
Feb
28
$1,490,950
Hide
Favourite

LOT 38 FALLINGBROOK ROAD
London South (South V), Ontario N6P1H5

MLS® Number: X12761266
4
Bedrooms
4
Bathrooms
2500 - 3000
Square Feet

Listing Description

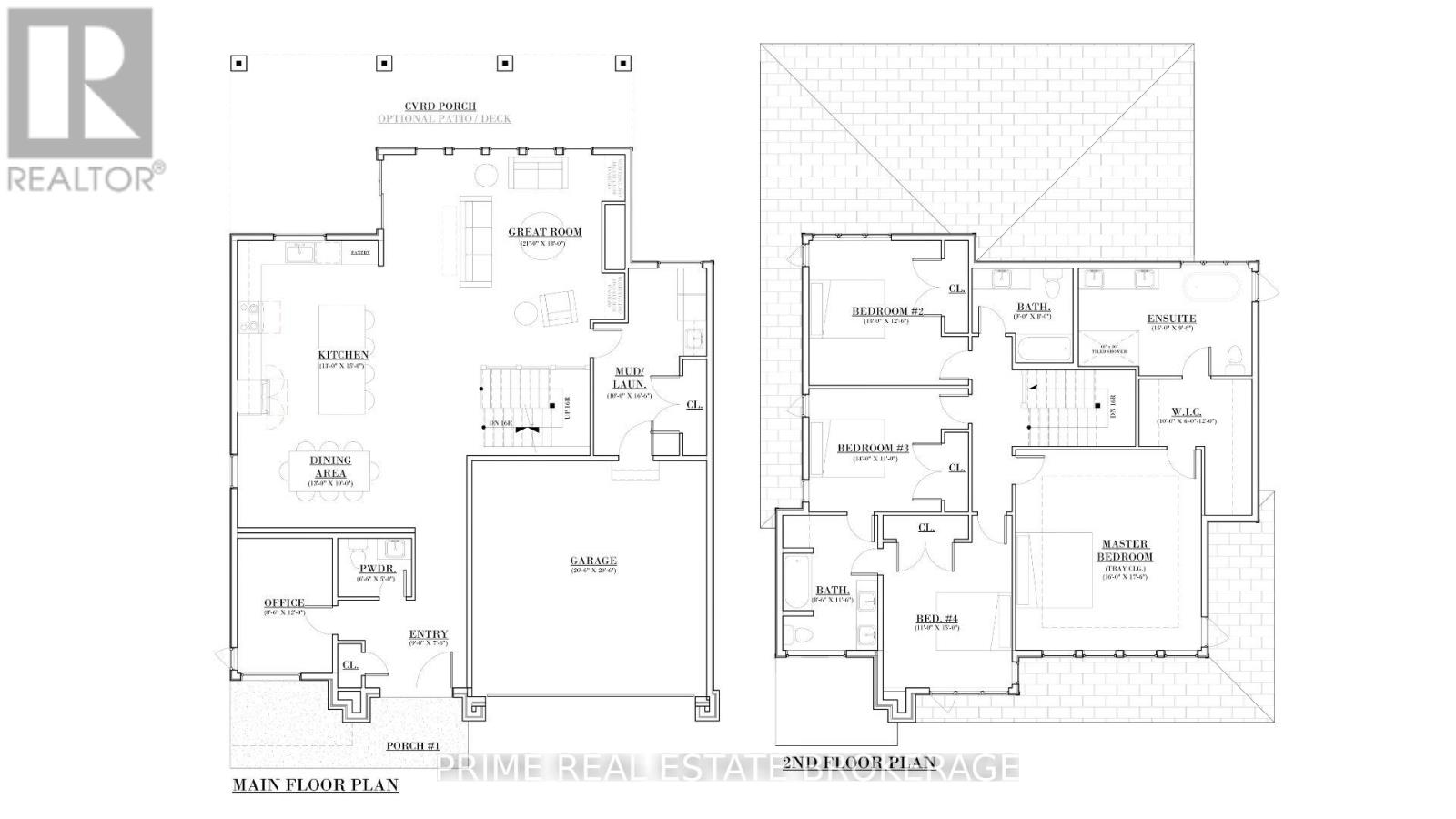
You're not just buying a home, you're designing the one you'll love coming home to every day. In Heathwoods, Lambeth, this to-be-built 4-bed, 3.5-bath residence by Halcyon Homes. Each model serves as an architectural starting point, offering you the creative freedom to fully customize the interior without being restricted to a fixed floor plan. From the flow of the main floor, to the mood of the lighting and the finishes underfoot. Wake to golden light in a quiet primary retreat, brew coffee in a chef-ready kitchen that opens to a sun-washed great room, and let evenings spill onto an oversized backyard. Experience 4232 Fallingbrook Road's extra deep lot of 50' x 152', backing onto mature trees for rare privacy. At Halcyon, you're never boxed into a blueprint or upsold into confusion. Their transparent design-build process puts your ideas ahead, and delivers quality, clarity, and peace of mind at every step. Stroll to Lambeth Village, where you'll find cafés and trails, with seamless access to the Hwy 401/402 when needed. Enjoy the suburban ease that has made London South one of the region's most desirable places to live. Pricing reflects the Arvada model in the Essential collection, with the Myra model shown featuring Lifestyle selections. Only a few opportunities remain in The Heathwoods. Explore plans, finishes, and timelines, and secure your custom new construction in Lambeth, Ontario, while it's still available. To experience the Halcyon standard, we invite you to walk through The Myra Model Home located at 4100 Fallingbrook Road for a taste of what your future home could be. (42089367)

Location Description

North on Colonel Talbot Rd, right on Heathwoods ave, right on Fallingbrook rd in London

Open Houses

Feb 28
1-3 PM
Add to Calendar

Property Summary

Property Type
Single Family
Building Type
House
Storeys
2
Square Footage
2500 - 3000 sqft
Community Name
South V
Title
Freehold
Land Size
50 x 152 FT
Age Of Building
New building
Annual Property Taxes
$0
Parking Type
Attached Garage, Garage
Time on REALTOR.ca
22 days

Building

Bedrooms
Above Grade
4
Bathrooms
Total
4
Partial
1
Interior Features
Appliances Included
Garage door opener remote(s), Water meter
Basement Type
Unfinished
Building Features
Features
Flat site
Foundation Type
Poured Concrete
Style
Detached
Building Amenities
Fireplace(s)
Heating & Cooling
Cooling
Central air conditioning, Air exchanger
Fireplace
1
Heating Type
Forced air (Electric)
Utilities
Utility Type
Cable (Installed), Electricity (Installed), Sewer (Installed)
Utility Sewer
Sanitary sewer
Water
Municipal water
Exterior Features
Exterior Finish
Brick, Aluminum siding
Neighbourhood Features
Amenities Nearby
Schools
Parking
Parking Type
Attached Garage, Garage
Total Parking Spaces
4

Measurements

Square Footage
2500 - 3000 sqft

Rooms

MetricImperial
Main level
Office
Dining room
Kitchen
Great room
Laundry room
Second level
Bathroom
Bathroom
Bathroom
Primary Bedroom
Bedroom 2
Bedroom 3
Bedroom 4

Land

Lot Features
Frontage
50 ft
Land Depth
152 ft
Other Property Information
Zoning Description
H, R1-4
Are you interested in touring this listing?
Request a showing

Similar Listings

JUSTIN KONIKOW