We use cookies and other technologies for functionality, security, and to provide you with a personalized experience on our online services. By continuing to use our online services, you agree to our Privacy Policy and Terms of Use. For information on how to adjust your privacy settings, visit our Cookie Policy.
Dismiss
Home AB Greater Calgary Calgary Midnapore
21 Midridge Green SE
Directions Print
21 Midridge Green SE $599,900
2 days ago
$599,900
Hide
Favourite

21 Midridge Green SE
Calgary, Alberta T2X1C9

MLS® Number: A2278195
2 + 1
Bedrooms
2
Bathrooms
1040
Square Feet

Listing Description

Tucked away on one of the quietest cul-de-sacs in the neighbourhood, this lovely Keith-built bungalow is the kind of home that just feels right. With 3 bedrooms, 2 bathrooms, a fully finished basement, and a detached double garage, there’s plenty of room to grow — and plenty of space for all the things you’re not quite ready to part with. The main floor living room was previously used as a bedroom and could easily be converted back, or make a perfect home office or den. The kitchen has been thoughtfully updated over the years with refinished oak cabinetry, quartz countertops, and stainless-steel appliances, while timeless hardwood floors add warmth and durability throughout the main level. Recent upgrades include new main-floor windows (2020), updated vinyl siding on both the house and garage, two beautifully renovated bathrooms (2023), and a hot water tank just two years old — meaning you can move in and relax, not renovate. The backyard is truly something special. It’s clear how much care and love has gone into creating this peaceful retreat, complete with mature perennials, archways, climbing vines, a huge deck, and a privacy screen. It’s easy to maintain and even easier to enjoy — especially as you soak up the west-facing sun and take in those beautiful sunsets. Located just steps from Fish Creek Park, Midnapore Lake, and neighbourhood schools, this gorgeous bungalow offers the perfect blend of quiet living and everyday convenience. Come experience this special Midnapore cul-de-sac for yourself. (31601227)

Property Summary

Property Type
Single Family
Building Type
House
Storeys
1
Square Footage
1040 sqft
Community Name
Midnapore
Subdivision Name
Midnapore
Title
Freehold
Land Size
381 m2|4,051 - 7,250 sqft
Built in
1978
Annual Property Taxes
$3,321
Parking Type
Detached Garage (2)
Time on REALTOR.ca
2 days

Building

Bedrooms
Above Grade
2
Below Grade
1
Bathrooms
Total
2
Partial
0
Interior Features
Appliances Included
Washer, Refrigerator, Range - Electric, Dishwasher, Dryer, Microwave
Flooring
Carpeted, Hardwood, Tile
Basement Type
Full (Finished)
Building Features
Features
Cul-de-sac, Back lane, Wet bar
Foundation Type
Poured Concrete
Style
Detached
Architecture Style
Bungalow
Heating & Cooling
Cooling
None
Fireplace
1
Heating Type
Forced air
Exterior Features
Exterior Finish
Brick
Neighbourhood Features
Community Features
Lake Privileges
Amenities Nearby
Park, Playground, Schools, Shopping, Water Nearby
Parking
Parking Type
Detached Garage (2)
Total Parking Spaces
2

Measurements

Square Footage
1040 sqft
Total Finished Area
1040 sqft

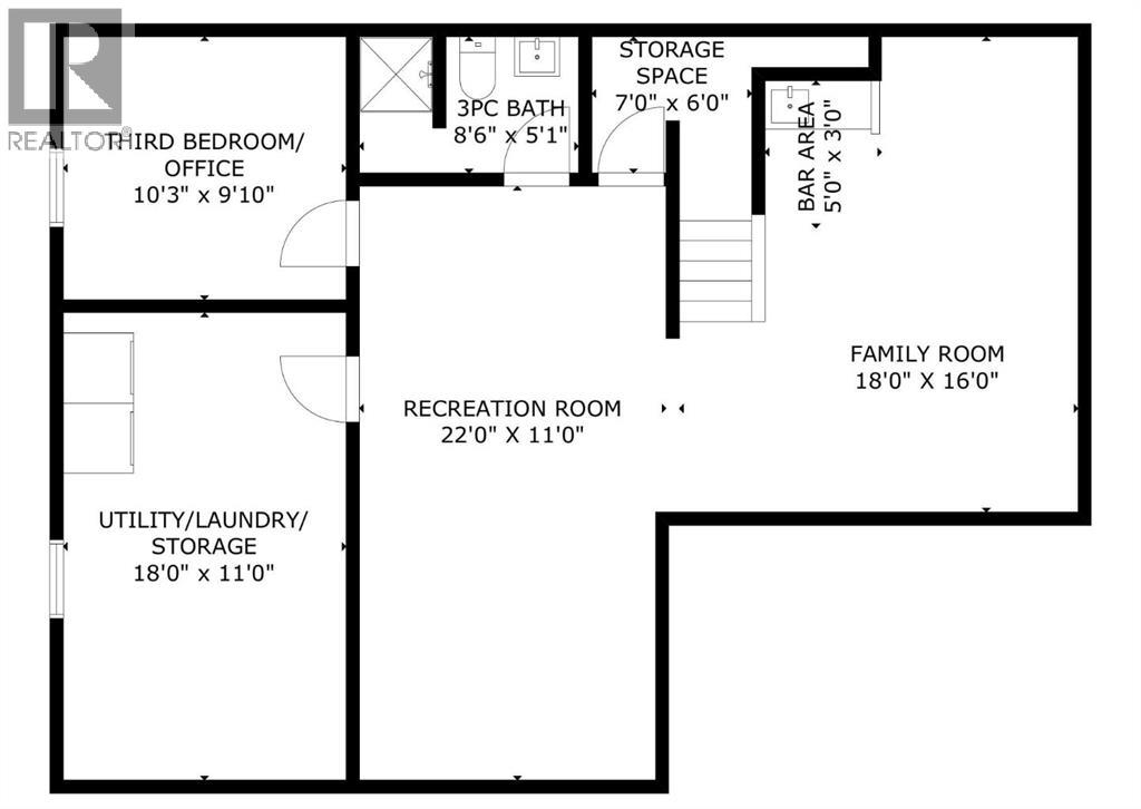
Rooms

MetricImperial
Main level
Primary Bedroom
Bedroom
3pc Bathroom
Living room
Basement
Bedroom
3pc Bathroom

Land

Lot Features
Fencing
Fence
Frontage
12.35 m
Land Depth
30.41 m
Landscape Features
Landscaped
Other Property Information
Zoning Description
R-CG
Data provided by: Pillar 9™
Are you interested in touring this listing?
Request a showing

Similar Listings

Greg Wiseman