We use cookies and other technologies for functionality, security, and to provide you with a personalized experience on our online services. By continuing to use our online services, you agree to our Privacy Policy and Terms of Use. For information on how to adjust your privacy settings, visit our Cookie Policy.
Dismiss
Home ON Bruce County South Bruce Peninsula
3 ORIOLE AVENUE
Directions Print
3 ORIOLE AVENUE $139,000
$139,000
Hide
Favourite

3 ORIOLE AVENUE
South Bruce Peninsula, Ontario N0H2T0

MLS® Number: X12742132
0
Bathrooms
-
Square Feet

Listing Description

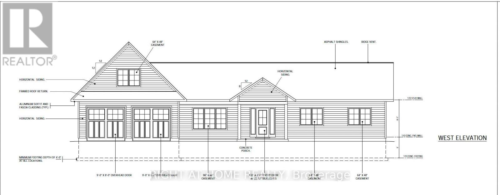
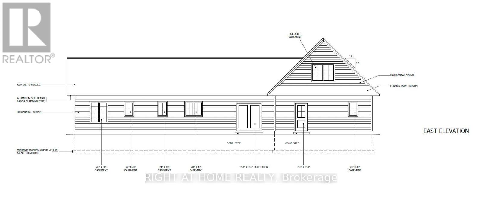
LARGE PREMIUM LOT 100' x 140' Ready To Build, located in the desirable community of Oliphant, just a short walk to the shores of Lake Huron. Rare Opportunity! Looking for the perfect place to build? - You have found it! Surrounded by mature trees, natural beauty, and established homes and cottages, this property offers the ideal setting for your future cottage or year-round residence. Huge Bonus: The property comes with approved drawings and a building permit for a thoughtfully designed 4-bedroom, 3-bathroom bungalow - saving you time, money, and months of planning. The seller has already invested significantly to have this completed. Zoned R3 and priced for a quick sale, this is an exceptional opportunity with unlimited potential. Conveniently located just a short drive to Sauble Beach and Wiarton. Don't miss your chance to secure one of the best-valued building lots in the area. Start building your dream today in this amazing and relaxing location. (42048068)

Location Description

Cross Streets: Bryant St / Spry Lake Rd. ** Directions: Take Bruce Road 13 to Oliphant then north on Bryant Street and left on Spry Lake Road to Oriole Ave.

Property Summary

Property Type
Vacant Land
Community Name
South Bruce Peninsula
Land Size
100 x 140 FT|under 1/2 acre
Annual Property Taxes
$365
Time on REALTOR.ca
28 days

Building

Bathrooms
Total
0
Utilities
Utility Type
Cable (Available)

Land

Lot Features
Frontage
100 ft
Land Depth
140 ft
Are you interested in touring this listing?
Request a showing

Similar Listings

OLEG SNIHUR