We use cookies and other technologies for functionality, security, and to provide you with a personalized experience on our online services. By continuing to use our online services, you agree to our Privacy Policy and Terms of Use. For information on how to adjust your privacy settings, visit our Cookie Policy.
Dismiss
Home BC Greater Victoria Capital Metchosin
4705 Barrow Rd
Directions Print
4705 Barrow Rd $1,295,000
3 hours ago
$1,295,000
Hide
Favourite

4705 Barrow Rd
Metchosin, British Columbia V9C4C6

MLS® Number: 1023528
4
Bedrooms
3
Bathrooms
2889
Square Feet

Listing Description

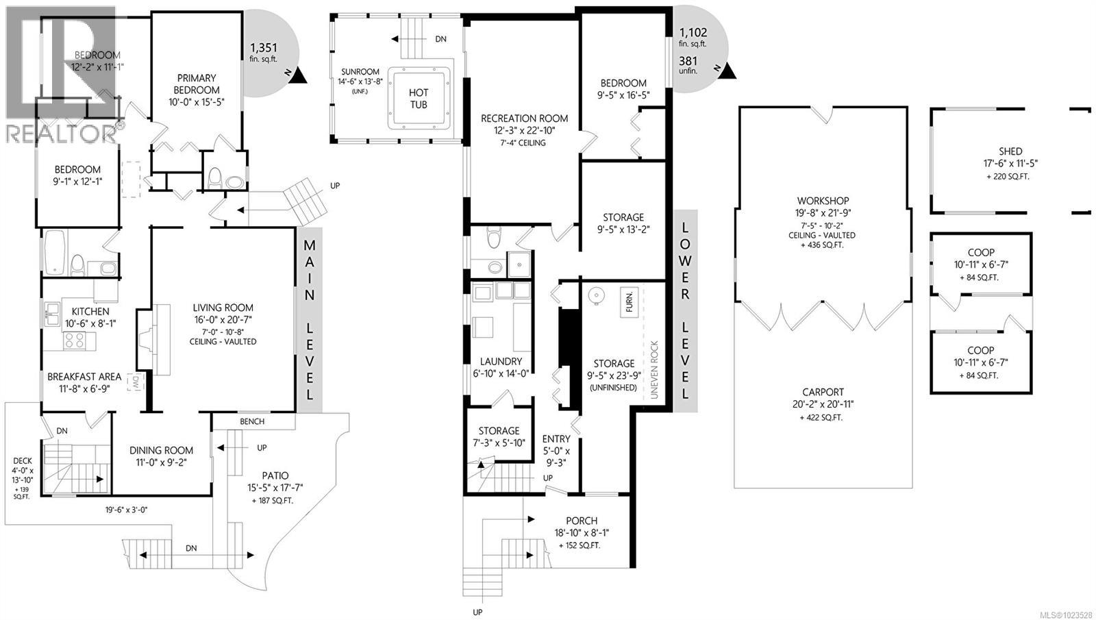
Come and discover this private Metchosin retreat, on over 2 acres of forested beauty with a seasonal stream and the timeless character of a Pan-Abode style home. With 4 bedrooms and 3 baths across approx. 2,400 sqft, this inviting family residence offers wood-clad walls, vaulted ceilings, and spaces that radiate warmth and charm. Gather in the glass-enclosed hot tub room, relax on the deck surrounded by nature, or explore the grounds and outbuildings including a powered workshop, chicken coop, shed, and firewood storage. Recent upgrades, including a heat pump, 200A electrical, and generator system bring modern comfort to this West Coast sanctuary. The property backs on to a 160 acre nature preserve, providing a feeling of endless greenery. Here, mornings start with birdsong, evenings end under starlight, and every day offers the chance to slow down and connect with what matters most. (30286481)

Property Summary

Property Type
Single Family
Building Type
House
Square Footage
2889 sqft
Neighbourhood Name
Kangaroo
Title
Freehold
Land Size
2.17 ac
Built in
1972
Annual Property Taxes
$3,977
Total Parking Spaces
3
Time on REALTOR.ca
3 hours

Price and Sale History

Date Status Price
Nov 30, 2016 Sale Closed $587,000

Building

Bathrooms
Total
3
Interior Features
Appliances Included
Dryer, Hot Tub, Oven - Electric, Refrigerator, Washer
Building Features
Features
Acreage, Private setting, Wooded area, Irregular lot size, Rocky, Sloping, Other
Architecture Style
Westcoast
Structures
Barn, Shed, Workshop
Heating & Cooling
Cooling
Air Conditioned, Central air conditioning, Fully air conditioned
Fireplace
1
Heating Type
Forced air, Heat Pump, (Wood)
Parking
Total Parking Spaces
3

Measurements

Square Footage
2889 sqft
Total Finished Area
2453 sqft

Rooms

MetricImperial
Main level
Eating area
Bedroom
Ensuite
Bedroom
Bathroom
Primary Bedroom
Kitchen
Dining room
Living room
Entrance
Lower level
Storage
Sunroom
Laundry room
Family room
Bedroom
Bathroom
Storage
Recreation room
Storage
Entrance
Other
Workshop

Land

Other Property Information
Zoning Description
RU - Rural
Zoning Type
Residential
Data provided by: Victoria Real Estate Board
Are you interested in touring this listing?
Request a showing

Similar Listings

Dirk VanderWal