We use cookies and other technologies for functionality, security, and to provide you with a personalized experience on our online services. By continuing to use our online services, you agree to our Privacy Policy and Terms of Use. For information on how to adjust your privacy settings, visit our Cookie Policy.
Dismiss
Home ON Ottawa - Gatineau United Counties of Prescott and Russell Clarence-Rockland
205 DANIKA STREET
Directions Print
More Photos + 2
205 DANIKA STREET $759,800
9 hours ago
$759,800
Hide
Favourite

205 DANIKA STREET
Clarence-Rockland, Ontario K0A2A0

MLS® Number: X12705200
2
Bedrooms
2
Bathrooms
1100 - 1500
Square Feet

Listing Description

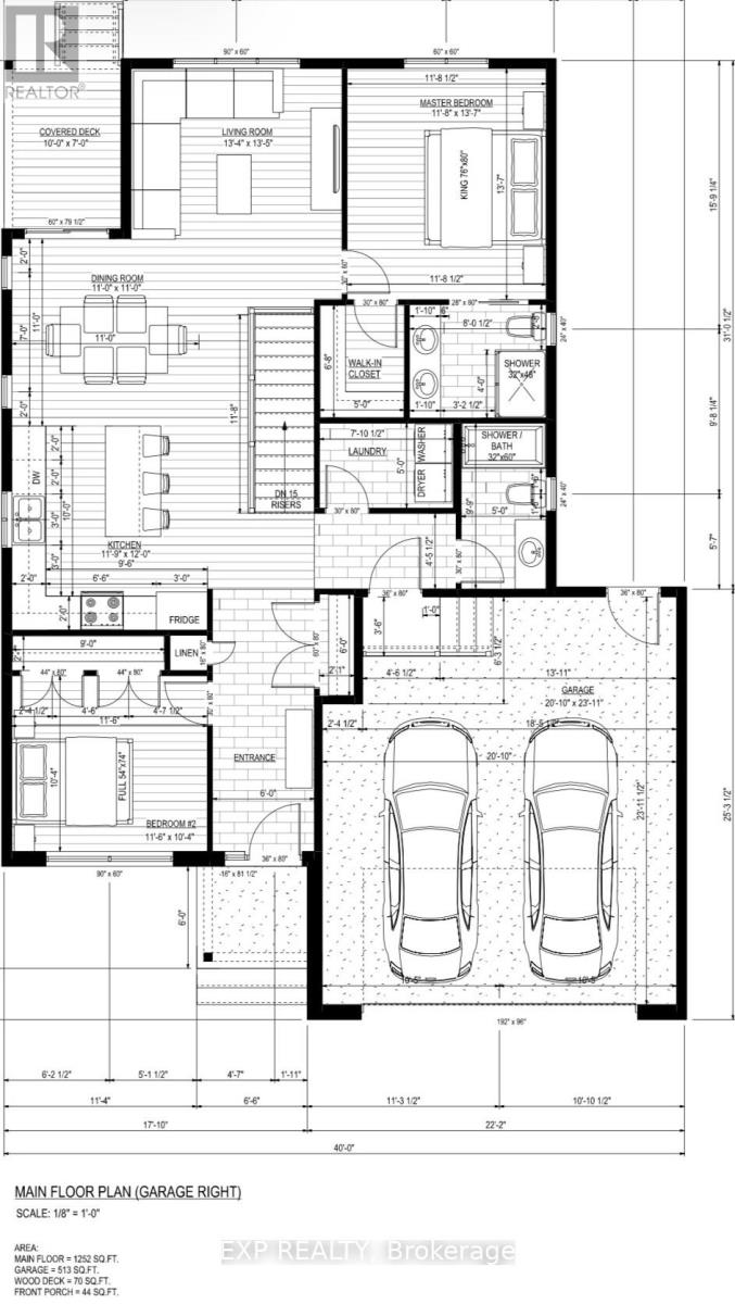
TO BE BUILT FOR LATE SUMMER/FALL 2026 OCCUPANCY - NEW BUILD BY FOSSIL HOMES! Welcome to the Pinot model by Fossil Homes - a well designed 2 bedroom, 2 bath bungalow located in Cheney, offering the perfect blend of comfort, space, and quality craftsmanship. Set in a quiet subdivision with municipal water and natural gas, this home provides privacy and a peaceful setting. Buyers will have the opportunity to personalize their finishes, including flooring, cabinetry, countertops and fixtures..making it truly your own. The main floor will offer approximately 1,252 sq. ft. of bright, open-concept living space (plus a covered rear deck!), featuring 9-foot ceilings, luxury vinyl and ceramic flooring and abundant natural light throughout the living, dining, and kitchen area. The spacious living room will provide direct access to a covered deck (10 ft. x 7 ft.), ideal for relaxing or entertaining. The custom kitchen will be thoughtfully designed with a breakfast bar island and ample cabinetry. The primary suite will feature a walk-in closet and private ensuite. A second generously sized bedroom, a full main bath and convenient main-floor laundry will complete the level. The unfinished basement to finish according to your needs, adding even more living space in the future. Additional highlights include a 2 car insulated garage (513 sq. ft.) and TARION warranty coverage! (41966623)

Location Description

Cross Streets: Drouin/Danika. ** Directions: Russell to Danika.

Property Summary

Property Type
Single Family
Building Type
House
Storeys
1
Square Footage
1100 - 1500 sqft
Community Name
607 - Clarence/Rockland Twp
Title
Freehold
Land Size
150 x 100 FT ; Yes
Annual Property Taxes
$0
Parking Type
Attached Garage, Garage, Inside Entry
Time on REALTOR.ca
9 hours

Building

Bedrooms
Above Grade
2
Bathrooms
Total
2
Interior Features
Appliances Included
Hood Fan
Basement Type
Full (Unfinished)
Building Features
Foundation Type
Concrete
Style
Detached
Architecture Style
Bungalow
Rental Equipment
Water Heater
Structures
Deck
Heating & Cooling
Cooling
None, Air exchanger
Heating Type
Forced air (Natural gas)
Utilities
Utility Type
Natural Gas Available (Available)
Utility Sewer
Septic System
Water
Municipal water
Neighbourhood Features
Amenities Nearby
Park
Parking
Parking Type
Attached Garage, Garage, Inside Entry
Total Parking Spaces
8

Measurements

Square Footage
1100 - 1500 sqft

Rooms

MetricImperial
Main level
Kitchen
Living room
Dining room
Primary Bedroom
Bathroom
Bedroom
Laundry room
Other

Land

Lot Features
Frontage
150 ft
Land Depth
100 ft
Other Property Information
Easements
Sub Division Covenants
Zoning Description
Residential
Data provided by: Ottawa Real Estate Board
Are you interested in touring this listing?
Request a showing

Similar Listings

J.F. Perras