We use cookies and other technologies for functionality, security, and to provide you with a personalized experience on our online services. By continuing to use our online services, you agree to our Privacy Policy and Terms of Use. For information on how to adjust your privacy settings, visit our Cookie Policy.
Dismiss
Home SK Greater Saskatoon Division No. 11 Saskatoon The Willows
170 Willows WAY
Directions Print
170 Willows WAY $2,165,000
10 hours ago
$2,165,000
Hide
Favourite

170 Willows WAY
Saskatoon, Saskatchewan S7T0B3

MLS® Number: SK026974
5
Bedrooms
4
Bathrooms
2709
Square Feet

Listing Description

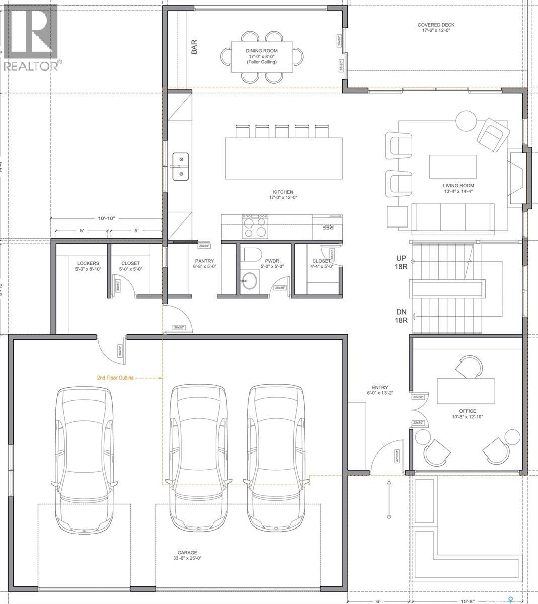
Please note that photos are renderings and this home is not built yet. This striking home is designed and built by award-winning homebuilder Lexis Homes and is located in the exciting new phase of Westhills at The Willows. The future homeowner will enjoy the tranquility of golf course living. Designed with wellness and lifestyle in mind, the community features upcoming revitalized clubhouse facilities, tennis courts, a scenic skating pond, and cross-country ski trails. A pool, splash pad, and Nordic spa are also proposed as part of this vibrant neighbourhood development. This 2,709 sq. ft. two-storey home includes a fully finished walkout basement and features 10-foot ceilings throughout the main floor. Large windows flood the home with natural light, a gas fireplace to provide warmth and comfort during Saskatchewan winters. The interior showcases impressive, thoughtfully curated design details, complemented by a modern exterior finished with low-maintenance stucco and stone accents. A $75,000 landscaping budget is included in the price. The primary suite offers an exceptionally large walk-in closet, creating a true retreat experience. The walkout basement is bright and welcoming, thanks to oversized windows that enhance both function and livability. A heated triple-car garage ensures year-round convenience, and the home is built for comfort and efficiency with R-28 wall insulation and insulation beneath the basement slab. As a Holmes Approved Homebuilder, every Lexis Homes project includes three detailed third-party inspections performed by Mike Holmes–approved inspectors which provides added confidence, quality assurance, and peace of mind. Don’t miss this incredible opportunity to own a premium home in a highly sought-after location! Alternate exterior options are available for this home. Lexis Homes offers (29287753)

Property Summary

Property Type
Single Family
Building Type
House
Storeys
2
Square Footage
2709 sqft
Neighbourhood Name
The Willows
Title
Freehold
Land Size
8760 sqft
Built in
2026
Parking Type
Attached Garage, Heated Garage, Parking Space(s) (6)
Time on REALTOR.ca
10 hours

Building

Bathrooms
Total
4
Interior Features
Appliances Included
Washer, Refrigerator, Dishwasher, Dryer, Oven - Built-In, Humidifier, Garage door opener remote(s), Hood Fan, Stove
Building Features
Features
Irregular lot size, Sump Pump
Architecture Style
2 Level
Structures
Deck
Heating & Cooling
Cooling
Central air conditioning, Air exchanger
Fireplace Type
Conventional (Gas)
Heating Type
(Natural gas)
Parking
Parking Type
Attached Garage, Heated Garage, Parking Space(s) (6)

Measurements

Square Footage
2709 sqft

Rooms

MetricImperial
Main level
Living room
Dining room
Kitchen
2pc Bathroom
Mud room
Office
Second level
Bonus Room
Bedroom
5pc Bathroom
Bedroom
Bedroom
4pc Bathroom
Laundry room
Basement
Bedroom
Bedroom
Living room
4pc Bathroom

Land

Lot Features
Fencing
Partially fenced
Frontage
68 ft
Are you interested in touring this listing?
Request a showing

Similar Listings

Timothy Koehn