We use cookies and other technologies for functionality, security, and to provide you with a personalized experience on our online services. By continuing to use our online services, you agree to our Privacy Policy and Terms of Use. For information on how to adjust your privacy settings, visit our Cookie Policy.
Dismiss
Home ON Greater Oshawa Durham Region Clarington Bowmanville
62 REDFERN CRESCENT
Directions Print
62 REDFERN CRESCENT $374,900
10 hours ago
$374,900
Hide
Favourite

62 REDFERN CRESCENT
Clarington (Bowmanville), Ontario L1C2M6

MLS® Number: E12704316
0
Bathrooms
-
Square Feet

Listing Description

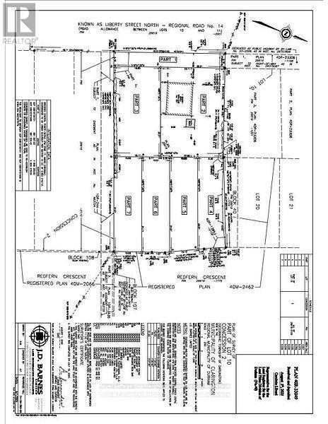
An incredible opportunity to own a vacant piece of land in a desirable location ready for your vision to come to life. Whether you're an investor, builder, or someone dreaming of creating a custom home, this lot offers endless possibilities. Surrounded by natural beauty and located in Bowmanville, it's the perfect canvas for your next project. Dont miss your chance to own this rare offering! (41964994)

Location Description

Liberty/Swindells

Property Summary

Property Type
Vacant Land
Community Name
Bowmanville
Land Size
33 x 111 FT|under 1/2 acre
Annual Property Taxes
$1,000
Time on REALTOR.ca
10 hours

Building

Bathrooms
Total
0
Utilities
Utility Type
Cable (Available), Electricity (Installed), Sewer (Installed)

Land

Lot Features
Frontage
33 ft
Land Depth
111 ft
Are you interested in touring this listing?
Request a showing

Similar Listings

BOB BEST