We use cookies and other technologies for functionality, security, and to provide you with a personalized experience on our online services. By continuing to use our online services, you agree to our Privacy Policy and Terms of Use. For information on how to adjust your privacy settings, visit our Cookie Policy.
Dismiss
Home ON Greater Barrie Barrie
54 EUGENIA STREET
Directions Print
54 EUGENIA STREET $4,200/Monthly
1 day ago
$4,200/Monthly
Hide
Favourite

54 EUGENIA STREET
Barrie (Codrington), Ontario L4M3T5

MLS® Number: S12700328
5
Bedrooms
3
Bathrooms
2000 - 2500
Square Feet

Listing Description

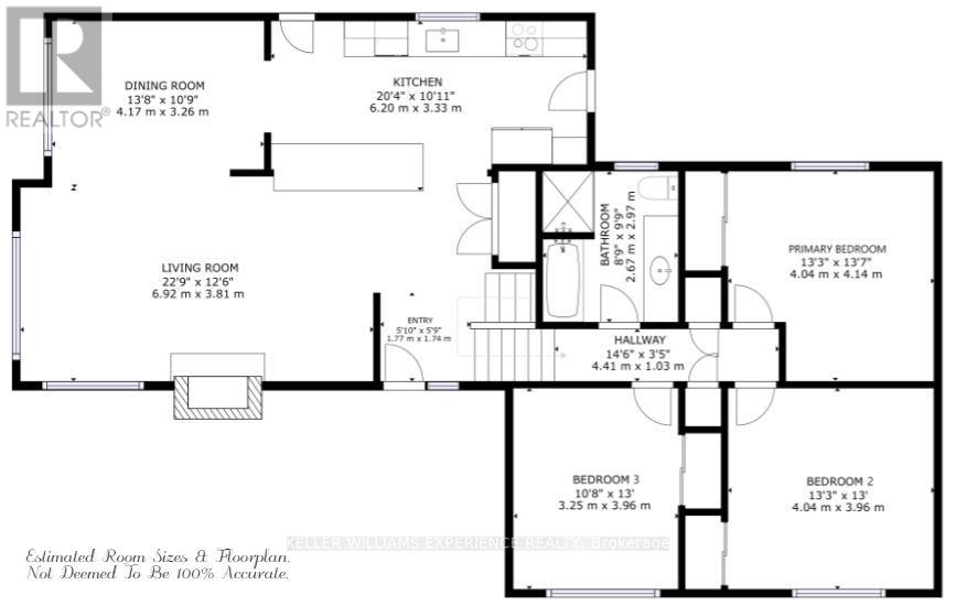
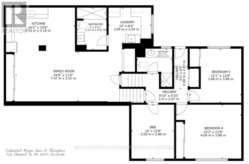
Located in the highly sought-after Codrington neighbourhood, this extensively renovated home has been transformed into a modern, functional, and beautifully designed home to meet today's lifestyle needs. The main floor offers a spacious, open-concept living, dining, and kitchen area with a bright, expansive flow. Southern-facing windows fill the space with natural light, while the chef-inspired kitchen features a large center island, quality finishes, and seamless connection to the living areas. Engineered hardwood flooring, upgraded fixtures, and lighting enhance the contemporary feel throughout. The second level offers three generously sized bedrooms with engineered hardwood floors, pot lights, large windows, and a stylish 4-piece bathroom. The third level adds two additional bedrooms, a den, and a full 3-piece bathroom-perfect for teens, guests, or a flexible work-from-home space. The fully finished fourth level provides even more functionality, featuring an additional family room, a second kitchen or wet bar area, a newly renovated 3-piece bathroom, storage, and a laundry room, creating excellent potential for in-law accommodation or extended-family living. Outside, the landscaped lot is equally impressive, offering irrigation, mature trees, perennials, a patio, and dedicated BBQ areas. The home is further enhanced by an oversized single garage with inside entry and a paved driveway for four vehicles. A convenient side-door entrance offers potential for a private in-law suite or professional home office. Upgrades include: furnace (2023), A/C (2024), windows and doors (2023), interior renovations (2023-2024), deck and railing (2024), and shingles (2017). Additionally, the seller has approved building plans and drawings for a detached double garage addition, adding further value and future potential. A rare opportunity to own a stylish and timeless property in one of the city's most desirable neighbourhoods. (41956245)

Location Description

Cross Streets: Dundonald. ** Directions: Codrington Street to Dundonald Street to Eugenia Street.

Property Summary

Property Type
Single Family
Building Type
House
Square Footage
2000 - 2500 sqft
Community Name
Codrington
Title
Freehold
Land Size
70 x 131.1 FT ; 70.16ft x130.99ft x 70 ft x 131.02 ft
Age Of Building
51 to 99 years
Parking Type
Attached Garage, Garage
Time on REALTOR.ca
1 day

Building

Bedrooms
Above Grade
5
Bathrooms
Total
3
Interior Features
Appliances Included
Garage door opener remote(s), Water meter, Water Heater, Water softener, Alarm System, Dishwasher, Dryer, Garage door opener, Microwave, Stove, Washer, Window Coverings, Refrigerator
Flooring
Hardwood, Vinyl, Tile
Basement Type
Finished
Building Features
Features
Wooded area, Irregular lot size, Dry, Carpet Free
Foundation Type
Block
Style
Detached
Split Level Style
Backsplit
Fire Protection
Alarm system, Smoke Detectors
Building Amenities
Fireplace(s)
Structures
Deck, Patio(s)
Heating & Cooling
Cooling
Central air conditioning
Fireplace
1
Heating Type
Forced air (Natural gas)
Utilities
Utility Type
Cable (Installed), Electricity (Installed), Sewer (Installed)
Utility Sewer
Sanitary sewer
Water
Municipal water
Exterior Features
Exterior Finish
Brick, Vinyl siding
Neighbourhood Features
Amenities Nearby
Schools, Park, Marina
Parking
Parking Type
Attached Garage, Garage
Total Parking Spaces
5

Measurements

Square Footage
2000 - 2500 sqft

Rooms

MetricImperial
Main level
Kitchen
Dining room
Living room
Second level
Bathroom
Primary Bedroom
Bedroom 2
Bedroom 3
Third level
Den
Bathroom
Bedroom 4
Bedroom 5
Lower level
Kitchen

Land

Lot Features
Frontage
70 ft
Land Depth
131 ft ,1 in
Landscape Features
Landscaped, Lawn sprinkler
Waterfront Features
Surface Water
Lake/Pond
Are you interested in touring this listing?
Request a showing

Similar Listings

SUZANNE PICARD