We use cookies and other technologies for functionality, security, and to provide you with a personalized experience on our online services. By continuing to use our online services, you agree to our Privacy Policy and Terms of Use. For information on how to adjust your privacy settings, visit our Cookie Policy.
Dismiss
Home SK Greater Regina Division No. 6 Lumsden No. 189
55 Country ROAD
Directions Print
55 Country ROAD $758,900
$758,900
Hide
Favourite

55 Country ROAD
Lumsden, Saskatchewan S0G3C0

MLS® Number: SK026887
3
Bedrooms
3
Bathrooms
1927
Square Feet

Listing Description

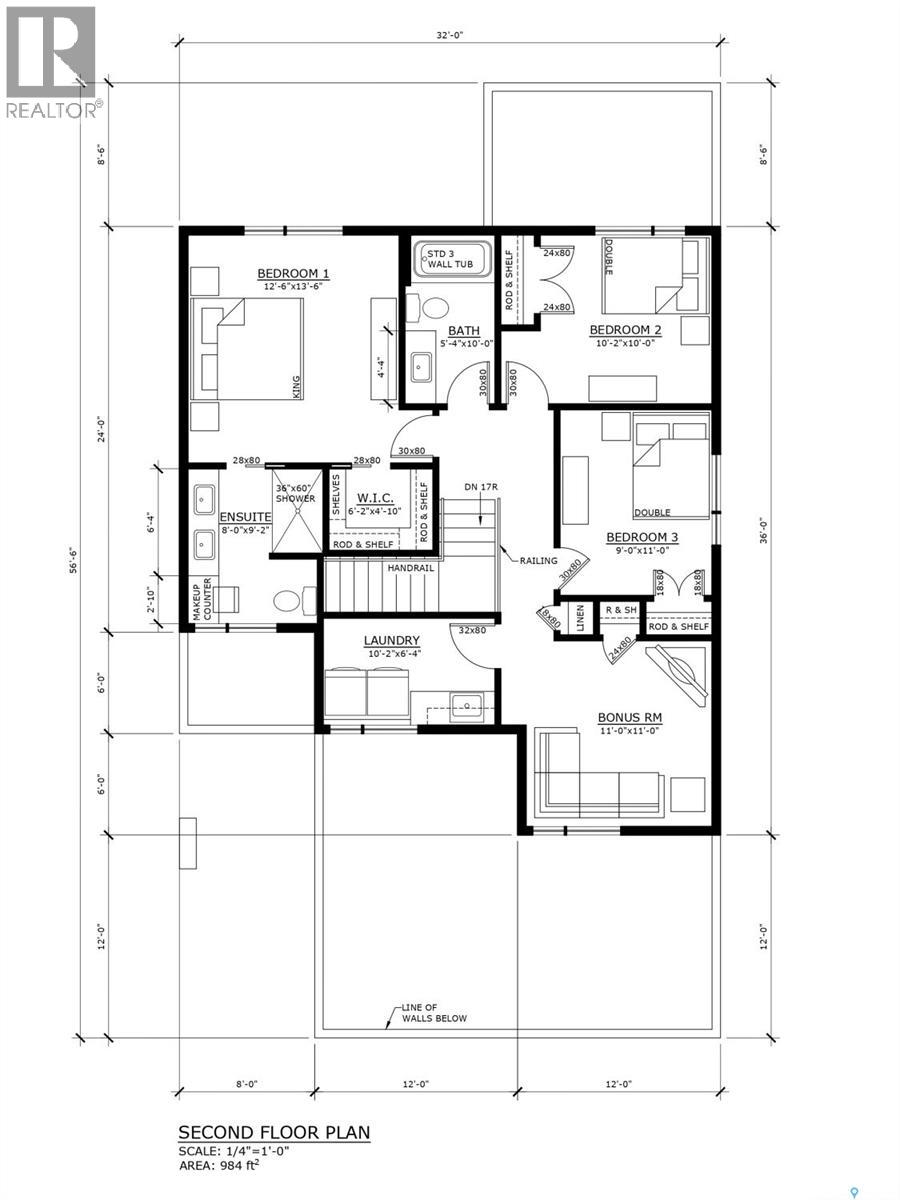
Welcome to 55 Country Road, Lumsden, an exceptional under-construction 2-storey home by Prostruct Developments, offering a perfect blend of modern design, functional family living, and small-town charm—just 20 minutes from Regina. Set on a generous 7,840 sq. ft. lot, this thoughtfully designed home provides 1,927 sq. ft. above grade, plus a full unfinished basement ready for future development. The main floor is bright and open, featuring vinyl plank flooring throughout, a spacious living room with a striking electric fireplace, and a well-appointed kitchen designed for everyday living and entertaining. Highlights include a large island with seating, walk-in pantry, modern cabinetry, and a seamless flow to the dining area. A convenient 2-piece bath, welcoming foyer, and practical mudroom with direct access to the 24’ x 24’ double attached garage complete the main level. Upstairs, the layout is ideal for families, offering three bedrooms, a bonus room, and second-floor laundry. The primary suite is a true retreat with a walk-in closet and 4-piece ensuite, while the additional bedrooms are serviced by a full main bath. Quality finishes, smart layouts, and contemporary styling continue throughout. Additional features include central air conditioning, double concrete driveway, and modern exterior finishes. Construction is underway, providing buyers the opportunity to secure a brand-new home in one of Saskatchewan’s most sought-after communities. Lumsden is a welcoming, family-oriented community nestled in the beautiful Qu’Appelle Valley, known for its scenic views, excellent schools, recreation facilities, and strong sense of community. Residents enjoy local shops, restaurants, walking trails, and year-round outdoor activities—all while remaining conveniently close to Regina for work, shopping, and major amenities. This is small-town living without sacrificing city access. Note: Images are renderings and subject to change. Final finishes and specifications may vary. (29282198)

Property Summary

Property Type
Single Family
Building Type
House
Storeys
2
Square Footage
1927 sqft
Title
Freehold
Land Size
7840 sqft
Built in
2025
Parking Type
Attached Garage, Parking Space(s) (4)
Time on REALTOR.ca
44 days

Building

Bathrooms
Total
3
Interior Features
Appliances Included
Hood Fan
Basement Type
Full (Unfinished)
Building Features
Features
Double width or more driveway
Architecture Style
2 Level
Heating & Cooling
Cooling
Central air conditioning
Fireplace Type
Conventional (Electric)
Heating Type
Forced air, (Natural gas)
Parking
Parking Type
Attached Garage, Parking Space(s) (4)

Measurements

Square Footage
1927 sqft

Rooms

MetricImperial
Main level
Living room
Dining room
Kitchen
2pc Bathroom
Mud room
Foyer
Second level
Bedroom
Bedroom
Primary Bedroom
Laundry room
4pc Ensuite bath
4pc Bathroom
Bonus Room

Land

Lot Features
Landscape Features
Lawn
Are you interested in touring this listing?
Request a showing

Similar Listings

Aideen Zareh