We use cookies and other technologies for functionality, security, and to provide you with a personalized experience on our online services. By continuing to use our online services, you agree to our Privacy Policy and Terms of Use. For information on how to adjust your privacy settings, visit our Cookie Policy.
Dismiss
Home MB Division No. 3 Altona
11 217 Lynnwood Bay
Directions Print
11 217 Lynnwood Bay $234,900
$234,900
Hide
Favourite

11 217 Lynnwood Bay
Altona, Manitoba R0G0B1

MLS® Number: 202600842
3
Bedrooms
2
Bathrooms
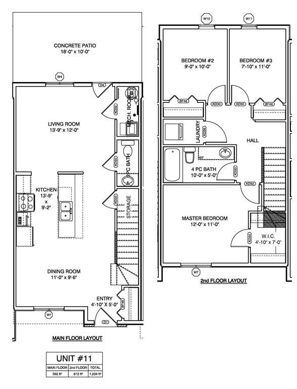
1204
Square Feet

Listing Description

R35//Altona/NOW PRESELLING THE FINAL PHASE OF LYNNWOOD CONDOS! Each townhouse style condo features 3 bedrooms, 1.5 bathrooms, and 2 parking spots, along with unique exterior designs and colors. Located close to the park, arena, curling club, skatepark, swimming pool, 2 schools, and the ballpark, there s something for the whole family to enjoy. Each unit has been prepped for additional features such as floor heat, and a central vacuum system. Act fast to select your own custom finishes and make this your own. Anticipated possession is end of May/beginning of June 2026. Call your Realtor for more details! (231855536)

Property Summary

Property Type
Single Family
Building Type
House
Storeys
2
Square Footage
1204 sqft
Community Name
R35
Neighbourhood Name
R35
Title
Freehold Condo
Land Size
18 x 106
Built in
2026
Annual Property Taxes
$0
Parking Type
Other
Time on REALTOR.ca
23 days

Building

Bathrooms
Total
2
Partial
1
Interior Features
Flooring
Wall-to-wall carpet, Vinyl
Building Features
Features
Low maintenance yard, Exterior Walls- 2x6"
Structures
Patio(s)
Heating & Cooling
Cooling
Central air conditioning
Heating Type
Heat Recovery Ventilation (HRV), Forced air (Electric)
Utilities
Utility Sewer
Municipal sewage system
Water
Municipal water
Neighbourhood Features
Amenities Nearby
Playground
Maintenance or Condo Information
Maintenance Fees
$145 Monthly
Maintenance Fees Include
Reserve Fund Contributions, Common Area Maintenance, Insurance, Landscaping, Property Management
Maintenance Management Company
John Falk 204-362-0167
Parking
Parking Type
Other

Measurements

Square Footage
1204 sqft

Rooms

MetricImperial
Main level
Living room
Dining room
Kitchen
Upper Level
Primary Bedroom
Bedroom
Bedroom

Land

Lot Features
Frontage
18 ft
Land Depth
106 ft
Road Type
Paved road
Are you interested in touring this listing?
Request a showing

Similar Listings

Abe Wiebe