We use cookies and other technologies for functionality, security, and to provide you with a personalized experience on our online services. By continuing to use our online services, you agree to our Privacy Policy and Terms of Use. For information on how to adjust your privacy settings, visit our Cookie Policy.
Dismiss
Home BC East Kootenay Fernie
32 Aspen Crescent
Directions Print
32 Aspen Crescent $1,495,000
$1,495,000
Hide
Favourite

32 Aspen Crescent
Fernie, British Columbia V0B1M5

MLS® Number: 10372714
6
Bedrooms
3
Bathrooms
2934
Square Feet

Listing Description

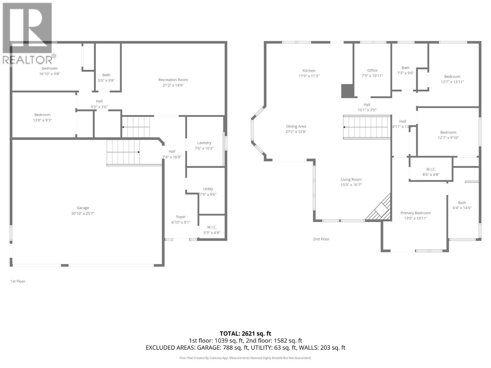
Tucked into a quiet corner of Parkland Terrace, this home offers space, privacy, and comfort designed for real family and mountain living. Built in 2012 on a large, private lot, the home balances thoughtful layout with everyday functionality. A heated triple garage with high ceilings and oversized doors provides excellent storage for vehicles and outdoor gear. Inside, the home offers great separation of space while still feeling open and connected. The upper level is bright and inviting with vaulted ceilings, wood burning fireplace and large windows with incredible views. A spacious kitchen anchors the open-concept living and dining areas with access to large front deck and back garden, ideal for daily living and entertaining. Three bedrooms plus a private primary suite are positioned away from the main living space. The primary bedroom features a walk-in closet, spa-style ensuite with stand-alone tub and walk-in shower, and direct patio access. The lower level includes high ceilings, in-floor heating, soundproofing between levels, a large boot room, family room, laundry, and two additional bedrooms—perfect for guests, teens, or extended family. Outside, enjoy a large partially covered deck off the front, hot tub, fire pit, and established gardens in a fully landscaped, private yard. With six bedrooms, three bathrooms, ample storage, and quality construction throughout, this is a rare opportunity in Fernie (39625293)

Property Summary

Property Type
Single Family
Building Type
House
Storeys
2
Square Footage
2934 sqft
Neighbourhood Name
Fernie
Title
Freehold
Land Size
0.22 ac|under 1 acre
Built in
2012
Annual Property Taxes
$7,425
Parking Type
Attached Garage (3)
Time on REALTOR.ca
23 days

Building

Bathrooms
Total
3
Partial
0
Interior Features
Appliances Included
Refrigerator, Dishwasher, Dryer, Range - Gas, Humidifier, Hot Water Instant, Microwave, Hood Fan, Washer, Oven - Built-In
Flooring
Carpeted, Laminate, Tile
Building Features
Features
Central island, Balcony
Style
Detached
Heating & Cooling
Fireplace
1
Fireplace Type
Conventional (Wood)
Heating Type
Forced air, Hot Water
Utilities
Utility Sewer
Municipal sewage system
Water
Municipal water
Exterior Features
Roof Style
Asphalt shingle
Exterior Finish
Stone
Parking
Parking Type
Attached Garage (3)
Total Parking Spaces
3

Measurements

Square Footage
2934 sqft

Rooms

MetricImperial
Main level
Mud room
Foyer
Laundry room
Family room
4pc Bathroom
Bedroom
Bedroom
Second level
4pc Bathroom
Bedroom
Bedroom
Bedroom
5pc Ensuite bath
Primary Bedroom
Dining room
Living room
Kitchen
Are you interested in touring this listing?
Request a showing

Similar Listings

Loralee Thomas