We use cookies and other technologies for functionality, security, and to provide you with a personalized experience on our online services. By continuing to use our online services, you agree to our Privacy Policy and Terms of Use. For information on how to adjust your privacy settings, visit our Cookie Policy.
Dismiss
Home ON Greater Toronto Area Milton Coates
920 SPRAGUE PLACE
Directions Print
920 SPRAGUE PLACE $748,800
2 days ago
Next Open House
Jan
17
$748,800
Hide
Favourite

920 SPRAGUE PLACE
Milton (CO Coates), Ontario L9T0K7

MLS® Number: W12694642
2
Bedrooms
3
Bathrooms
1100 - 1500
Square Feet

Listing Description

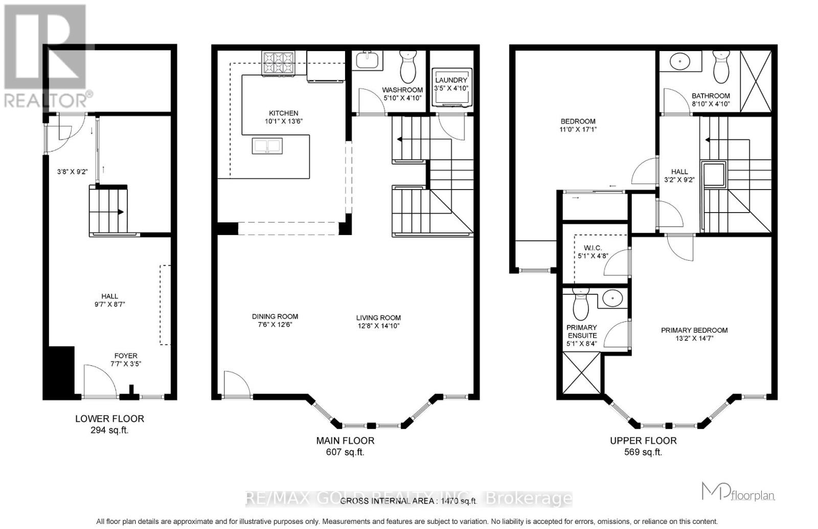
Welcome to this well-kept Freehold three-storey townhouse in a family-friendly area of Milton. The home was freshly painted in 2026 and offers two bedrooms and three bathrooms, including two full bathrooms on the bedroom level, which is a great layout for everyday living. The main and second floors feature new pot lights added in 2026,giving the home a bright and clean feel. The kitchen includes stainless steel appliances, quartz countertops, a modern backsplash, and a breakfast bar. The living and dining areas are open and spacious, with a walkout to a private patio that includes a gas line for a BBQ. Upstairs, the primary bedroom offers a walk-in closet and a three-piece ensuite bathroom. The second bedroom is generously sized and located next to a four-piece bathroom, making it ideal for family members, guests, or a home office. Additional features include a 200-amp panel with EV-ready charging plug already installed. The home is close to parks, schools, shopping, and everyday amenities, and is only about seven minutes to the GO Station, making commuting easy. This is a great opportunity for first-time homebuyers looking for a move-in-ready home to start their next chapter. (41944025)

Location Description

Thompson & Louis Saint Laurent

Open Houses

Jan 17
2-4 PM
Add to Calendar

Property Summary

Property Type
Single Family
Building Type
Row / Townhouse
Storeys
3
Square Footage
1100 - 1500 sqft
Community Name
1028 - CO Coates
Title
Freehold
Land Size
21 x 44.3 FT
Annual Property Taxes
$3,164
Parking Type
Attached Garage, Garage
Time on REALTOR.ca
2 days

Building

Bedrooms
Above Grade
2
Bathrooms
Total
3
Partial
1
Interior Features
Appliances Included
Dishwasher, Dryer, Stove, Washer, Refrigerator
Flooring
Tile, Hardwood, Carpeted
Basement Type
None
Building Features
Foundation Type
Concrete
Style
Attached
Rental Equipment
Water Heater
Heating & Cooling
Cooling
Central air conditioning
Heating Type
Forced air (Natural gas)
Utilities
Utility Sewer
Sanitary sewer
Water
Municipal water
Exterior Features
Exterior Finish
Brick
Neighbourhood Features
Amenities Nearby
Public Transit, Park, Schools
Parking
Parking Type
Attached Garage, Garage
Total Parking Spaces
2

Measurements

Square Footage
1100 - 1500 sqft

Rooms

MetricImperial
Main level
Foyer
Office
Second level
Kitchen
Dining room
Living room
Third level
Primary Bedroom
Bedroom 2

Land

Lot Features
Frontage
21 ft
Land Depth
44 ft ,3 in
Are you interested in touring this listing?
Request a showing

Similar Listings

HANI AL OLABI