We use cookies and other technologies for functionality, security, and to provide you with a personalized experience on our online services. By continuing to use our online services, you agree to our Privacy Policy and Terms of Use. For information on how to adjust your privacy settings, visit our Cookie Policy.
Dismiss
Home ON Kitchener - Cambridge - Waterloo Waterloo Region Kitchener Brigadoon
6 - 2139 STRASBURG ROAD
Directions Print
More Photos + 2
6 - 2139 STRASBURG ROAD $525,990
$525,990
Hide
Favourite

6 - 2139 STRASBURG ROAD
Kitchener, Ontario N2L0C7

MLS® Number: X12693810
2
Bedrooms
3
Bathrooms
1000 - 1199
Square Feet

Listing Description

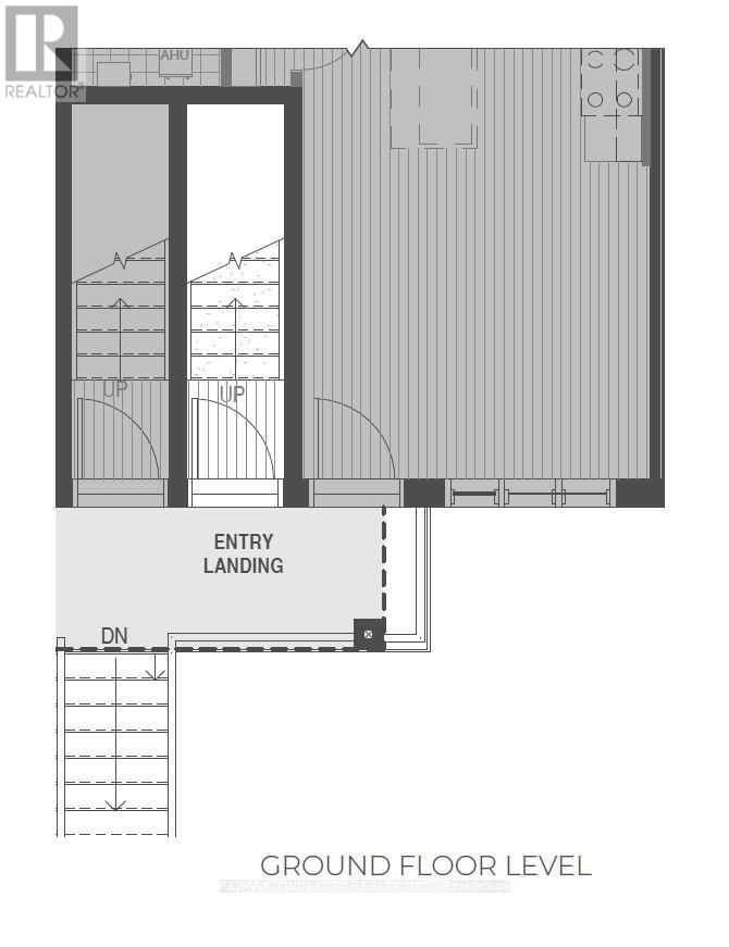
New price - LIMITED TIME EXCLUSIVE PRICING - Now $50,000 off the original builder's price. This limited-time pre-construction offer (available until February 20, 2026) includes FREE ASSIGNMENT/NO OCCUPANCY FEE/6 APPLIANCES /ZERO DEVELOPMENT LEVY/NO TARION ENROLLMENT FEE. Expected occupancy closing for the complex is between late 2026 and late 2027, making this an excellent opportunity for first-time home buyers and investors looking to enter the market or expand their portfolio. This brand-new stacked NET ZERO READY condominium community located in a highly desirable area , offers LOW condo fees and outstanding convenience. The Carlyle B is 2 floor layout with a large main level offering an open concept layout with a powder room, living room with balcony access and L shaped kitchen. Second floor offers a large primary suite with ensuite bath and second balcony, additional bedroom, laundry room and main 4pc bath. HEAT PUMP AND FREE APPLIANCES. Enjoy easy access to Highway 401, walking distance to schools, and proximity to Conestoga College, shopping, dining, and the new RBJ Schlegel Park and sports complex. Surrounded by Brigadoon Woods, the community offers surface parking and transit stops right outside the complex. Sales office located at 35 Trillium Dr Unit 1, Kitchener and open SAT/ SUND 1-4 . (41942345)

Location Description

Cross Streets: HURON RD. ** Directions: Huron Rd to Strasburg Rd.

Property Summary

Property Type
Single Family
Building Type
Apartment
Square Footage
1000 - 1199 sqft
Title
Condominium/Strata
Age Of Building
New building
Annual Property Taxes
$0
Parking Type
No Garage
Time on REALTOR.ca
24 days

Building

Bedrooms
Above Grade
2
Bathrooms
Total
3
Partial
1
Interior Features
Basement Type
None
Building Features
Features
Balcony, In suite Laundry
Heating & Cooling
Cooling
Central air conditioning
Heating Type
Heat Pump (Electric), Forced air (Electric)
Exterior Features
Exterior Finish
Brick, Vinyl siding
Neighbourhood Features
Community Features
Pets Allowed With Restrictions
Maintenance or Condo Information
Maintenance Fees
$166.51 Monthly
Maintenance Management Company
TBD
Parking
Parking Type
No Garage
Total Parking Spaces
1

Measurements

Square Footage
1000 - 1199 sqft

Rooms

MetricImperial
Second level
Kitchen
Living room
Third level
Primary Bedroom
Bedroom
Are you interested in touring this listing?
Request a showing

Similar Listings

Mark Kinnee