We use cookies and other technologies for functionality, security, and to provide you with a personalized experience on our online services. By continuing to use our online services, you agree to our Privacy Policy and Terms of Use. For information on how to adjust your privacy settings, visit our Cookie Policy.
Dismiss
Home ON Kitchener - Cambridge - Waterloo Waterloo Region Kitchener Brigadoon
2139 STRASBURG Road Unit# 8
Directions Print
2139 STRASBURG Road Unit# 8 $509,990
$509,990
Hide
Favourite

2139 STRASBURG Road Unit# 8
Kitchener, Ontario N2L0C7

MLS® Number: 40795820
3
Bedrooms
2
Bathrooms
952
Square Feet

Listing Description

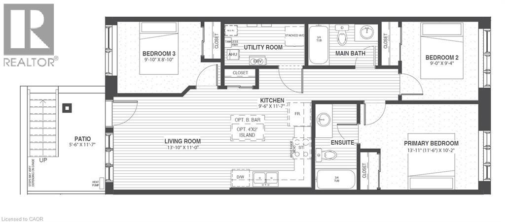
New price - LIMITED TIME EXCLUSIVE PRICING - Now $50,000 off the original builder’s price. This limited-time pre-construction offer (available until February 20, 2026) includes FREE ASSIGNMENT /NO OCCUPANCY FEE/ 6 APPLIANCES /ZERO DEVELOPMENT LEVY/NO TARION ENROLLMENT FEE. Expected occupancy closing for the complex is between late 2026 and late 2027, making this an excellent opportunity for first-time home buyers and investors looking to enter the market or expand their portfolio. This brand-new stacked NET ZERO READY condominium community located in a highly desirable area , offers LOW condo fees and outstanding convenience. The Hearthwood is a spacious 3 bedroom, 2 FULL bath unit with a large living room offering patio access and open to the kitchen. A large primary suite with ensuite bath, 2 additional bedrooms/office space, laundry room and main 4pc bath. HEAT PUMP and FREE appliances . Enjoy easy access to Highway 401, walking distance to schools, and proximity to Conestoga College, shopping, dining, and the new RBJ Schlegel Park and sports complex. Surrounded by Brigadoon Woods, the community offers surface parking and transit stops right outside the complex. Sales office located at 35 Trillium Dr Unit 1, Kitchener and open SAT/ SUND 1-4. (70044113)

Location Description

Huron Road to Strasburg Road

Property Summary

Property Type
Single Family
Building Type
Row / Townhouse
Square Footage
952 sqft
Subdivision Name
333 - Laurentian Hills/Country Hills W
Title
Condominium
Land Size
Unknown
Built in
2026
Annual Property Taxes
$0
Parking Type
Open
Time on REALTOR.ca
25 days

Building

Bedrooms
Below Grade
3
Bathrooms
Total
2
Interior Features
Appliances Included
Dishwasher, Dryer, Refrigerator, Stove, Washer, Microwave Built-in
Basement Type
None
Building Features
Features
Balcony
Foundation Type
Poured Concrete
Style
Attached
Total Units
0
Heating & Cooling
Cooling
Central air conditioning
Heating Type
Forced air, Heat Pump
Utilities
Utility Sewer
Municipal sewage system
Water
Municipal water
Exterior Features
Exterior Finish
Aluminum siding, Brick, Vinyl siding
Neighbourhood Features
Community Features
School Bus
Amenities Nearby
Public Transit, Schools
Maintenance or Condo Information
Maintenance Fees
$150.39 Monthly
Maintenance Fees Include
Insurance, Landscaping, Property Management
Parking
Parking Type
Open
Total Parking Spaces
1

Measurements

Square Footage
952 sqft
Above Grade Finished
952 sqft
Source: Builder

Rooms

MetricImperial
Lower level
4pc Bathroom
Full bathroom
Bedroom
Bedroom
Primary Bedroom
Living room
Kitchen

Land

Other Property Information
Access
Highway Nearby
Zoning Description
RES-6
Are you interested in touring this listing?
Request a showing

Similar Listings

LIDIA MIU