We use cookies and other technologies for functionality, security, and to provide you with a personalized experience on our online services. By continuing to use our online services, you agree to our Privacy Policy and Terms of Use. For information on how to adjust your privacy settings, visit our Cookie Policy.
Dismiss
Home BC Metro Vancouver Greater Vancouver City of North Vancouver Lonsdale Central Lonsdale
PH7 1288 CHESTERFIELD AVENUE
Directions Print
PH7 1288 CHESTERFIELD AVENUE $730,000
Next Open House
Feb
8
$730,000
Hide
Favourite

PH7 1288 CHESTERFIELD AVENUE
North Vancouver, British Columbia V7M0B1

MLS® Number: R3078555
1
Bedrooms
2
Bathrooms
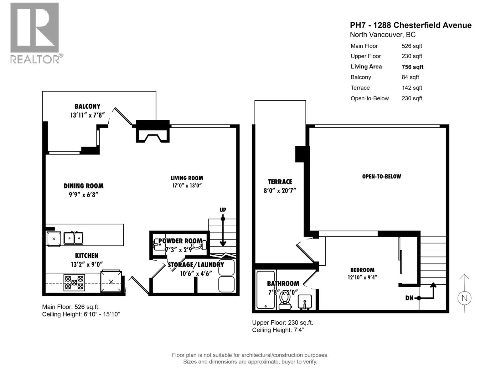
756
Square Feet

Listing Description

Elevated penthouse loft living at Alina, a concrete boutique building in the heart of vibrant Lonsdale. This top-floor 1 bed, 1.5 bath home offers soaring ceilings and is flooded with natural light. The open yet functional layout includes a dedicated dining space, in-suite laundry and generous storage. Enjoy year-round comfort with air conditioning, a cozy gas fireplace, complete with mountain and partial water views, and the rare luxury of two private outdoor spaces. Parking and a storage locker are included. Steps to Whole Foods, acclaimed restaurants, shops, cafes and excellent transit. A standout penthouse in one of North Vancouver´s most walkable and dynamic communities. Open House Saturday Feb 7th, 12-2pm & Sunday Feb 8th 1-3pm (32321994)

Open Houses

Feb 8
1-3 PM
Add to Calendar

Property Summary

Property Type
Single Family
Building Type
Apartment
Square Footage
756 sqft
Title
Strata
Land Size
0
Built in
2009
Annual Property Taxes
$2,242.11
Total Parking Spaces
1
Time on REALTOR.ca
26 days

Price and Sale History

Date Status Price
Feb 2, 2021 Sale Closed $675,000
Sep 8, 2015 Sale Closed $427,000
Jul 7, 2012 Sale Closed $424,900

Building

Bathrooms
Total
2
Interior Features
Appliances Included
All
Building Features
Features
Central location, Elevator, Wheelchair access
Architecture Style
2 Level
Building Amenities
Laundry - In Suite
Heating & Cooling
Cooling
Air Conditioned
Heating Type
(Natural gas)
Neighbourhood Features
Community Features
Pets Allowed With Restrictions
Amenities Nearby
Recreation, Shopping
Maintenance or Condo Information
Maintenance Fees
$548.92 Monthly
Parking
Total Parking Spaces
1

Measurements

Square Footage
756 sqft

Land

Lot Features
View
View
Data provided by: Greater Vancouver REALTORS®
Are you interested in touring this listing?
Request a showing

Similar Listings

Chandra Levac