We use cookies and other technologies for functionality, security, and to provide you with a personalized experience on our online services. By continuing to use our online services, you agree to our Privacy Policy and Terms of Use. For information on how to adjust your privacy settings, visit our Cookie Policy.
Dismiss
Home SK Greater Moose Jaw Division No. 7 Moose Jaw
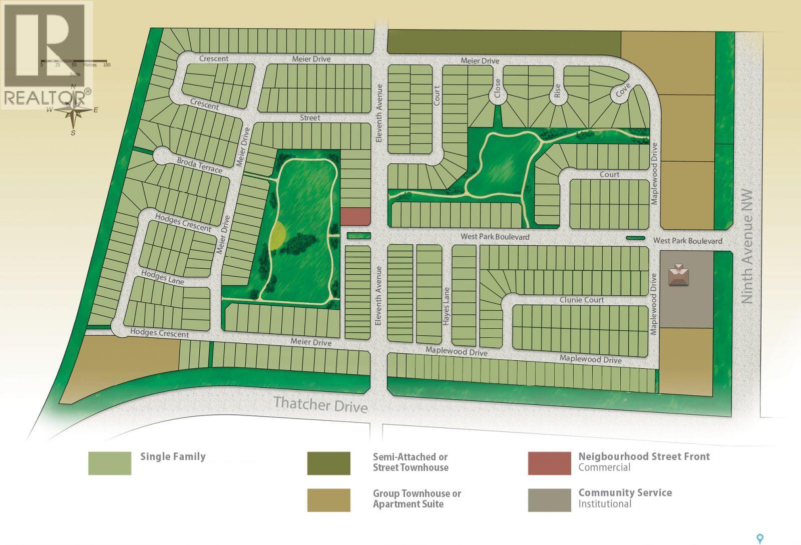
919 West Park BOULEVARD
Directions Print
919 West Park BOULEVARD $95,000
$95,000
Hide
Favourite

919 West Park BOULEVARD
Moose Jaw, Saskatchewan S6J0E5

MLS® Number: SK026591

Listing Description

Welcome to Lot 1 in Phase 4 of desirable West Park Village, one of Moose Jaw’s most sought-after neighbourhoods! This ready-to-build, R1A-zoned lot is perfectly positioned close to two parks, schools, walking paths, and everyday convenience. As the most affordable lot in the area, this is your chance to secure prime land in a community that continues to grow and appreciate. Don’t wait — prices here are only moving one way! Build now and enjoy the best of community living! Many other lots to choose from! (29265888)

Property Summary

Property Type
Vacant Land
Building Type
Unknown
Neighbourhood Name
VLA/Sunningdale
Title
Freehold
Land Size
0.14 ac
Annual Property Taxes
$1,015
Time on REALTOR.ca
47 days

Building

Building Features
Features
Irregular lot size

Land

Lot Features
Frontage
42 ft
Are you interested in touring this listing?
Request a showing

Similar Listings

Gayland Panko