We use cookies and other technologies for functionality, security, and to provide you with a personalized experience on our online services. By continuing to use our online services, you agree to our Privacy Policy and Terms of Use. For information on how to adjust your privacy settings, visit our Cookie Policy.
Dismiss
Home MB Greater Brandon Brandon
57 Cobalt Crescent
Directions Print
57 Cobalt Crescent $383,900
5 days ago
Next Open House
Jan
17
$383,900
Hide
Favourite

57 Cobalt Crescent
Brandon, Manitoba R7A7W5

MLS® Number: 202600717
3
Bedrooms
3
Bathrooms
1618
Square Feet

Listing Description

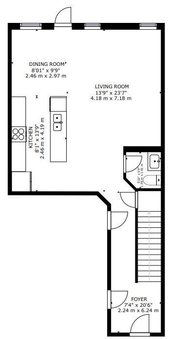
C15//Brandon/Welcome to Condo Living where modern design meets effortless living. This stunning 1,618-square-foot townhouse offers a thoughtfully designed two-level layout perfect for contemporary lifestyles. The main floor is an entertainer s dream, boasting a seamless open-concept flow between the kitchen, dining area, and living room. A convenient two-piece powder room and direct patio access make hosting a breeze, while fresh interior paint provides a crisp, move-in-ready aesthetic. The upper level is dedicated to comfort and convenience, featuring a full four-piece bathroom and upper-floor laundry no more hauling baskets up and down stairs! The expansive primary suite serves as a private retreat, complete with a dedicated four-piece ensuite and a generous walk-in closet. With ample square footage and a layout that maximizes every inch, this townhouse provides all the space you need in a vibrant new community. Experience the perfect blend of style and utility. (231839757)

Open Houses

Jan 17
1-3 PM
Jan 18
2-4 PM
Add to Calendar

Property Summary

Property Type
Single Family
Building Type
House
Square Footage
1618 sqft
Community Name
Woodlands
Neighbourhood Name
Woodlands
Title
Freehold Condo
Land Size
Unknown
Built in
2019
Annual Property Taxes
$4,449
Parking Type
Attached Garage
Time on REALTOR.ca
5 days

Building

Bathrooms
Total
3
Partial
1
Interior Features
Appliances Included
Microwave Built-in, Central Vacuum - Roughed In, Dishwasher, Dryer, Garage door opener, Garage door opener remote(s), Microwave, Refrigerator, Stove, Washer, Window Coverings
Flooring
Wall-to-wall carpet, Laminate
Building Features
Features
No Smoking Home
Architecture Style
2 Level
Heating & Cooling
Cooling
Central air conditioning
Heating Type
Forced air (Electric)
Utilities
Utility Sewer
Municipal sewage system
Water
Municipal water
Neighbourhood Features
Amenities Nearby
Playground, Public Transit
Maintenance or Condo Information
Maintenance Fees
$315 Monthly
Maintenance Management Company
Vionelle Holdings 204 922 0555
Parking
Parking Type
Attached Garage

Measurements

Square Footage
1618 sqft

Land

Lot Features
Fencing
Fence
Road Type
Paved road
Data provided by: Brandon Area REALTORS®
Are you interested in touring this listing?
Request a showing

Similar Listings

Kevin Gregory