We use cookies and other technologies for functionality, security, and to provide you with a personalized experience on our online services. By continuing to use our online services, you agree to our Privacy Policy and Terms of Use. For information on how to adjust your privacy settings, visit our Cookie Policy.
Dismiss
Home BC Kootenay Boundary Grand Forks
7551 23rd Street
Directions Print
7551 23rd Street $495,000
$495,000
Hide
Favourite

7551 23rd Street
Grand Forks, British Columbia V0H1H2

MLS® Number: 10372331
4
Bedrooms
2
Bathrooms
2476
Square Feet

Listing Description

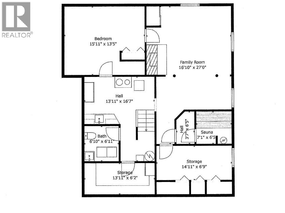
Lots of recent upgrades including bathroom, flooring, trim + paint. Lot size is .2 acres. 4-bedroom, 2-bathroom. Short, 1 block street. Private fenced back yard. Over 2400 sq ft rancher includes full basement. New main bathroom, 2 fireplaces. Large basement sauna with its own shower. Basement has 2 storage areas, 1 for cold storage. Completely landscaped lawns and yard for your enjoyment +/or entertaining. 2 garden sheds + a greenhouse area. Close to shopping, schools, restaurants, coffee shops, hospital, + parks. Close to all recreation including arena, pool, curling, ball fields + more. Newer natural gas furnace. It's all there + move-in ready. (39610463)

Property Summary

Property Type
Single Family
Building Type
House
Storeys
2
Square Footage
2476 sqft
Neighbourhood Name
Grand Forks
Title
Freehold
Land Size
0.2 ac|under 1 acre
Built in
1964
Annual Property Taxes
$3,127
Parking Type
Carport
Time on REALTOR.ca
26 days

Building

Bathrooms
Total
2
Partial
0
Interior Features
Basement Type
Full
Building Features
Style
Detached
Architecture Style
Ranch
Heating & Cooling
Heating Type
Forced air, See remarks
Utilities
Utility Sewer
Municipal sewage system
Water
Municipal water
Parking
Parking Type
Carport
Total Parking Spaces
4

Measurements

Square Footage
2476 sqft

Rooms

MetricImperial
Main level
4pc Bathroom
Bedroom
Bedroom
Primary Bedroom
Dining room
Kitchen
Living room
Lower level
Storage
Storage
Sauna
3pc Bathroom
Bedroom
Family room

Land

Lot Features
View
Mountain view, Valley view
Are you interested in touring this listing?
Request a showing

Similar Listings

Pete Vanjoff